New Homes » Kanto » Tokyo » Musashimurayama
 
| | Tokyo Musashimurayama 東京都武蔵村山市 |
| JR Ome Line "Tachikawa" 25 minutes Mitsufuji residential walk 5 minutes by bus JR青梅線「立川」バス25分三ツ藤住宅歩5分 |
| IH cooking heater Each room enhance storage Toilet 2 places City gas With loft Shaping land IHクッキングヒーター 各居室充実収納 トイレ2箇所 都市ガス ロフト付き 整形地 |
Features pickup 特徴ピックアップ | | System kitchen / Bathroom Dryer / All room storage / Shaping land / Toilet 2 places / 2-story / Warm water washing toilet seat / loft / Underfloor Storage / The window in the bathroom / TV monitor interphone / IH cooking heater / Dish washing dryer システムキッチン /浴室乾燥機 /全居室収納 /整形地 /トイレ2ヶ所 /2階建 /温水洗浄便座 /ロフト /床下収納 /浴室に窓 /TVモニタ付インターホン /IHクッキングヒーター /食器洗乾燥機 | Price 価格 | | 27,800,000 yen 2780万円 | Floor plan 間取り | | 3LDK 3LDK | Units sold 販売戸数 | | 1 units 1戸 | Total units 総戸数 | | 2 units 2戸 | Land area 土地面積 | | 104.41 sq m (registration) 104.41m2(登記) | Building area 建物面積 | | 80.99 sq m (registration) 80.99m2(登記) | Driveway burden-road 私道負担・道路 | | Nothing 無 | Completion date 完成時期(築年月) | | March 2014 2014年3月 | Address 住所 | | Tokyo Musashimurayama Mitsufuji 1 東京都武蔵村山市三ツ藤1 | Traffic 交通 | | JR Ome Line "Tachikawa" 25 minutes Mitsufuji residential walk 5 minutes by bus Seibu Haijima Line "Musashi Sunagawa" walk 43 minutes Seibu Haijima Line "Seibu Tachikawa" walk 42 minutes JR青梅線「立川」バス25分三ツ藤住宅歩5分 西武拝島線「武蔵砂川」歩43分 西武拝島線「西武立川」歩42分
| Person in charge 担当者より | | Person in charge of real-estate and building Hoshino While respecting the 30s your opinions and hope etc.: Manabu age, I would like sometimes to the appropriate advice from an objective point of view. Perseverance and hard to look for My Home go of your assent. 担当者宅建星野 学年齢:30代お客様のご意見やご希望等を尊重しつつ、時には客観的な視点から適切なアドバイスをさせて頂きたいと思います。お客様のご納得のいくマイホーム探しを一生懸命がんばります。 | Contact お問い合せ先 | | TEL: 0800-603-1036 [Toll free] mobile phone ・ Also available from PHS Caller ID is not notified Please contact the "saw SUUMO (Sumo)" If it does not lead, If the real estate company TEL:0800-603-1036【通話料無料】携帯電話・PHSからもご利用いただけます 発信者番号は通知されません 「SUUMO(スーモ)を見た」と問い合わせください つながらない方、不動産会社の方は
| Building coverage, floor area ratio 建ぺい率・容積率 | | 40% ・ 80% 40%・80% | Time residents 入居時期 | | Consultation 相談 | Land of the right form 土地の権利形態 | | Ownership 所有権 | Structure and method of construction 構造・工法 | | Wooden 2-story 木造2階建 | Use district 用途地域 | | One low-rise 1種低層 | Overview and notices その他概要・特記事項 | | Contact: Hoshino Manabu, Facilities: Public Water Supply, This sewage, City gas, Building confirmation number: 25 Taken Kenichi Kendai 0702 No., Parking: car space 担当者:星野 学、設備:公営水道、本下水、都市ガス、建築確認番号:25多建建一建第0702号、駐車場:カースペース | Company profile 会社概要 | | <Mediation> Governor of Tokyo (7) No. 047202 (Corporation) Tokyo Metropolitan Government Building Lots and Buildings Transaction Business Association (Corporation) metropolitan area real estate Fair Trade Council member (Ltd.) Yamaichi Home Hamura head office Yubinbango205-0003 Tokyo Hamura Midorigaoka 1-23-9 <仲介>東京都知事(7)第047202号(公社)東京都宅地建物取引業協会会員 (公社)首都圏不動産公正取引協議会加盟(株)山一ホーム羽村本店〒205-0003 東京都羽村市緑ヶ丘1-23-9 |
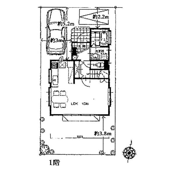
Floor plan間取り図  27,800,000 yen, 3LDK, Land area 104.41 sq m , Building area 80.99 sq m
2780万円、3LDK、土地面積104.41m2、建物面積80.99m2
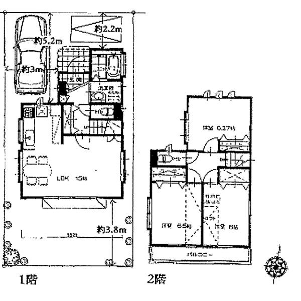
Compartment figure区画図  27,800,000 yen, 3LDK, Land area 104.41 sq m , Building area 80.99 sq m
2780万円、3LDK、土地面積104.41m2、建物面積80.99m2
Supermarketスーパー  Tsurukame 342m to land Musashimurayama store
つるかめランド武蔵村山店まで342m
Junior high school中学校  Musashimurayama 890m to stand first junior high school
武蔵村山市立第一中学校まで890m
Hospital病院  1205m to social care corporation Foundation Yamato Board Musashimurayama hospital
社会医療法人財団大和会武蔵村山病院まで1205m
Location
|