New Homes » Kanto » Tokyo » Musashimurayama


Tokyo Musashimurayama
Seibu Haijima Line "Seibu Tachikawa" bus 11 minutes Ayumi Fujizuka 9 minutes
LDK14 Pledge all room storage space located on the front road is also available 6m parking is also'm not please feel free to contact us easily because
Car space parallel parking two Allowed
Features pickup
Parking two Allowed / Immediate Available / System kitchen / All room storage / Or more before road 6m / Japanese-style room / Shaping land / Face-to-face kitchen / Barrier-free / Toilet 2 places / 2-story / Double-glazing / Underfloor Storage / TV monitor interphone / City gas
Price
31,800,000 yen
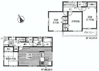
Floor plan
4LDK
Units sold
1 units
Total units
2 units
Land area
161.03 sq m (registration)
Building area
91.49 sq m (registration)
Driveway burden-road
Nothing, Southwest 6m width
Completion date
October 2013
Address
Tokyo Musashimurayama Mitsufuji 3
Traffic
Seibu Haijima Line "Seibu Tachikawa" bus 11 minutes Ayumi Fujizuka 9 minutes
Related links
[Related Sites of this company]
Person in charge
The person in charge Fujiwara Masahide Age: work hard and my best to be according to the request of the 30's customers!
Contact
TEL: 0800-603-0559 [Toll free] mobile phone ・ Also available from PHS
Caller ID is not notified
Please contact the "saw SUUMO (Sumo)"
If it does not lead, If the real estate company
Building coverage, floor area ratio
30% ・ 60%
Time residents
Immediate available
Land of the right form
Ownership
Structure and method of construction
Wooden 2-story
Use district
One low-rise
Overview and notices
Contact: Fujiwara Masahide, Facilities: Public Water Supply, This sewage, City gas, Building confirmation number: 00904, Parking: car space
Company profile
<Mediation> Minister of Land, Infrastructure and Transport (3) No. 006,185 (one company) National Housing Industry Association (Corporation) metropolitan area real estate Fair Trade Council member Asahi Housing Corporation Tachikawa shop Yubinbango190-0012 Tokyo Tachikawa Akebonocho 2-9-1 Kikuya Kawaguchi building the fourth floor


Floor plan

Floor plan. 31,800,000 yen, 4LDK, Land area 161.03 sq m , Building area 91.49 sq m
31,800,000 yen, 4LDK, Land area 161.03 sq m , Building area 91.49 sq m



Location