|
|
Nakano-ku, Tokyo
東京都中野区
|
|
JR Chuo Line "Nakano" walk 10 minutes
JR中央線「中野」歩10分
|
|
Shintei Nestled in the lush residential area of Momijiyama park
紅葉山公園の緑あふれる住宅街に佇む新邸
|
|
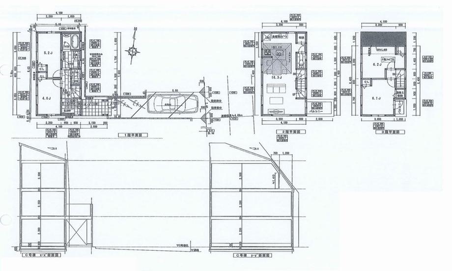
■ JR Chuo Line "Nakano" station A 10-minute walk ■ Location nice convenience that dot, such as home centers and supermarkets ■ LDK16.3 Pledge of south-facing pot 4LDK of leeway ■ Specification equipment of enhancement trappings of life ※ In land area, Including alley-shaped portion about 24.56 sq m
■JR中央線「中野」駅 徒歩10分■ホームセンターやスーパーなど点在する利便性のいい立地■LDK16.3帖の南向きぼゆとりの4LDK■生活を彩る充実の仕様設備※土地面積に、路地状部分約24.56m2含む
|
Features pickup 特徴ピックアップ | | Pre-ground survey / 2 along the line more accessible / Super close / Facing south / Bathroom Dryer / Yang per good / Flat to the station / A quiet residential area / LDK15 tatami mats or more / Around traffic fewer / Starting station / Face-to-face kitchen / Bathroom 1 tsubo or more / South balcony / Double-glazing / The window in the bathroom / Leafy residential area / Ventilation good / Dish washing dryer / Water filter / Three-story or more / Living stairs / City gas / All rooms are two-sided lighting / Flat terrain / Floor heating 地盤調査済 /2沿線以上利用可 /スーパーが近い /南向き /浴室乾燥機 /陽当り良好 /駅まで平坦 /閑静な住宅地 /LDK15畳以上 /周辺交通量少なめ /始発駅 /対面式キッチン /浴室1坪以上 /南面バルコニー /複層ガラス /浴室に窓 /緑豊かな住宅地 /通風良好 /食器洗乾燥機 /浄水器 /3階建以上 /リビング階段 /都市ガス /全室2面採光 /平坦地 /床暖房 |
Price 価格 | | 54,800,000 yen 5480万円 |
Floor plan 間取り | | 4LDK 4LDK |
Units sold 販売戸数 | | 1 units 1戸 |
Land area 土地面積 | | 68.4 sq m (20.69 tsubo) (measured) 68.4m2(20.69坪)(実測) |
Building area 建物面積 | | 86.93 sq m (26.29 tsubo) (Registration) 86.93m2(26.29坪)(登記) |
Driveway burden-road 私道負担・道路 | | Share interests 304 sq m × (1 / 92), East 4.4m width (contact the road width 2.4m) 共有持分304m2×(1/92)、東4.4m幅(接道幅2.4m) |
Completion date 完成時期(築年月) | | October 2013 2013年10月 |
Address 住所 | | Nakano-ku, Tokyo Nakano 1 東京都中野区中野1 |
Traffic 交通 | | JR Chuo Line "Nakano" walk 10 minutes JR Chuo Line "Higashi-Nakano" walk 12 minutes Tokyo Metro Marunouchi Line "Shin-Nakano" walk 19 minutes JR中央線「中野」歩10分 JR中央線「東中野」歩12分 東京メトロ丸ノ内線「新中野」歩19分
|
Person in charge 担当者より | | Rep Takami Kurokawa 担当者黒川孝海 |
Contact お問い合せ先 | | TEL: 0800-603-3448 [Toll free] mobile phone ・ Also available from PHS Caller ID is not notified Please contact the "saw SUUMO (Sumo)" If it does not lead, If the real estate company TEL:0800-603-3448【通話料無料】携帯電話・PHSからもご利用いただけます 発信者番号は通知されません 「SUUMO(スーモ)を見た」と問い合わせください つながらない方、不動産会社の方は
|
Building coverage, floor area ratio 建ぺい率・容積率 | | 60% ・ 200% 60%・200% |
Time residents 入居時期 | | Immediate available 即入居可 |
Land of the right form 土地の権利形態 | | Ownership 所有権 |
Structure and method of construction 構造・工法 | | Wooden three-story 木造3階建 |
Use district 用途地域 | | One middle and high 1種中高 |
Overview and notices その他概要・特記事項 | | Contact: Takami Kurokawa, Facilities: Public Water Supply, This sewage, City gas, Building confirmation number: 13ABNT-03-0004, Parking: Garage 担当者:黒川孝海、設備:公営水道、本下水、都市ガス、建築確認番号:13ABNT-03-0004、駐車場:車庫 |
Company profile 会社概要 | | <Mediation> Governor of Tokyo (2) No. 082920 (Corporation) Tokyo Metropolitan Government Building Lots and Buildings Transaction Business Association (Corporation) metropolitan area real estate Fair Trade Council member am tick (Ltd.) Kichijoji headquarters sales department Yubinbango180-0002 Musashino-shi, Tokyo Kichijojihigashi cho 1-19-21 <仲介>東京都知事(2)第082920号(公社)東京都宅地建物取引業協会会員 (公社)首都圏不動産公正取引協議会加盟アムティック(株)吉祥寺本社営業部〒180-0002 東京都武蔵野市吉祥寺東町1-19-21 |