New Homes » Kanto » Tokyo » Nakano
 
| | Nakano-ku, Tokyo 東京都中野区 |
| Seibu Shinjuku Line "Numabukuro" walk 9 minutes 西武新宿線「沼袋」歩9分 |
| Floor considering the raw activities line on the same floor as the living room there is water around. Each room with has storage capacity by providing a large storage in the house. Please have a look to the house up a notch has been in town. リビングと同じフロアに水回りがある生活動線を考えた間取り。各居室に大型の収納を設けており収納力のある家です。設備が充実しておりワンランク上の住宅を是非ご覧ください。 |
| Fine ・ and ・ Partners specializing in high popular area in Tokyo, We specializes in information. If the customer is in the Looking to become a dwelling in this area, Please also look at certainly once our home page. Customer information is not that you have a look to this, "Large number" I am allowed to guide you. This information is generally not "information out on the table as a non-public" often heard, It will still be the "information that has been warmed under water.". Specializing in those areas, Precisely because we are allowed to guide you to so many of our customers to this, We preferentially obtained such "information of underwater". I'd love to, Fine ・ and ・ Not please leave it to partners. ファイン・アンド・パートナーは都内でも人気の高いエリアに特化した、情報を専門に扱っております。お客様が当エリアで住まいをお探しになるのであれば、是非一度当社のホームページもご覧ください。お客様がこれまでご覧になったことが無い情報を、“多数”ご案内させていただいております。これらの情報は一般的によく耳にする『未公開として表に出る情報』ではなく、まだ『水面下で温められている情報』となります。当エリアに特化し、これまで本当に多くのお客様にご案内させていただいたからこそ、このような『水面下の情報』を優先的に得られるのです。是非、ファイン・アンド・パートナーにお任せくださいませ。 |
Features pickup 特徴ピックアップ | | Measures to conserve energy / Year Available / 2 along the line more accessible / Super close / Facing south / System kitchen / Bathroom Dryer / Yang per good / All room storage / Flat to the station / A quiet residential area / LDK15 tatami mats or more / Around traffic fewer / Or more before road 6m / Shaping land / Washbasin with shower / Face-to-face kitchen / Barrier-free / Toilet 2 places / Bathroom 1 tsubo or more / Zenshitsuminami direction / Warm water washing toilet seat / The window in the bathroom / TV monitor interphone / Ventilation good / All living room flooring / Dish washing dryer / Water filter / Three-story or more / City gas / All rooms are two-sided lighting / Maintained sidewalk / Floor heating 省エネルギー対策 /年内入居可 /2沿線以上利用可 /スーパーが近い /南向き /システムキッチン /浴室乾燥機 /陽当り良好 /全居室収納 /駅まで平坦 /閑静な住宅地 /LDK15畳以上 /周辺交通量少なめ /前道6m以上 /整形地 /シャワー付洗面台 /対面式キッチン /バリアフリー /トイレ2ヶ所 /浴室1坪以上 /全室南向き /温水洗浄便座 /浴室に窓 /TVモニタ付インターホン /通風良好 /全居室フローリング /食器洗乾燥機 /浄水器 /3階建以上 /都市ガス /全室2面採光 /整備された歩道 /床暖房 | Price 価格 | | 48,800,000 yen 4880万円 | Floor plan 間取り | | 3LDK 3LDK | Units sold 販売戸数 | | 1 units 1戸 | Total units 総戸数 | | 1 units 1戸 | Land area 土地面積 | | 60 sq m (measured) 60m2(実測) | Building area 建物面積 | | 83.52 sq m (registration) 83.52m2(登記) | Driveway burden-road 私道負担・道路 | | Nothing, East 6m width 無、東6m幅 | Completion date 完成時期(築年月) | | December 2013 2013年12月 | Address 住所 | | Nakano-ku, Tokyo Ekoda 2 東京都中野区江古田2 | Traffic 交通 | | Seibu Shinjuku Line "Numabukuro" walk 9 minutes Toei Oedo Line "New Ekoda" walk 12 minutes Seibu Shinjuku Line "Araiyakushimae" walk 13 minutes 西武新宿線「沼袋」歩9分 都営大江戸線「新江古田」歩12分 西武新宿線「新井薬師前」歩13分
| Related links 関連リンク | | [Related Sites of this company] 【この会社の関連サイト】 | Person in charge 担当者より | | Person in charge of stationery Kungyo 担当者雛形 訓行 | Contact お問い合せ先 | | TEL: 0800-602-6053 [Toll free] mobile phone ・ Also available from PHS Caller ID is not notified Please contact the "saw SUUMO (Sumo)" If it does not lead, If the real estate company TEL:0800-602-6053【通話料無料】携帯電話・PHSからもご利用いただけます 発信者番号は通知されません 「SUUMO(スーモ)を見た」と問い合わせください つながらない方、不動産会社の方は
| Building coverage, floor area ratio 建ぺい率・容積率 | | 60% ・ 150% 60%・150% | Time residents 入居時期 | | Consultation 相談 | Land of the right form 土地の権利形態 | | Ownership 所有権 | Structure and method of construction 構造・工法 | | Wooden three-story 木造3階建 | Use district 用途地域 | | One low-rise 1種低層 | Other limitations その他制限事項 | | Height district, Quasi-fire zones 高度地区、準防火地域 | Overview and notices その他概要・特記事項 | | Contact: Stationery Kungyo, Facilities: Public Water Supply, This sewage, City gas, Building confirmation number: No. 13ABNT-01-0271, Parking: Garage 担当者:雛形 訓行、設備:公営水道、本下水、都市ガス、建築確認番号:第13ABNT-01-0271号、駐車場:車庫 | Company profile 会社概要 | | <Mediation> Governor of Tokyo (1) No. 093121 (Ltd.) Fine ・ and ・ Partner Yubinbango166-0003 Suginami-ku, Tokyo Koenjiminami 4-23-5 <仲介>東京都知事(1)第093121号(株)ファイン・アンド・パートナー〒166-0003 東京都杉並区高円寺南4-23-5 |
Same specifications photos (appearance)同仕様写真(外観)  Same specifications
同仕様
Same specifications photos (living)同仕様写真(リビング)  Same specifications
同仕様
 Same specifications
同仕様
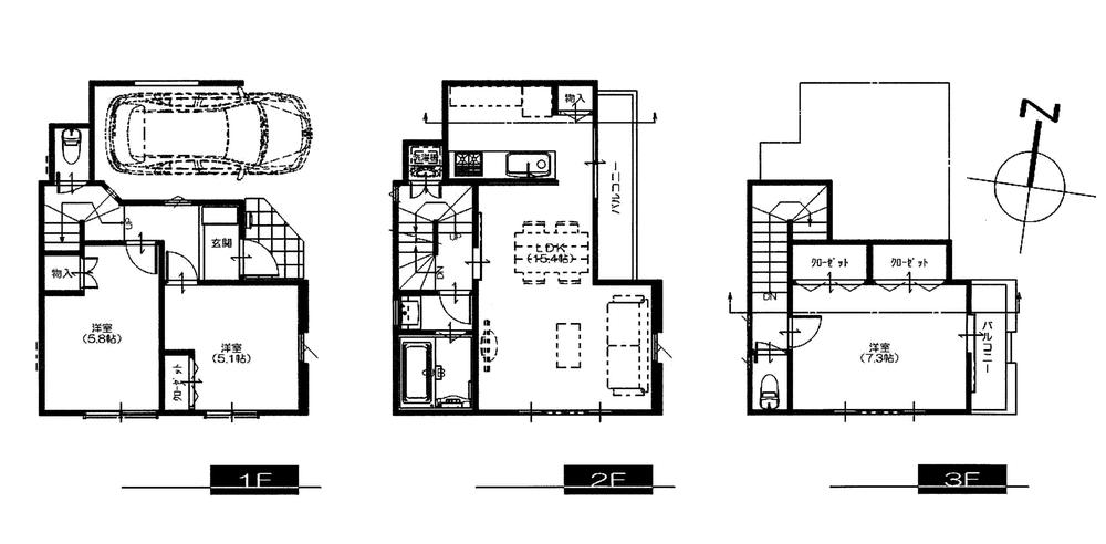
Floor plan間取り図  48,800,000 yen, 3LDK, Land area 60 sq m , Building area 83.52 sq m
4880万円、3LDK、土地面積60m2、建物面積83.52m2
Same specifications photos (living)同仕様写真(リビング)  Same specifications
同仕様
Same specifications photo (bathroom)同仕様写真(浴室)  Same specifications
同仕様
Same specifications photo (kitchen)同仕様写真(キッチン)  Same specifications
同仕様
Supermarketスーパー  Commodities Iida until Numabukuro shop 193m
コモディイイダ沼袋店まで193m
Same specifications photos (Other introspection)同仕様写真(その他内観)  Same specifications
同仕様
Supermarketスーパー  Maruman store until Ekoda shop 243m
マルマンストア江古田店まで243m
Same specifications photos (Other introspection)同仕様写真(その他内観)  Same specifications
同仕様
Junior high school中学校  Nakano Tatsudai 147m Up to seven junior high school
中野区立第七中学校まで147m
Primary school小学校  Nakano Ward Ekoda to elementary school 341m
中野区立江古田小学校まで341m
Kindergarten ・ Nursery幼稚園・保育園  302m until Mine kindergarten of gold
金の峯幼稚園まで302m
 Numabukuro 676m to kindergarten
沼袋幼稚園まで676m
Park公園  875m to the forest park of Ekoda
江古田の森公園まで875m
 Until Tetsugakudo park 983m
哲学堂公園まで983m
Location
|