New Homes » Kanto » Tokyo » Nakano


Nakano-ku, Tokyo
Seibu Shinjuku Line "Nogata" walk 10 minutes
Southwestward, LDK15 tatami mats or more, Face-to-face kitchen, roof balcony, Floor heating, System kitchen, Measures to conserve energy, Vibration Control ・ Seismic isolation ・ Earthquake resistant, Bathroom Dryer, Toilet 2 places, 2-story, Hot water washing flights
Features pickup
Measures to conserve energy / Vibration Control ・ Seismic isolation ・ Earthquake resistant / System kitchen / Bathroom Dryer / LDK15 tatami mats or more / Face-to-face kitchen / Toilet 2 places / 2-story / Warm water washing toilet seat / loft / The window in the bathroom / TV monitor interphone / Southwestward / Dish washing dryer / Water filter / Living stairs / City gas / roof balcony / Floor heating
Event information
Local sales meetings (Please be sure to ask in advance) schedule / Every Saturday, Sunday and public holidays time / 10:00 ~ 17:00 we have a weekly Saturday and Sunday sales events. Even because it is possible guidance on weekdays, Please feel free to contact us.
Price
46,500,000 yen ~ 49,800,000 yen
Floor plan
2LDK + S (storeroom) ~ 3LDK
Units sold
3 units
Total units
3 units
Land area
60.06 sq m ~ 62.82 sq m
Building area
82.61 sq m ~ 96.89 sq m
Driveway burden-road
Road width: 3.6m, No pavement, South driveway about 3m, Driveway burden area 0.48 ~ 7.04 sq m
Completion date
2013 late December
Address
Nakano-ku, Tokyo, Yamato-cho, 2-35
Traffic
Seibu Shinjuku Line "Nogata" walk 10 minutes
JR Chuo Line "Koenji" walk 14 minutes
Related links
[Related Sites of this company]
Person in charge
Rep Yokokura Sachiko bright has risked mind a cheerful service! (It is in the study day-to-day expertise! ! ) Local guidance, Billing, etc. More Information, At any time please feel free to contact us
Contact
TEL: 0800-603-4657 [Toll free] mobile phone ・ Also available from PHS
Caller ID is not notified
Please contact the "saw SUUMO (Sumo)"
If it does not lead, If the real estate company
Building coverage, floor area ratio
Kenpei rate: 60%, Volume ratio: 150%
Time residents
Three months after the contract
Land of the right form
Ownership
Structure and method of construction
Wooden 2-story, Wooden three-story
Use district
One low-rise
Overview and notices
Contact: Yokokura Sachiko, Building confirmation number: H25SHC114325 BNV 確済 13-1399 BNV 確済 13-1400
Company profile
<Mediation> Governor of Tokyo (1) No. 094444 (Ltd.) Marvelous Yubinbango151-0053, Shibuya-ku, Tokyo Yoyogi 5-67-5


Local appearance photo

Local appearance photo. Local (11 May 2013) Shooting
Local (11 May 2013) Shooting

Local appearance photo. Local (11 May 2013) Shooting
Local (11 May 2013) Shooting

Kitchen

Kitchen. Indoor (11 May 2013) Shooting
Indoor (11 May 2013) Shooting

Floor plan

Floor plan. (A Building), Price 49,800,000 yen, 2LDK+S, Land area 62.82 sq m , Building area 82.61 sq m
(A Building), Price 49,800,000 yen, 2LDK+S, Land area 62.82 sq m , Building area 82.61 sq m

Living

Living. Indoor (11 May 2013) Shooting
Indoor (11 May 2013) Shooting

Local photos, including front road

Local photos, including front road. Local (11 May 2013) Shooting
Local (11 May 2013) Shooting

Balcony

Balcony. Local (11 May 2013) Shooting
Local (11 May 2013) Shooting

Kindergarten ・ Nursery

kindergarten ・ Nursery. Hachiman 200m to kindergarten
Hachiman 200m to kindergarten

The entire compartment Figure
The entire compartment Figure

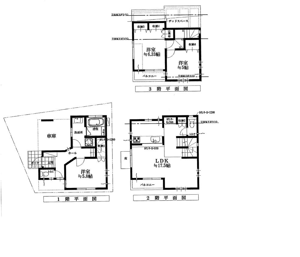
Floor plan

Floor plan. (B Building), Price 46,500,000 yen, 3LDK, Land area 60.1 sq m , Building area 83.85 sq m
(B Building), Price 46,500,000 yen, 3LDK, Land area 60.1 sq m , Building area 83.85 sq m

Other Environmental Photo

Other Environmental Photo. 200m to Hachiman Shrine
200m to Hachiman Shrine

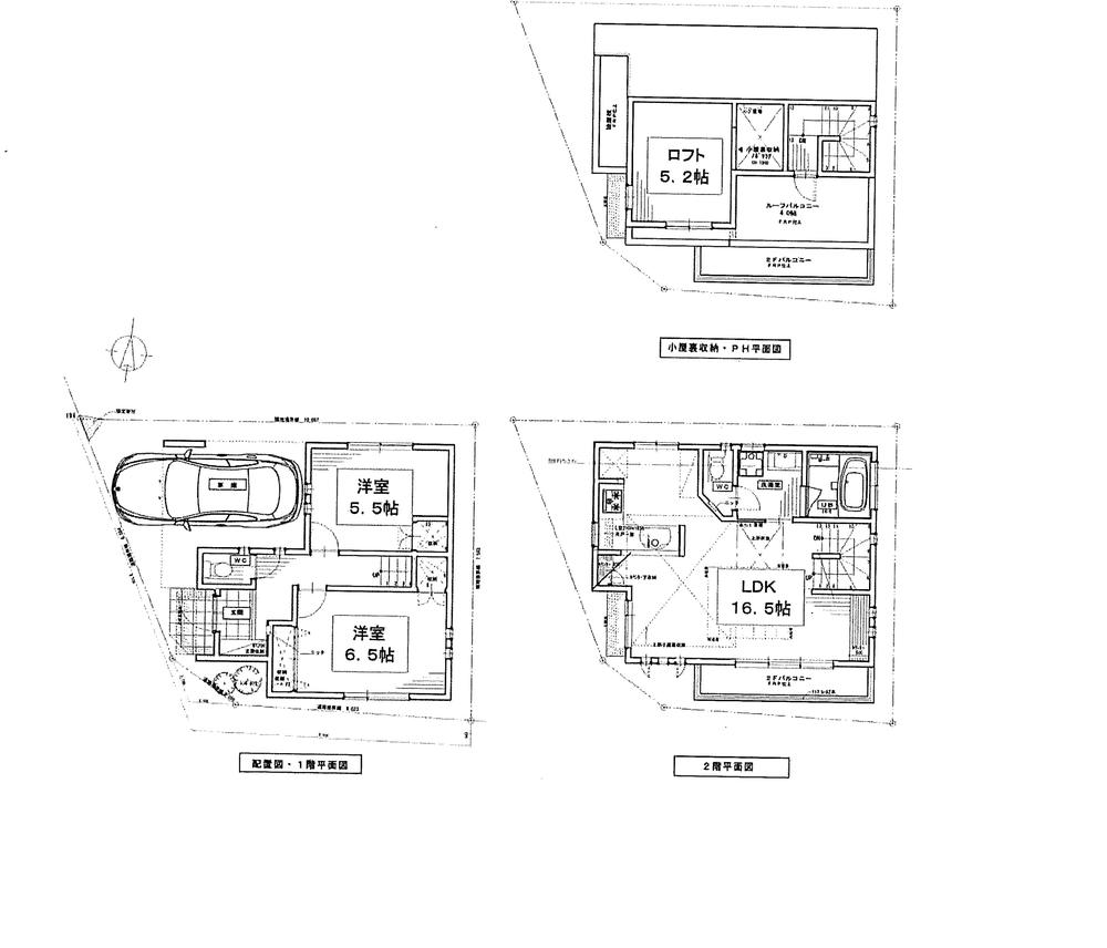
Floor plan

Floor plan. (C Building), Price 49,800,000 yen, 3LDK, Land area 60.06 sq m , Building area 96.89 sq m
(C Building), Price 49,800,000 yen, 3LDK, Land area 60.06 sq m , Building area 96.89 sq m

Primary school

Primary school. Keimyung until elementary school 490m
Keimyung until elementary school 490m



Location