New Homes » Kanto » Tokyo » Nakano
 
| | Nakano-ku, Tokyo 東京都中野区 |
| Seibu Shinjuku Line "Araiyakushimae" walk 7 minutes 西武新宿線「新井薬師前」歩7分 |
| ◆ Seibu Shinjuku Line "Arai Yakushi" a 7-minute walk from the station ◆ ◆ Seddo south road ◆ ◆ 4LDK taken between buildings ◆ ◆ Sense of openness and comfort by each room two-sided lighting ◆ ◆西武新宿線「新井薬師」駅より徒歩7分◆◆南道路に接道◆◆建物間取4LDK◆◆各居室2面採光により開放感と快適性◆ |
| ◆ ◆ ◆ It is characterized by enhancement of the facilities necessary to life ◆ ◆ ◆ Good location in the Seibu Shinjuku Line "Arai Yakushi" station 7 minutes. Supermarkets and park, It is good life convenience and commercial facilities. Dishwasher, Floor heating, Bathroom ventilation drying function with bathroom, etc., Also substantial state-of-the-art facilities. ◆ ◆ ◆ Real estate seminars from the total support individual mortgage consultation from home purchase to Financial Planning ・ Regularly held the purchase seminar ◆ ◆ ◆ When buying "now, Without being misled by the sweet words such as borrowed time. ", Ten years after, It is necessary to be after 20 years and Simulation. ◆◆◆生活に必要な施設の充実さが特徴です◆◆◆西武新宿線「新井薬師」駅7分という好立地。スーパーや公園、商業施設など生活利便性は良好です。食洗機、床暖房、浴室換気乾燥機能付きバスルームなど、最新の設備も充実してます。◆◆◆住宅購入からファイナンシャルプランニングまでトータルサポート個別の住宅ローン相談から不動産セミナー・購入セミナーを定期的に開催◆◆◆「今が買い時、借り時」といった甘い言葉に惑わされずに、10年後、20年後とシミュレーションすることが必要です。 |
Features pickup 特徴ピックアップ | | Facing south / System kitchen / Bathroom Dryer / Yang per good / All room storage / Siemens south road / A quiet residential area / LDK15 tatami mats or more / Around traffic fewer / Shaping land / Washbasin with shower / Face-to-face kitchen / Bathroom 1 tsubo or more / 2-story / South balcony / Double-glazing / Otobasu / Atrium / Ventilation good / All living room flooring / Dish washing dryer / Water filter / City gas / All rooms are two-sided lighting / Floor heating 南向き /システムキッチン /浴室乾燥機 /陽当り良好 /全居室収納 /南側道路面す /閑静な住宅地 /LDK15畳以上 /周辺交通量少なめ /整形地 /シャワー付洗面台 /対面式キッチン /浴室1坪以上 /2階建 /南面バルコニー /複層ガラス /オートバス /吹抜け /通風良好 /全居室フローリング /食器洗乾燥機 /浄水器 /都市ガス /全室2面採光 /床暖房 | Price 価格 | | 53,800,000 yen ~ 54,800,000 yen 5380万円 ~ 5480万円 | Floor plan 間取り | | 4LDK 4LDK | Units sold 販売戸数 | | 2 units 2戸 | Total units 総戸数 | | 2 units 2戸 | Land area 土地面積 | | 74.19 sq m ~ 74.39 sq m 74.19m2 ~ 74.39m2 | Building area 建物面積 | | 82.99 sq m ~ 85.2 sq m 82.99m2 ~ 85.2m2 | Driveway burden-road 私道負担・道路 | | South road 南側道路 | Completion date 完成時期(築年月) | | April 2014 late schedule 2014年4月下旬予定 | Address 住所 | | Nakano-ku, Tokyo Matsugaoka 2 東京都中野区松が丘2 | Traffic 交通 | | Seibu Shinjuku Line "Araiyakushimae" walk 7 minutes Seibu Shinjuku Line "Numabukuro" walk 7 minutes Toei Oedo Line "Ochiaiminami Nagasaki" walk 20 minutes 西武新宿線「新井薬師前」歩7分 西武新宿線「沼袋」歩7分 都営大江戸線「落合南長崎」歩20分
| Related links 関連リンク | | [Related Sites of this company] 【この会社の関連サイト】 | Person in charge 担当者より | | Person in charge of real-estate and building FP Masahiro Shimizu Age: 30 Daigyokai experience: have passed since 10-year real estate industry the beginning to 10 years. Taking advantage of its experience, Perspectives and how to find the real estate, We will carry out easy-to-understand your description of the checkpoint to prevent trouble. 担当者宅建FP清水正弘年齢:30代業界経験:10年不動産業を始めて10年が経ちました。その経験を生かして、不動産の見方や探し方、トラブルを防ぐチェックポイントを分かりやすくご説明をさせて頂きます。 | Contact お問い合せ先 | | TEL: 0800-809-8335 [Toll free] mobile phone ・ Also available from PHS Caller ID is not notified Please contact the "saw SUUMO (Sumo)" If it does not lead, If the real estate company TEL:0800-809-8335【通話料無料】携帯電話・PHSからもご利用いただけます 発信者番号は通知されません 「SUUMO(スーモ)を見た」と問い合わせください つながらない方、不動産会社の方は
| Building coverage, floor area ratio 建ぺい率・容積率 | | Building coverage 60%, Volume ratio: 150% 建ぺい率60%、容積率:150% | Time residents 入居時期 | | May 2014 early schedule 2014年5月上旬予定 | Land of the right form 土地の権利形態 | | Ownership 所有権 | Use district 用途地域 | | One low-rise, One dwelling 1種低層、1種住居 | Land category 地目 | | Residential land 宅地 | Overview and notices その他概要・特記事項 | | Contact: Masahiro Shimizu, Building confirmation number: No. H25A-JK, eX01344-01 No. Other 担当者:清水正弘、建築確認番号:第H25A-JK、eX01344-01号他 | Company profile 会社概要 | | <Mediation> Governor of Tokyo (2) No. 086581 (Ltd.) ad cast Koenji branch Yubinbango166-0003 Suginami-ku, Tokyo Koenjiminami 4-44-6 Yunzubiru first floor <仲介>東京都知事(2)第086581号(株)アドキャスト高円寺支店〒166-0003 東京都杉並区高円寺南4-44-6 ユンズビル1階 |
Same specifications photos (living)同仕様写真(リビング)  (A Building) same specification
(A号棟)同仕様
 (A Building) same specification
(A号棟)同仕様
 (A Building) same specification
(A号棟)同仕様
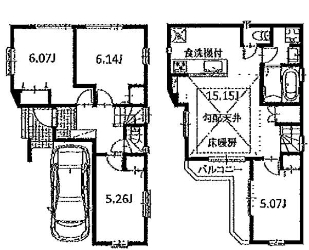
Floor plan間取り図  (A Building), Price 54,800,000 yen, 4LDK, Land area 74.19 sq m , Building area 82.99 sq m
(A号棟)、価格5480万円、4LDK、土地面積74.19m2、建物面積82.99m2
Same specifications photo (bathroom)同仕様写真(浴室)  (A Building) same specification
(A号棟)同仕様
Same specifications photo (kitchen)同仕様写真(キッチン)  (A Building) same specification
(A号棟)同仕様
Supermarketスーパー  Commodities Iida until Numabukuro shop 547m
コモディイイダ沼袋店まで547m
Same specifications photos (Other introspection)同仕様写真(その他内観)  (A Building) same specification
(A号棟)同仕様
The entire compartment Figure全体区画図  Compartment figure
区画図
Supermarketスーパー  695m until Seiyu Numabukuro shop
西友沼袋店まで695m
Same specifications photos (Other introspection)同仕様写真(その他内観)  (A Building) same specification
(A号棟)同仕様
Junior high school中学校  Nakano Tatsudai 717m Up to seven junior high school
中野区立第七中学校まで717m
Same specifications photos (Other introspection)同仕様写真(その他内観)  (A Building) same specification
(A号棟)同仕様
Primary school小学校  Nakano 499m to stand Arai Elementary School
中野区立新井小学校まで499m
Park公園  Until Tetsugakudo park 587m
哲学堂公園まで587m
Location
|