New Homes » Kanto » Tokyo » Nerima
 
| | Nerima-ku, Tokyo 東京都練馬区 |
| Toei Oedo Line "Nerima Kasuga-cho" walk 6 minutes 都営大江戸線「練馬春日町」歩6分 |
| LDK18 tatami mats or more, 2 along the line more accessible, Face-to-face kitchen, 2 or more sides balcony, Wide balcony, All room 6 tatami mats or more, System kitchen, Bathroom Dryer, All room storage, Flat to the station, Quiet living LDK18畳以上、2沿線以上利用可、対面式キッチン、2面以上バルコニー、ワイドバルコニー、全居室6畳以上、システムキッチン、浴室乾燥機、全居室収納、駅まで平坦、閑静な住 |
| ◆ Housework Hakadori you in the water around the centralized design. ◆ A quiet residential area of the front road 6m, Living environment is good. ◆ There large shoes Croke entrance. ◆ Deki use it as a waste storage in the kitchen a private balcony. ◆ There model house near, Please feel free to contact us. ◆水回り集中設計で家事もはかどります。◆前面道路6mの閑静な住宅街、住環境良好です。◆玄関には大型シューズクロークございます。◆キッチン専用バルコニー付きでゴミ置き場としてお使いできます。◆近くにモデルハウスございます、お気軽にお問い合わせください。 |
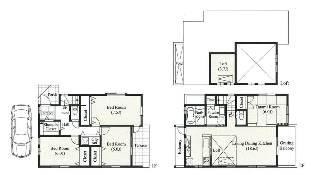
Features pickup 特徴ピックアップ | | 2 along the line more accessible / LDK18 tatami mats or more / System kitchen / Bathroom Dryer / All room storage / Flat to the station / A quiet residential area / Or more before road 6m / Japanese-style room / Shaping land / Washbasin with shower / Face-to-face kitchen / Wide balcony / Barrier-free / Toilet 2 places / Bathroom 1 tsubo or more / 2-story / 2 or more sides balcony / Double-glazing / Warm water washing toilet seat / Underfloor Storage / The window in the bathroom / Atrium / Dish washing dryer / All room 6 tatami mats or more / Water filter / City gas / Flat terrain / Attic storage / Floor heating 2沿線以上利用可 /LDK18畳以上 /システムキッチン /浴室乾燥機 /全居室収納 /駅まで平坦 /閑静な住宅地 /前道6m以上 /和室 /整形地 /シャワー付洗面台 /対面式キッチン /ワイドバルコニー /バリアフリー /トイレ2ヶ所 /浴室1坪以上 /2階建 /2面以上バルコニー /複層ガラス /温水洗浄便座 /床下収納 /浴室に窓 /吹抜け /食器洗乾燥機 /全居室6畳以上 /浄水器 /都市ガス /平坦地 /屋根裏収納 /床暖房 | Price 価格 | | 69,800,000 yen 6980万円 | Floor plan 間取り | | 4LDK 4LDK | Units sold 販売戸数 | | 1 units 1戸 | Total units 総戸数 | | 1 units 1戸 | Land area 土地面積 | | 103.96 sq m (31.44 tsubo) (measured) 103.96m2(31.44坪)(実測) | Building area 建物面積 | | 103.68 sq m (31.36 tsubo) (measured) 103.68m2(31.36坪)(実測) | Driveway burden-road 私道負担・道路 | | Nothing, North 6m width 無、北6m幅 | Completion date 完成時期(築年月) | | September 2013 2013年9月 | Address 住所 | | Nerima-ku, Tokyo Kasuga-cho, 1-27 東京都練馬区春日町1-27 | Traffic 交通 | | Toei Oedo Line "Nerima Kasuga-cho" walk 6 minutes Tokyo Metro Yurakucho Line "Heiwadai" walk 15 minutes 都営大江戸線「練馬春日町」歩6分 東京メトロ有楽町線「平和台」歩15分
| Related links 関連リンク | | [Related Sites of this company] 【この会社の関連サイト】 | Contact お問い合せ先 | | TEL: 0800-603-9355 [Toll free] mobile phone ・ Also available from PHS Caller ID is not notified Please contact the "saw SUUMO (Sumo)" If it does not lead, If the real estate company TEL:0800-603-9355【通話料無料】携帯電話・PHSからもご利用いただけます 発信者番号は通知されません 「SUUMO(スーモ)を見た」と問い合わせください つながらない方、不動産会社の方は
| Building coverage, floor area ratio 建ぺい率・容積率 | | Fifty percent ・ Hundred percent 50%・100% | Time residents 入居時期 | | Consultation 相談 | Land of the right form 土地の権利形態 | | Ownership 所有権 | Structure and method of construction 構造・工法 | | Wooden 2-story 木造2階建 | Use district 用途地域 | | One low-rise 1種低層 | Overview and notices その他概要・特記事項 | | Facilities: Public Water Supply, This sewage, City gas, Building confirmation number: H25SHC104940, Parking: car space 設備:公営水道、本下水、都市ガス、建築確認番号:H25SHC104940、駐車場:カースペース | Company profile 会社概要 | | <Mediation> Governor of Tokyo (2) No. 083982 (Ltd.) Fine Home Yubinbango179-0075 Nerima-ku, Tokyo Takamatsu 2-13-4 <仲介>東京都知事(2)第083982号(株)ファインホーム〒179-0075 東京都練馬区高松2-13-4 |
Local appearance photo現地外観写真  Local (11 May 2013) Shooting
現地(2013年11月)撮影
Floor plan間取り図  69,800,000 yen, 4LDK, Land area 103.96 sq m , Building area 103.68 sq m
6980万円、4LDK、土地面積103.96m2、建物面積103.68m2
Local photos, including front road前面道路含む現地写真  Living environment is good in a quiet residential area
閑静な住宅街で住環境良好です
 Living
リビング
 Bathroom
浴室
 Kitchen
キッチン
Receipt収納  Cupboard
食器棚
Balconyバルコニー  Grating wide balcony
グレーチングワイドバルコニー
Receipt収納  Entrance next to shoes cloak
玄関横シューズクローク
 Wash basin, toilet
洗面台・洗面所
Livingリビング  Japanese-style room Tsuzukiai
和室続き間
Location
|