New Homes » Kanto » Tokyo » Nerima
 
| | Nerima-ku, Tokyo 東京都練馬区 |
| Seibu Shinjuku Line "Iogi" walk 15 minutes 西武新宿線「井荻」歩15分 |
Property name 物件名 | | Kure Vere Court Iogi ・ Soleil / Notice advertising クレヴィアコート井荻・ソレイユ/予告広告 | Price 価格 | | Undecided 未定 | Floor plan 間取り | | 4LDK + loft 4LDK+ロフト | Units sold 販売戸数 | | Undecided 未定 | Total units 総戸数 | | 9 units 9戸 | Land area 土地面積 | | 100.01 sq m ~ 120.83 sq m 100.01m2 ~ 120.83m2 | Building area 建物面積 | | 94.45 sq m ~ 100.19 sq m 94.45m2 ~ 100.19m2 | Driveway burden-road 私道負担・道路 | | Road: the north side width about 4.3 ~ 4.4m, West width about 5.0m, South width about 5.0m, Driveway burden: No 道路:北側幅員約4.3 ~ 4.4m、西側幅員約5.0m、南側幅員約5.0m、私道負担:無 | Completion date 完成時期(築年月) | | 2013 late December plans 2013年12月下旬予定 | Address 住所 | | Nerima-ku, Tokyo Shimoshakujii 2-chome, 87 No. 57 東京都練馬区下石神井2丁目87番57他(地番) | Traffic 交通 | | Seibu Shinjuku Line "Iogi" walk 15 minutes Seibu Shinjuku Line "Kamiigusa" walk 14 minutes Seibu Ikebukuro Line "Shakujii Park" walk 18 minutes 西武新宿線「井荻」歩15分 西武新宿線「上井草」歩14分 西武池袋線「石神井公園」歩18分
| Related links 関連リンク | | [Related Sites of this company] 【この会社の関連サイト】 | Contact お問い合せ先 | | Kure Vere Court Iogi Information Center TEL: 0120-676-003 [Toll free] (mobile phone ・ Also available from PHS. ) Please contact the "saw SUUMO (Sumo)" クレヴィアコート井荻インフォメーションセンターTEL:0120-676-003【通話料無料】(携帯電話・PHSからもご利用いただけます。)「SUUMO(スーモ)を見た」と問い合わせください | Sale schedule 販売スケジュール | | Sales start in January ※ price ・ Units sold is undecided. Not been finalized or not to sell in several stage or whole sell, Property data for sale dwelling unit has not yet been finalized are inscribed things of all sales target dwelling unit. Determination information will be explicit in the new sale ad. Acts that lead to secure the contract or reservation of the application and the application order to sale can not be absolutely. 1月より販売開始※価格・販売戸数は未定です。全体で売るか数期に分けて販売するか確定しておらず、販売住戸が未確定のため物件データは全販売対象住戸のものを表記しています。確定情報は新規分譲広告にて明示いたします。販売開始まで契約または予約の申込および申込順位の確保につながる行為は一切できません。 | Event information イベント情報 | | ■ Document request being accepted ■資料請求受付中 | Building coverage, floor area ratio 建ぺい率・容積率 | | Kenpei rate: 50% (some corner lot relaxation 60%), Volume ratio: 100% 建ペい率:50%(一部角地緩和60%)、容積率:100% | Time residents 入居時期 | | March 2014 mid-scheduled 2014年3月中旬予定 | Land of the right form 土地の権利形態 | | Ownership 所有権 | Structure and method of construction 構造・工法 | | Wooden frame construction ・ 2-story 木造枠組壁工法・2階建 | Construction 施工 | | Itopia Home Co., Ltd. イトーピアホーム株式会社 | Use district 用途地域 | | One low-rise 1種低層 | Land category 地目 | | Residential land 宅地 | Overview and notices その他概要・特記事項 | | Building confirmation number: No. H25SHC108352 (2013 June 20 date) Other, Traffic Note: Tokyo Metro Fukutoshin ・ Yurakucho "Shakujii Park" walk 18 minutes, Facilities: TEPCO, City gas, Public Water Supply, Rainwater sewage confluence system (public sewer), Car space one minute (COURT.1 ~ 4, 6, 8, 9), Car space 2 cars (COURT.5, 7), ※ Cityscape Perth of the web is, It might differ from the actual one that caused draw based on the drawings. still, At the expected view of the state planting grown, It does not indicate the status of a particular season. Please note. ※ Section view of the web is one that caused draw on the basis of the drawings, Actually is can differ. ※ Listings image Perth ・ Exterior illustrations may differ from the actual in those of the planning stage. ※ Walk fraction of me is what was calculated 80m as 1 minute. ※ Car travel time is what was converted based on the average value of the actual measurement. However waiting for a signal, Travel time by such congestion is subject to fluctuations. ※ Information of the web is there is a case to change in those of 2013 September. 建築確認番号:第H25SHC108352号(平成25年6月20日付)他、交通補足:東京メトロ副都心線・有楽町線「石神井公園」歩18分、設備:東京電力、都市ガス、公営水道、雨水汚水合流方式(公営下水道)、カースペース1台分(COURT.1 ~ 4、6、8、9)、カースペース2台分(COURT.5、7)、※掲載の街並パースは、図面を基に描き起こしたもので実際と異なる場合がございます。 尚、植栽は成長した状態の予想図で、特定の季節の状況を示すものではありません。予めご了承ください。※掲載の区画図は図面をもとに描き起こしたもので、実際とは異なる場合があります。※掲載のイメージパース・外構イラストは計画段階のもので実際とは異なる場合があります。※掲載の徒歩分数は80mを1分として算出したものです。※車の移動時間は実際の計測での平均値に基づき換算したものです。但し信号待ち、渋滞などによって移動時間は変動する場合があります。※掲載の情報は2013年9月現在のもので変更になる場合があります。 | Company profile 会社概要 | | <Seller> Minister of Land, Infrastructure and Transport (4) No. 5744 (one company) Real Estate Association (Corporation) metropolitan area real estate Fair Trade Council member ITOCHU Property Development Co., Ltd., Minato-ku, Tokyo 107-0052 Akasaka 2-9-11 < <売主>国土交通大臣(4)第5744号(一社)不動産協会会員 (公社)首都圏不動産公正取引協議会加盟 伊藤忠都市開発株式会社〒107-0052 東京都港区赤坂2-9-11<販売提携(代理)>国土交通大臣(13)第803号(一社)不動産協会会員 (一社)不動産流通経営協会会員 (公社)首都圏不動産公正取引協議会加盟伊藤忠ハウジング株式会社〒107-0052 東京都港区赤坂2-9-11<販売提携(復代理)>国土交通大臣(1)第8045号(公社)東京都宅地建物取引協会会員 (公社)全国宅地建物取引業協会会員 エース不動産株式会社〒103-0025 東京都中央区日本橋茅場町2-1-11 ビルックス茅場町9階 |
Park公園  Stand Tokyo boasts a vast site Shakujii Park. The park Sambo pond, Shakujii pond, There is such as Square, Various plants, Us forest is to show the expression of the four seasons. It has been popular as a place of recreation and relaxation for many of the people on holiday.
広大な敷地を誇る東京都立石神井公園。園内には三宝池、石神井池、広場などがあり、さまざまな植物、樹林が四季折々の表情を見せてくれる。休日には沢山の人々の憩いの場として親しまれている。
 Chalk of the residence shine in blue sky site area of 100 sq m or more, Ensure the room of up to 120 sq m more than. Arranged such as "Pinkamajoru", "Kalmia" "daphne" in planting continuing around, Create a new landscape to become the city (streets Rendering)
青空に映える白亜の邸は敷地面積100m2以上、最大120m2超のゆとりを確保。周囲に連なる植栽には「ピンカマジョール」「カルミア」「ジンチョウゲ」などを配し、新しい風景となる街を創造(街並完成予想図)
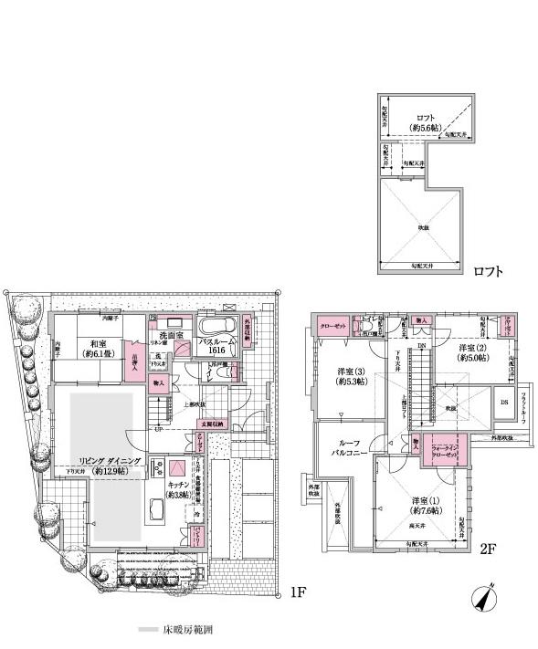
 Floor plan example
間取り例
Otherその他  Cool waterside, Song of a bird, Rush forest park so people can watch a lot of flowers and in the green. The summer vacation, Square is also equipped with the day camp to enjoy. I'm happy and located a 10-minute walk holiday will want to go the whole family in the park.
涼しげな水辺、鳥のさえずり、緑の中で沢山の花々を鑑賞できる井草森公園。夏休みには、デイキャンプが楽しめる広場も完備。休日には家族揃って出かけたくなる公園が徒歩10分に立地とは嬉しい。
 13-minute walk of the Summit Iogi Ekimae. Open from 9:00 am to midnight. Since it is open until late, Convenient it is shopping even return is late. Parking is also equipped with 100 cars. Also it looks good to go by car to the family together, such as a holiday.
徒歩13分のサミット井荻駅前店。朝9時から深夜0時まで営業。遅くまで営業しているので、帰りが遅くなっても買い物ができて便利。駐車場も100台分完備。休日などは家族一緒に車で行くのも良さそうだ。
 Seibu Shinjuku Line "Iogi" a 15-minute walk to the station. 15 minutes direct to "Seibushinjuku" station on the Seibu Shinjuku Line, You can also switch "Takadanobaba" from the train station to the JR Yamanote Line and the Tokyo Metro Tozai Line, Allows smooth access to the downtown area.
西武新宿線「井荻」駅まで徒歩15分。西武新宿線で「西武新宿」駅まで直通で15分、「高田馬場」駅からはJR山手線や東京メトロ東西線へ乗り換えることもでき、都心エリアへスムーズなアクセスが可能。
 11 minutes' walk of Kojima NEW rush shop. Open from morning 10 am until 8 pm (pm weekends and holidays in the morning 10 ~ ). Very convenient when heavy goods and a lot of shopping because it is equipped with parking.
徒歩11分のコジマNEW井草店。朝10時半から夜8時まで営業(土日祝日は朝10時 ~ )。駐車場を完備しているので重い商品や沢山買い物する際大変便利。
 Iogi to Our Lady kindergarten walk 9 minutes (photo). Also, There is also a Shakujii nursery school is a 10-minute walk. Junior high school is a 2-minute short walk, Elementary school, such as a 3-minute walk, Familiar're education facilities, Kindergarten ・ School is likely to say that easy a favorable environment.
井荻聖母幼稚園まで徒歩9分(写真)。また、徒歩10分の距離には石神井保育園もある。中学校がわずか徒歩2分、小学校が徒歩3分など、教育施設が身近に整い、通園・通学がラクな好環境と言えそうだ。
 Walk from the Chihiro Art Museum 7 minutes. If you enjoyed "Chihiro of the garden.", Library and exhibition room, To picture book cafe. Without worrying about the time, Likely to spend a relaxing time and spacious. There is also a children's room, complete with nursing room.
ちひろ美術館まで徒歩7分。「ちひろの庭」を楽しんだら、図書館や展示室、絵本カフェへ。時間を気にせず、ゆったりとした寛ぎの時間を過ごせそう。授乳室を完備したこどものへやもある。
 A 2-minute walk of municipal Shakujii South Junior High School (photo). Peace of mind in this distance if the family. Also, Ward Shimoshakujii elementary school than three minutes and a close walk! Home Ya that from now, Especially recommended for families with children of this generation.
徒歩2分の区立石神井南中学校(写真)。この距離なら家族には安心。また、区立下石神井小学校も徒歩3分と近い!これからというご家庭や、この世代のお子様がいる家庭には特にオススメ。
 Seibu Shinjuku Line "Kamiigusa" a 14-minute walk to the train station (photo). "Iogi" station of trains, And even accessible "Shakujii Park" station. Also, Ideally located in the position of about 10km from Shinjuku (measured at a distance of a straight line). business ・ Smoothly into the center of the leisure!
西武新宿線「上井草」駅(写真)まで徒歩14分。同線の「井荻」駅、さらには「石神井公園」駅も利用可。また、新宿から約10km(直線の距離で計測)という好ポジションに位置。ビジネス・レジャーの中心へもスムーズ!
 A 4-minute walk of the San drag Shimoshakujii shop. Morning 9:30 ~ Open until night 9:30. sake, Rice, It is aligned with the day a variety of products such as supplies. Convenient to go to feel free to buy if this distance.
徒歩4分のサンドラッグ下石神井店。朝9時半 ~ 夜9時半まで営業。お酒、お米、日用品など多彩な商品が揃う。この距離なら気軽に買い物に行けて便利。
 A 15-minute walk of Kamiigusa sports center. Grand and tennis courts, gymnasium, Heated pool, There are facilities such as training, In order to maintain the health, Freely available by the purpose such as to widen the circle of people.
徒歩15分の上井草スポーツセンター。グランドやテニスコート、体育館、温水プール、トレーニングルームなどの施設があり、健康を保つため、人の輪を広げるためなど目的によって自由に利用可能。
 Floor plan
間取り図
 Floor plan
間取り図
 Floor plan
間取り図
Park公園  730m to rush Forest Park
井草森公園まで730m
 Tokyo 1400m to stand Shakujii Park
東京都立石神井公園まで1400m
Supermarketスーパー  York Mart until Shakujii shop 570m
ヨークマート石神井店まで570m
Local guide map現地案内図  Seibu Shinjuku Line "Iogi" station ・ "Kamiigusa" station, Seibu Ikebukuro Line, Fukutoshin, Yurakucho "Shakujii Park" 3 station 4 routes accessible station. Local neighborhood life convenience facility of enhancement favorable environment (local guide map)
西武新宿線「井荻」駅・「上井草」駅、西武池袋線、副都心線、有楽町線「石神井公園」駅の3駅4路線利用可。現地周辺は生活利便施設が充実の好環境(現地案内図)
 Access view
交通アクセス図
The entire compartment Figure全体区画図  So start driving people the sun and wind to the dwelling unit, Devising the placement of parking spaces. To minimize the sun that is blocked by the next building, Bright and warm even in winter, Produce a comfortable life (whole section view)
住戸に陽光と風を呼び込めるよう、駐車スペースの配置を工夫。隣棟によって遮られる日差しを最小限にすることで、冬でも明るくあたたかい、快適な暮らしを演出(全体区画図)
Station駅  Seibu Shinjuku Line "Kamiigusa" 1050m to the station
西武新宿線「上井草」駅まで1050m
 Seibu Shinjuku Line "Iogi" 1140m to the station
西武新宿線「井荻」駅まで1140m
Primary school小学校  Ward Shimoshakujii until elementary school 200m
区立下石神井小学校まで200m
Location
|