2013December
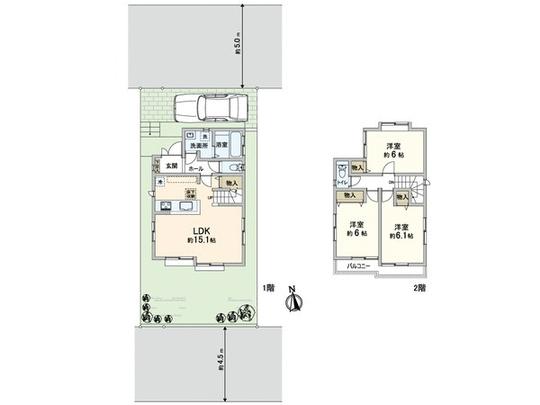
38,800,000 yen, 3LDK, 79.54 sq m
New Homes » Kanto » Tokyo » Nerima
 
| | Nerima-ku, Tokyo 東京都練馬区 |
| Seibu Ikebukuro Line "Oizumigakuen" bus 16 minutes Oizumigakuen eight-chome, walk 3 minutes 西武池袋線「大泉学園」バス16分大泉学園八丁目歩3分 |
Price 価格 | | 38,800,000 yen 3880万円 | Floor plan 間取り | | 3LDK 3LDK | Units sold 販売戸数 | | 1 units 1戸 | Land area 土地面積 | | 100.85 sq m (registration) 100.85m2(登記) | Building area 建物面積 | | 79.54 sq m (registration) 79.54m2(登記) | Driveway burden-road 私道負担・道路 | | Nothing, South 4.5m width (contact the road width 8m), North 5m width 無、南4.5m幅(接道幅8m)、北5m幅 | Completion date 完成時期(築年月) | | December 2013 2013年12月 | Address 住所 | | Nerima-ku, Tokyo Oizumi 3 東京都練馬区大泉町3 | Traffic 交通 | | Seibu Ikebukuro Line "Oizumigakuen" bus 16 minutes Oizumigakuen eight-chome, walk 3 minutes 西武池袋線「大泉学園」バス16分大泉学園八丁目歩3分
| Person in charge 担当者より | | The person in charge [Deputy manager] Fukuda Kenri 担当者【副店長】福田 兼利 | Contact お問い合せ先 | | Mitsui Rehouse Oizumigakuen shop Mitsui Fudosan Realty (Ltd.) TEL: 0120-581131 [Toll free] Please contact the "saw SUUMO (Sumo)" 三井のリハウス大泉学園店三井不動産リアルティ(株)TEL:0120-581131【通話料無料】「SUUMO(スーモ)を見た」と問い合わせください | Building coverage, floor area ratio 建ぺい率・容積率 | | 40% ・ Hundred percent 40%・100% | Time residents 入居時期 | | Immediate available 即入居可 | Land of the right form 土地の権利形態 | | Ownership 所有権 | Structure and method of construction 構造・工法 | | Wooden 2-story 木造2階建 | Use district 用途地域 | | One low-rise 1種低層 | Overview and notices その他概要・特記事項 | | Contact Person [Deputy manager] Fukuda Kenri, Parking: car space 担当者:【副店長】福田 兼利、駐車場:カースペース | Company profile 会社概要 | | <Mediation> Minister of Land, Infrastructure and Transport (13) No. 000777 (one company) Property distribution management Association (Corporation) metropolitan area real estate Fair Trade Council member Mitsui Rehouse Oizumigakuen shop Mitsui Fudosan Realty Co. Yubinbango178-0063 Nerima-ku, Tokyo Higashioizumi 1-33-6 Oizumi Central Building second floor <仲介>国土交通大臣(13)第000777号(一社)不動産流通経営協会会員 (公社)首都圏不動産公正取引協議会加盟三井のリハウス大泉学園店三井不動産リアルティ(株)〒178-0063 東京都練馬区東大泉1-33-6 大泉セントラルビル2階 |
 Local appearance photo
現地外観写真
 Floor plan
間取り図
Location
|