New Homes » Kanto » Tokyo » Nerima
 
| | Nerima-ku, Tokyo 東京都練馬区 |
| Tokyo Metro Yurakucho Line "subway Akatsuka" walk 16 minutes 東京メトロ有楽町線「地下鉄赤塚」歩16分 |
| ☆ Characteristic ☆ 2 along the line more accessible, Facing south, Yang per good, LDK15 tatami mats or moreese-style room, Face-to-face kitchen, South balcony, Walk-in closet Please refer to the video for more information ☆特徴☆2沿線以上利用可、南向き、陽当り良好、LDK15畳以上、和室、対面式キッチン、南面バルコニー、ウォークインクロゼット 詳細は動画をご覧ください |
| And a clean living space with abundant storage. LDK15 Pledge greater than or equal to the care of the space gather the family. Tagara central children's park is also near, You can enjoy a life of feeling the natural familiar. 豊富な収納ですっきりとした住空間。家族の集うスペースを大事にしたLDK15帖以上。田柄中央児童公園も近く、自然を身近に感じながらの生活をお楽しみいただけます。 |
Features pickup 特徴ピックアップ | | 2 along the line more accessible / Facing south / Yang per good / LDK15 tatami mats or more / Or more before road 6m / Japanese-style room / Face-to-face kitchen / Toilet 2 places / 2-story / South balcony / Walk-in closet / All rooms are two-sided lighting / Attic storage 2沿線以上利用可 /南向き /陽当り良好 /LDK15畳以上 /前道6m以上 /和室 /対面式キッチン /トイレ2ヶ所 /2階建 /南面バルコニー /ウォークインクロゼット /全室2面採光 /屋根裏収納 | Price 価格 | | 55,900,000 yen ~ 61,800,000 yen 5590万円 ~ 6180万円 | Floor plan 間取り | | 3LDK ~ 4LDK + S (storeroom) 3LDK ~ 4LDK+S(納戸) | Units sold 販売戸数 | | 2 units 2戸 | Total units 総戸数 | | 3 units 3戸 | Land area 土地面積 | | 105.67 sq m ~ 115.53 sq m 105.67m2 ~ 115.53m2 | Building area 建物面積 | | 92.46 sq m ~ 94.67 sq m 92.46m2 ~ 94.67m2 | Completion date 完成時期(築年月) | | June 2013 2013年6月 | Address 住所 | | Nerima-ku, Tokyo Tagara 4 東京都練馬区田柄4 | Traffic 交通 | | Tokyo Metro Yurakucho Line "subway Akatsuka" walk 16 minutes Tobu Tojo Line "under Akatsuka" walk 14 minutes Toei Oedo Line "Hikarigaoka" walk 21 minutes 東京メトロ有楽町線「地下鉄赤塚」歩16分 東武東上線「下赤塚」歩14分 都営大江戸線「光が丘」歩21分
| Related links 関連リンク | | [Related Sites of this company] 【この会社の関連サイト】 | Person in charge 担当者より | | Person in charge of real-estate and building FP Yoto Masato Age: 30 Daigyokai Experience: 7 years "for the sake of customers" is my standard of behavior. Price near Super, Such as school spirit characteristic of the school, Raised examined many in one, We aim for people to be trusted. It is said to want to buy from Yoto's is now a lot recently thanks to you! 担当者宅建FP世戸誠人年齢:30代業界経験:7年「お客様のために」が私の行動基準です。近くのスーパーの価格、学校の校風特徴など、一つでも多く調べ上げ、信頼される人を目指しています。おかげさまで世戸さんから買いたいと言われることが最近多くなりました! | Contact お問い合せ先 | | TEL: 0800-601-5169 [Toll free] mobile phone ・ Also available from PHS Caller ID is not notified Please contact the "saw SUUMO (Sumo)" If it does not lead, If the real estate company TEL:0800-601-5169【通話料無料】携帯電話・PHSからもご利用いただけます 発信者番号は通知されません 「SUUMO(スーモ)を見た」と問い合わせください つながらない方、不動産会社の方は
| Building coverage, floor area ratio 建ぺい率・容積率 | | Kenpei rate: 50%, Volume ratio: 100% 建ペい率:50%、容積率:100% | Time residents 入居時期 | | Consultation 相談 | Land of the right form 土地の権利形態 | | Ownership 所有権 | Structure and method of construction 構造・工法 | | Wooden 2-story 木造2階建 | Use district 用途地域 | | One low-rise 1種低層 | Overview and notices その他概要・特記事項 | | Contact: Yoto Masato 担当者:世戸誠人 | Company profile 会社概要 | | <Mediation> Governor of Tokyo (1) the first 090,418 No. SUMICOM (Ltd.) Centurion Yubinbango151-0063 Shibuya-ku, Tokyo Tomigaya 2-14-5 Premiere first floor <仲介>東京都知事(1)第090418号SUMICOM(株)センチュリオン〒151-0063 東京都渋谷区富ヶ谷2-14-5 プルミエール1階 |
Local appearance photo現地外観写真  Local (10 May 2013) Shooting
現地(2013年10月)撮影
Entrance玄関  Local (10 May 2013) Shooting
現地(2013年10月)撮影
Livingリビング  Indoor (10 May 2013) Shooting
室内(2013年10月)撮影
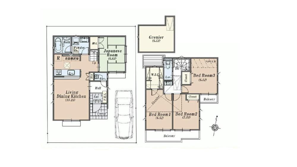
Floor plan間取り図  Price 61,800,000 yen, 4LDK+S, Land area 105.67 sq m , Building area 94.67 sq m
価格6180万円、4LDK+S、土地面積105.67m2、建物面積94.67m2
Livingリビング  Indoor (10 May 2013) Shooting
室内(2013年10月)撮影
Bathroom浴室  Indoor (10 May 2013) Shooting
室内(2013年10月)撮影
Kitchenキッチン  Indoor (10 May 2013) Shooting
室内(2013年10月)撮影
Non-living roomリビング以外の居室  Indoor (10 May 2013) Shooting
室内(2013年10月)撮影
Wash basin, toilet洗面台・洗面所  Indoor (10 May 2013) Shooting
室内(2013年10月)撮影
Receipt収納  Walk-in closet (October 2013) Shooting
ウォークインクローゼット(2013年10月)撮影
Toiletトイレ  Indoor (10 May 2013) Shooting
室内(2013年10月)撮影
Local photos, including front road前面道路含む現地写真  Local (10 May 2013) Shooting
現地(2013年10月)撮影
Parking lot駐車場  Local (10 May 2013) Shooting
現地(2013年10月)撮影
Kitchenキッチン  Indoor (10 May 2013) Shooting
室内(2013年10月)撮影
Non-living roomリビング以外の居室  Indoor (10 May 2013) Shooting
室内(2013年10月)撮影
Local photos, including front road前面道路含む現地写真  Local (10 May 2013) Shooting
現地(2013年10月)撮影
Non-living roomリビング以外の居室  Indoor (10 May 2013) Shooting
室内(2013年10月)撮影
 Indoor (10 May 2013) Shooting
室内(2013年10月)撮影
 Indoor (10 May 2013) Shooting
室内(2013年10月)撮影
 Indoor (10 May 2013) Shooting
室内(2013年10月)撮影
 Indoor (10 May 2013) Shooting
室内(2013年10月)撮影
Location
|