New Homes » Kanto » Tokyo » Nerima
 
| | Nerima-ku, Tokyo 東京都練馬区 |
| Seibu Shinjuku Line "Kami Shakujii" walk 17 minutes 西武新宿線「上石神井」歩17分 |
| And a clean living space in the Seibu Shinjuku Line "Musashi institutions" station walk 5 minutes ○ all building release realism with roof balcony ○ all room storage, such as abundant storage 西武新宿線「武蔵関」駅徒歩5分○全棟解放感あふれるルーフバルコニー付○全居室収納など豊富な収納ですっきりとした住空間 |
| Facing south, System kitchen, Yang per good, All room storage, LDK15 tatami mats or more, Washbasin with shower, Toilet 2 places, Bathroom 1 tsubo or more, 2-story, South balcony, Double-glazing, Warm water washing toilet seat, The window in the bathroom, TV monitor interphone, Dish washing dryer, Living stairs, City gas, roof balcony, Floor heating 南向き、システムキッチン、陽当り良好、全居室収納、LDK15畳以上、シャワー付洗面台、トイレ2ヶ所、浴室1坪以上、2階建、南面バルコニー、複層ガラス、温水洗浄便座、浴室に窓、TVモニタ付インターホン、食器洗乾燥機、リビング階段、都市ガス、ルーフバルコニー、床暖房 |
Features pickup 特徴ピックアップ | | Facing south / System kitchen / Yang per good / All room storage / LDK15 tatami mats or more / Washbasin with shower / Toilet 2 places / Bathroom 1 tsubo or more / 2-story / South balcony / Double-glazing / Warm water washing toilet seat / The window in the bathroom / TV monitor interphone / Dish washing dryer / Living stairs / City gas / roof balcony / Floor heating 南向き /システムキッチン /陽当り良好 /全居室収納 /LDK15畳以上 /シャワー付洗面台 /トイレ2ヶ所 /浴室1坪以上 /2階建 /南面バルコニー /複層ガラス /温水洗浄便座 /浴室に窓 /TVモニタ付インターホン /食器洗乾燥機 /リビング階段 /都市ガス /ルーフバルコニー /床暖房 | Price 価格 | | 48,800,000 yen ~ 55,800,000 yen 4880万円 ~ 5580万円 | Floor plan 間取り | | 3LDK 3LDK | Units sold 販売戸数 | | 4 units 4戸 | Total units 総戸数 | | 4 units 4戸 | Land area 土地面積 | | 80.04 sq m ~ 87.2 sq m (measured) 80.04m2 ~ 87.2m2(実測) | Building area 建物面積 | | 82.69 sq m ~ 94.82 sq m (measured) 82.69m2 ~ 94.82m2(実測) | Driveway burden-road 私道負担・道路 | | Road width: North 5.95m ・ West 5.98m 道路幅:北5.95m・西5.98m | Completion date 完成時期(築年月) | | January 2014 will 2014年1月予定 | Address 住所 | | Nerima-ku, Tokyo Sekimachikita 1 東京都練馬区関町北1 | Traffic 交通 | | Seibu Shinjuku Line "Kami Shakujii" walk 17 minutes Seibu Shinjuku Line "Musashi institutions" walk 5 minutes Seibu Shinjuku Line "Higashifushimi" walk 22 minutes 西武新宿線「上石神井」歩17分 西武新宿線「武蔵関」歩5分 西武新宿線「東伏見」歩22分
| Related links 関連リンク | | [Related Sites of this company] 【この会社の関連サイト】 | Person in charge 担当者より | | Rep Uji Kazutane Age: 40 Daigyokai experience: what is the best for 11 years customers? . Purchase of real estate ・ Your sale Please leave me. We look forward to your inquiry. 担当者宇治 和胤年齢:40代業界経験:11年お客様のために何が最善か?を一緒に考えさせていただくことを念頭に活動しております。不動産の購入・ご売却は私にお任せください。お問合せを心よりお待ちしております。 | Contact お問い合せ先 | | TEL: 0800-603-0512 [Toll free] mobile phone ・ Also available from PHS Caller ID is not notified Please contact the "saw SUUMO (Sumo)" If it does not lead, If the real estate company TEL:0800-603-0512【通話料無料】携帯電話・PHSからもご利用いただけます 発信者番号は通知されません 「SUUMO(スーモ)を見た」と問い合わせください つながらない方、不動産会社の方は
| Building coverage, floor area ratio 建ぺい率・容積率 | | Kenpei rate: 50%, Volume ratio: 150% 建ペい率:50%、容積率:150% | Time residents 入居時期 | | Consultation 相談 | Land of the right form 土地の権利形態 | | Ownership 所有権 | Structure and method of construction 構造・工法 | | Wooden 2-story 木造2階建 | Use district 用途地域 | | One middle and high 1種中高 | Land category 地目 | | Residential land 宅地 | Overview and notices その他概要・特記事項 | | Contact: Uji Kazutane, Building confirmation number: GEA1311-20648 issue other 担当者:宇治 和胤、建築確認番号:GEA1311-20648号他 | Company profile 会社概要 | | <Mediation> Governor of Tokyo (9) No. 041553 (Corporation) All Japan Real Estate Association (Corporation) metropolitan area real estate Fair Trade Council member Showa building (Ltd.) Yubinbango167-0053 Suginami-ku, Tokyo Nishiogiminami 3-18-15 <仲介>東京都知事(9)第041553号(公社)全日本不動産協会会員 (公社)首都圏不動産公正取引協議会加盟昭和建物(株)〒167-0053 東京都杉並区西荻南3-18-15 |
Same specifications photos (appearance)同仕様写真(外観)  Seller construction cases _ appearance
売主施工例_外観
 Local appearance photo
現地外観写真
 Local appearance photo
現地外観写真
 The entire compartment Figure
全体区画図
 Local photos, including front road
前面道路含む現地写真
 Local photos, including front road
前面道路含む現地写真
Same specifications photos (living)同仕様写真(リビング)  Seller construction cases _ living
売主施工例_リビング
 Seller construction cases _ living
売主施工例_リビング
Same specifications photo (kitchen)同仕様写真(キッチン)  Seller construction cases _ Kitchen
売主施工例_キッチン
Same specifications photo (bathroom)同仕様写真(浴室)  Seller construction cases _ bathroom
売主施工例_浴室
Same specifications photos (Other introspection)同仕様写真(その他内観)  Seller construction cases _ Western-style
売主施工例_洋室
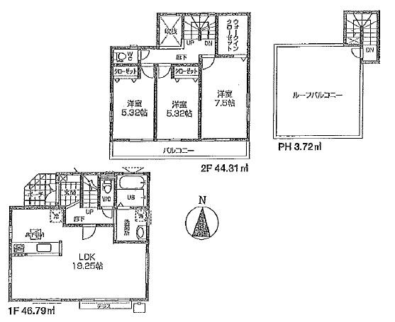
Floor plan間取り図  (Building 2), Price 55,800,000 yen, 3LDK, Land area 80.21 sq m , Building area 94.82 sq m
(2号棟)、価格5580万円、3LDK、土地面積80.21m2、建物面積94.82m2
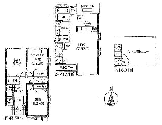
 (4 Building), Price 48,800,000 yen, 3LDK, Land area 87.2 sq m , Building area 88.01 sq m
(4号棟)、価格4880万円、3LDK、土地面積87.2m2、建物面積88.01m2
Supermarketスーパー  Until Miuraya Musashi Sekimise 365m
三浦屋武蔵関店まで365m
 514m to supermarket Santoku Seki, Mie shop
スーパーマーケット三徳関町店まで514m
 1012m to Summit store Shakujiidai shop
サミットストア石神井台店まで1012m
Junior high school中学校  648m to Nerima Shakujii West Junior High School
練馬区立石神井西中学校まで648m
Primary school小学校  307m to Nerima Shakujii Nishi Elementary School
練馬区立石神井西小学校まで307m
Kindergarten ・ Nursery幼稚園・保育園  Seki, Mie to nursery school 680m
関町保育園まで680m
Hospital病院  318m until the medical corporation Association Ryoyamakai Seki, Mie hospital
医療法人社団遼山会関町病院まで318m
Park公園  1358m to Tateno park
立野公園まで1358m
Location
|