2013December
61,500,000 yen, 4LDK, 106.4 sq m
New Homes » Kanto » Tokyo » Nerima
 
| | Nerima-ku, Tokyo 東京都練馬区 |
| Seibu Shinjuku Line "Kami Shakujii" walk 16 minutes 西武新宿線「上石神井」歩16分 |
Price 価格 | | 61,500,000 yen 6150万円 | Floor plan 間取り | | 4LDK 4LDK | Units sold 販売戸数 | | 1 units 1戸 | Land area 土地面積 | | 113.23 sq m (measured) 113.23m2(実測) | Building area 建物面積 | | 106.4 sq m (measured) 106.4m2(実測) | Driveway burden-road 私道負担・道路 | | 2.21 sq m , West 4m width (contact the road width 7.5m), North 6m width 2.21m2、西4m幅(接道幅7.5m)、北6m幅 | Completion date 完成時期(築年月) | | December 2013 2013年12月 | Address 住所 | | Nerima-ku, Tokyo Sekimachiminami 2 東京都練馬区関町南2 | Traffic 交通 | | Seibu Shinjuku Line "Kami Shakujii" walk 16 minutes JR Chuo Line "Kichijoji" 10 minutes Sekimachiminami chome walk 5 minutes by bus 西武新宿線「上石神井」歩16分 JR中央線「吉祥寺」バス10分関町南二丁目歩5分
| Person in charge 担当者より | | Rep Makino TakashiHiro 担当者牧野崇広 | Contact お問い合せ先 | | Mitsui Rehouse Kami Shakujii shop Mitsui Fudosan Realty (Ltd.) TEL: 0120-413131 [Toll free] Please contact the "saw SUUMO (Sumo)" 三井のリハウス上石神井店三井不動産リアルティ(株)TEL:0120-413131【通話料無料】「SUUMO(スーモ)を見た」と問い合わせください | Building coverage, floor area ratio 建ぺい率・容積率 | | Fifty percent ・ Hundred percent 50%・100% | Time residents 入居時期 | | Immediate available 即入居可 | Land of the right form 土地の権利形態 | | Ownership 所有権 | Structure and method of construction 構造・工法 | | Wooden 2-story 木造2階建 | Use district 用途地域 | | One low-rise 1種低層 | Overview and notices その他概要・特記事項 | | Contact: Makino TakashiHiro, Parking: car space 担当者:牧野崇広、駐車場:カースペース | Company profile 会社概要 | | <Mediation> Minister of Land, Infrastructure and Transport (13) No. 000777 (one company) Property distribution management Association (Corporation) metropolitan area real estate Fair Trade Council member Mitsui Rehouse Kami Shakujii shop Mitsui Fudosan Realty Co. Yubinbango177-0044 Nerima-ku, Tokyo Kami Shakujii 1-14-2 Takahashi building second floor <仲介>国土交通大臣(13)第000777号(一社)不動産流通経営協会会員 (公社)首都圏不動産公正取引協議会加盟三井のリハウス上石神井店三井不動産リアルティ(株)〒177-0044 東京都練馬区上石神井1-14-2 高橋ビル2階 |
 Local appearance photo
現地外観写真
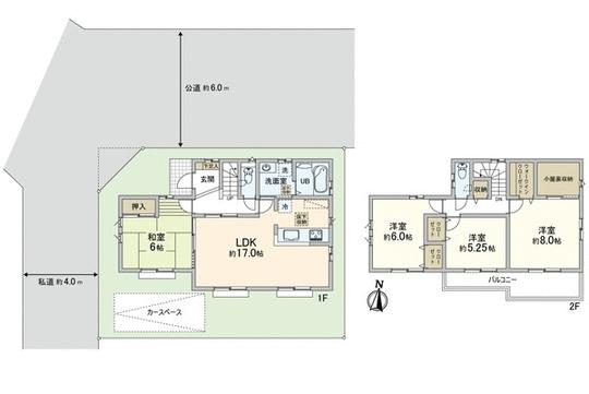
 Floor plan
間取り図
Location
|