|
|
Nerima-ku, Tokyo
東京都練馬区
|
|
Seibu Ikebukuro Line "Nakamurabashi" walk 9 minutes
西武池袋線「中村橋」歩9分
|
|
[Group companies seller properties] Living floor heating! With dishwasher kitchen bathroom ventilation drying function ☆ Intercom with TV monitor!
【グループ会社売主物件】リビング床暖房!食洗機付きキッチン浴室換気乾燥機能付き☆TVモニター付インターホン!
|
|
Good per sun facing south road! Supermarket, school, Near the post office, etc., Around the quiet residential area. It is perfect for families with small children ☆
南道路に面し陽当たり良好!スーパー、学校、郵便局等近く、周辺は閑静な住宅街。小さなお子様がいるご家庭にピッタリです☆
|
Features pickup 特徴ピックアップ | | Corresponding to the flat-35S / 2 along the line more accessible / LDK18 tatami mats or more / Super close / Facing south / System kitchen / Bathroom Dryer / Yang per good / All room storage / Flat to the station / Siemens south road / A quiet residential area / Around traffic fewer / Face-to-face kitchen / Barrier-free / Toilet 2 places / Bathroom 1 tsubo or more / 2-story / South balcony / Warm water washing toilet seat / The window in the bathroom / TV monitor interphone / Ventilation good / All living room flooring / Dish washing dryer / Living stairs / City gas / All rooms are two-sided lighting / Flat terrain / Attic storage / Floor heating フラット35Sに対応 /2沿線以上利用可 /LDK18畳以上 /スーパーが近い /南向き /システムキッチン /浴室乾燥機 /陽当り良好 /全居室収納 /駅まで平坦 /南側道路面す /閑静な住宅地 /周辺交通量少なめ /対面式キッチン /バリアフリー /トイレ2ヶ所 /浴室1坪以上 /2階建 /南面バルコニー /温水洗浄便座 /浴室に窓 /TVモニタ付インターホン /通風良好 /全居室フローリング /食器洗乾燥機 /リビング階段 /都市ガス /全室2面採光 /平坦地 /屋根裏収納 /床暖房 |
Price 価格 | | 65,800,000 yen 6580万円 |
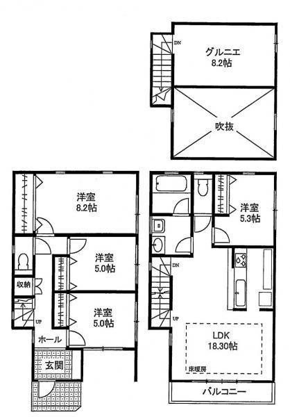
Floor plan 間取り | | 3LDK 3LDK |
Units sold 販売戸数 | | 1 units 1戸 |
Total units 総戸数 | | 1 units 1戸 |
Land area 土地面積 | | 90.58 sq m (measured) 90.58m2(実測) |
Building area 建物面積 | | 99.77 sq m (measured) 99.77m2(実測) |
Driveway burden-road 私道負担・道路 | | Nothing, South 4.1m width 無、南4.1m幅 |
Completion date 完成時期(築年月) | | March 2014 2014年3月 |
Address 住所 | | Nerima-ku, Tokyo Nakamura 3 東京都練馬区中村3 |
Traffic 交通 | | Seibu Ikebukuro Line "Nakamurabashi" walk 9 minutes Seibu Ikebukuro Line "Fujimidai" walk 13 minutes Seibu Shinjuku Line "Saginomiya" walk 18 minutes 西武池袋線「中村橋」歩9分 西武池袋線「富士見台」歩13分 西武新宿線「鷺ノ宮」歩18分
|
Person in charge 担当者より | | Rep Sugawara Erika is Sugawara of website management charge. Property Ya not be fully published in SUUMO, Come Thank also many non-public information, such as plans to sell now, I also please check website (^^) v 担当者菅原 絵里香ホームページ運営担当の菅原です。SUUMOに掲載しきれていない物件や、これから販売予定などの未公開情報も多数ございます是非、ホームページもチェックしてみてくださいね(^^)v |
Contact お問い合せ先 | | TEL: 0800-603-1421 [Toll free] mobile phone ・ Also available from PHS Caller ID is not notified Please contact the "saw SUUMO (Sumo)" If it does not lead, If the real estate company TEL:0800-603-1421【通話料無料】携帯電話・PHSからもご利用いただけます 発信者番号は通知されません 「SUUMO(スーモ)を見た」と問い合わせください つながらない方、不動産会社の方は
|
Building coverage, floor area ratio 建ぺい率・容積率 | | 60% ・ 200% 60%・200% |
Time residents 入居時期 | | Consultation 相談 |
Land of the right form 土地の権利形態 | | Ownership 所有権 |
Structure and method of construction 構造・工法 | | Wooden 2-story 木造2階建 |
Use district 用途地域 | | One low-rise 1種低層 |
Other limitations その他制限事項 | | Height district, Quasi-fire zones 高度地区、準防火地域 |
Overview and notices その他概要・特記事項 | | Contact: Sugawara Erika, Facilities: Public Water Supply, This sewage, City gas, Building confirmation number: No. 201310157, Parking: No 担当者:菅原 絵里香、設備:公営水道、本下水、都市ガス、建築確認番号:第201310157号、駐車場:無 |
Company profile 会社概要 | | <Mediation> Governor of Tokyo (5) No. 071012 (Corporation) All Japan Real Estate Association (Corporation) metropolitan area real estate Fair Trade Council member (Ltd.) living living 販本 shop Yubinbango167-0022 Suginami-ku, Tokyo Shimo Igusa 3-39-17 <仲介>東京都知事(5)第071012号(公社)全日本不動産協会会員 (公社)首都圏不動産公正取引協議会加盟(株)リビング住販本店〒167-0022 東京都杉並区下井草3-39-17 |