|
|
Nerima-ku, Tokyo
東京都練馬区
|
|
Seibu Ikebukuro Line "Shakujii Park" 20 minutes Doshida Yawatamae walk 6 minutes by bus
西武池袋線「石神井公園」バス20分土支田八幡前歩6分
|
|
Corresponding to the flat-35S, System kitchen, Bathroom Dryer, All room storage, Shaping land, Washbasin with shower, Bathroom 1 tsubo or more, 2-story, Double-glazing, Warm water washing toilet seat, Nantei, TV monitor interphone
フラット35Sに対応、システムキッチン、浴室乾燥機、全居室収納、整形地、シャワー付洗面台、浴室1坪以上、2階建、複層ガラス、温水洗浄便座、南庭、TVモニタ付インターホン
|
|
■ Good day per west adjacent land passage. ■ Green often a quiet residential area ■ Outer wall uses "micro-guard".
■西側隣地通路につき日当たり良好。■緑多い閑静な住宅街■外壁は「マイクロガード」を使用します。
|
Features pickup 特徴ピックアップ | | Corresponding to the flat-35S / System kitchen / Bathroom Dryer / All room storage / Shaping land / Washbasin with shower / Bathroom 1 tsubo or more / 2-story / Double-glazing / Warm water washing toilet seat / Nantei / TV monitor interphone / All living room flooring / Walk-in closet / City gas フラット35Sに対応 /システムキッチン /浴室乾燥機 /全居室収納 /整形地 /シャワー付洗面台 /浴室1坪以上 /2階建 /複層ガラス /温水洗浄便座 /南庭 /TVモニタ付インターホン /全居室フローリング /ウォークインクロゼット /都市ガス |
Price 価格 | | 35,800,000 yen 3580万円 |
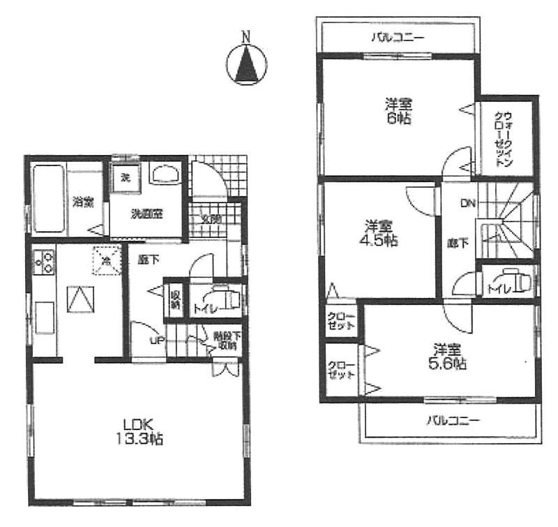
Floor plan 間取り | | 3LDK 3LDK |
Units sold 販売戸数 | | 1 units 1戸 |
Total units 総戸数 | | 1 units 1戸 |
Land area 土地面積 | | 79.57 sq m (measured) 79.57m2(実測) |
Building area 建物面積 | | 74.94 sq m (measured) 74.94m2(実測) |
Driveway burden-road 私道負担・道路 | | Nothing, North 4m width 無、北4m幅 |
Completion date 完成時期(築年月) | | May 2014 2014年5月 |
Address 住所 | | Nerima-ku, Tokyo Doshida 4 東京都練馬区土支田4 |
Traffic 交通 | | Seibu Ikebukuro Line "Shakujii Park" 20 minutes Doshida Yawatamae walk 6 minutes by bus Toei Oedo Line "Hikarigaoka" walk 29 minutes Tokyo Metro Yurakucho Line "subway Narimasu" walk 35 minutes 西武池袋線「石神井公園」バス20分土支田八幡前歩6分 都営大江戸線「光が丘」歩29分 東京メトロ有楽町線「地下鉄成増」歩35分
|
Related links 関連リンク | | [Related Sites of this company] 【この会社の関連サイト】 |
Contact お問い合せ先 | | TEL: 0800-808-4927 [Toll free] mobile phone ・ Also available from PHS Caller ID is not notified Please contact the "saw SUUMO (Sumo)" If it does not lead, If the real estate company TEL:0800-808-4927【通話料無料】携帯電話・PHSからもご利用いただけます 発信者番号は通知されません 「SUUMO(スーモ)を見た」と問い合わせください つながらない方、不動産会社の方は
|
Building coverage, floor area ratio 建ぺい率・容積率 | | Fifty percent ・ Hundred percent 50%・100% |
Time residents 入居時期 | | June 2014 schedule 2014年6月予定 |
Land of the right form 土地の権利形態 | | Ownership 所有権 |
Structure and method of construction 構造・工法 | | Wooden 2-story 木造2階建 |
Use district 用途地域 | | One low-rise 1種低層 |
Other limitations その他制限事項 | | Scenic zone 風致地区 |
Overview and notices その他概要・特記事項 | | Facilities: Public Water Supply, This sewage, City gas, Building confirmation number: TKK confirmed 13-1772, Parking: car space 設備:公営水道、本下水、都市ガス、建築確認番号:TKK確認済13-1772、駐車場:カースペース |
Company profile 会社概要 | | <Mediation> Governor of Tokyo (5) No. 070817 (Ltd.) Create Two one Yubinbango176-0021 Nerima-ku, Tokyo Nukui 1-48-4 <仲介>東京都知事(5)第070817号(株)クリエイトトゥーワン〒176-0021 東京都練馬区貫井1-48-4 |