New Homes » Kanto » Tokyo » Nerima


Nerima-ku, Tokyo
Tokyo Metro Yurakucho Line "Heiwadai" walk 6 minutes
Features pickup
Pre-ground survey / Parking two Allowed / 2 along the line more accessible / Super close / System kitchen / Bathroom Dryer / Flat to the station / LDK15 tatami mats or more / Shaping land / Face-to-face kitchen / Wide balcony / Barrier-free / Toilet 2 places / Bathroom 1 tsubo or more / 2-story / South balcony / Underfloor Storage / Dish washing dryer / Walk-in closet / Water filter / Three-story or more / City gas / Flat terrain / Attic storage / Floor heating / Development subdivision in
Price
71,800,000 yen ~ 77,800,000 yen
Floor plan
4LDK
Units sold
2 units
Total units
3 units
Land area
110.03 sq m ~ 110.05 sq m (registration)
Building area
113.85 sq m ~ 137.12 sq m (measured)
Driveway burden-road
Road width: 6.0m ・ 5.0m
Completion date
March 2014 early schedule
Address
Nerima-ku, Tokyo Kitamachi 7
Traffic
Tokyo Metro Yurakucho Line "Heiwadai" walk 6 minutes
Tokyo Metro Yurakucho Line "subway Akatsuka" walk 14 minutes
Tobu Tojo Line "under Akatsuka" walk 15 minutes
Person in charge
Personnel Kohei Taniguchi Age: 30 Daigyokai experience: Customers are looking for a six-year real estate, one time, Not please visit us in our company. To organize together your condition, On the basis of the wealth of information, Let's First go to see the property.
Contact
TEL: 0800-603-3215 [Toll free] mobile phone ・ Also available from PHS
Caller ID is not notified
Please contact the "saw SUUMO (Sumo)"
If it does not lead, If the real estate company
Building coverage, floor area ratio
Building coverage ((1) 80% (2) 60% (3) 50%), Volume ratio ((1) 300% (2) 200% (3) 100%)
Time residents
April 2014 schedule
Land of the right form
Ownership
Structure and method of construction
Wooden 2-story (framing method), Wooden three-story (framing method)
Use district
Residential, One middle and high, One low-rise
Land category
Residential land
Other limitations
Regulations have by the Landscape Act, Quasi-fire zones, Shade limit Yes
Overview and notices
Contact: Kohei Taniguchi, Building confirmation number: No. 201310083
Company profile
<Mediation> Governor of Tokyo (3) No. 081033 (Corporation) All Japan Real Estate Association (Corporation) metropolitan area real estate Fair Trade Council member fit House Twenty One (Ltd.) Yubinbango176-0023 Nerima-ku, Tokyo Nakamurakita 4-5-13 Aiwabiru third floor


Same specifications photos (appearance)

Same specifications photos (appearance). (C Building) construction cases appearance photo
(C Building) construction cases appearance photo

Other

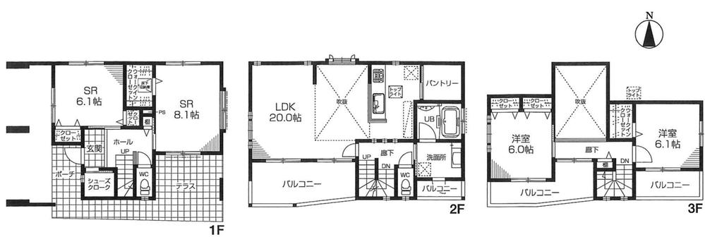
Other. A Building (floor plan)
A Building (floor plan)

Local photos, including front road

Local photos, including front road. Local (12 May 2013) Shooting
Local (12 May 2013) Shooting

Same specifications photos (living)

Same specifications photos (living). Same specifications
Same specifications

Supermarket

Supermarket. Until Life Heiwadai shop 663m
Until Life Heiwadai shop 663m

Same specifications photos (Other introspection)

Same specifications photos (Other introspection). Same specifications (shoes cloak)
Same specifications (shoes cloak)

Primary school

Primary school. 489m to Nerima Tatsukita-cho, Nishi Elementary School
489m to Nerima Tatsukita-cho, Nishi Elementary School

Same specifications photos (Other introspection)

Same specifications photos (Other introspection). Same specifications (blow-part)
Same specifications (blow-part)

Kindergarten ・ Nursery

kindergarten ・ Nursery. Saishoji Minori to nursery school 642m
Saishoji Minori to nursery school 642m

kindergarten ・ Nursery. 616m to Fuji kindergarten
616m to Fuji kindergarten



Location