New Homes » Kanto » Tokyo » Nerima
 
| | Nerima-ku, Tokyo 東京都練馬区 |
| Seibu Ikebukuro Line "Fujimidai" walk 13 minutes 西武池袋線「富士見台」歩13分 |
| Airtight high insulated houses, Immediate Available, South balcony, Face-to-face kitchen, terrace, LDK15 tatami mats or more, System kitchen, Bathroom Dryer, All room storage, A quiet residential areaese-style room, Washbasin with shower, Wa 高気密高断熱住宅、即入居可、南面バルコニー、対面式キッチン、テラス、LDK15畳以上、システムキッチン、浴室乾燥機、全居室収納、閑静な住宅地、和室、シャワー付洗面台、ワ |
| Seibu Ikebukuro Line "Fujimidai" station a 10-minute walk of convenience, Because of the two-story 4LDK south adjacent land passage of the land 30 square meters, Good per yang. Peripheral does not have most out of the vehicle to the front of the road in a quiet residential area. 西武池袋線「富士見台」駅徒歩10分の利便性、土地30坪の2階建て4LDK南側隣地通路の為、陽当たり良好です。周辺は閑静な住宅街で前面の道路へは車両の出入りがほとんどありません。 |
Features pickup 特徴ピックアップ | | Airtight high insulated houses / Immediate Available / System kitchen / Bathroom Dryer / All room storage / A quiet residential area / LDK15 tatami mats or more / Japanese-style room / Washbasin with shower / Face-to-face kitchen / Wide balcony / Barrier-free / Toilet 2 places / Bathroom 1 tsubo or more / 2-story / South balcony / Warm water washing toilet seat / The window in the bathroom / Leafy residential area / Dish washing dryer / Walk-in closet / Water filter / Living stairs / All rooms are two-sided lighting / Attic storage / Floor heating / terrace 高気密高断熱住宅 /即入居可 /システムキッチン /浴室乾燥機 /全居室収納 /閑静な住宅地 /LDK15畳以上 /和室 /シャワー付洗面台 /対面式キッチン /ワイドバルコニー /バリアフリー /トイレ2ヶ所 /浴室1坪以上 /2階建 /南面バルコニー /温水洗浄便座 /浴室に窓 /緑豊かな住宅地 /食器洗乾燥機 /ウォークインクロゼット /浄水器 /リビング階段 /全室2面採光 /屋根裏収納 /床暖房 /テラス | Price 価格 | | 54,800,000 yen 5480万円 | Floor plan 間取り | | 4LDK 4LDK | Units sold 販売戸数 | | 1 units 1戸 | Land area 土地面積 | | 100 sq m (measured) 100m2(実測) | Building area 建物面積 | | 94.46 sq m (measured) 94.46m2(実測) | Driveway burden-road 私道負担・道路 | | Nothing, West 4m width 無、西4m幅 | Completion date 完成時期(築年月) | | October 2013 2013年10月 | Address 住所 | | Nerima-ku, Tokyo Nukui 4 東京都練馬区貫井4 | Traffic 交通 | | Seibu Ikebukuro Line "Fujimidai" walk 13 minutes Seibu Ikebukuro Line "Nakamurabashi" walk 15 minutes Seibu Ikebukuro Line "Nerima Takanodai" walk 17 minutes 西武池袋線「富士見台」歩13分 西武池袋線「中村橋」歩15分 西武池袋線「練馬高野台」歩17分
| Person in charge 担当者より | | Person in charge of real-estate and building Watanabe Nobuhiro Age: 40 Daigyokai experience: just after this year If noticing 10 years. Since the end of the year it is open up to 24 days, Please feel free to contact us. 担当者宅建渡邉 伸弘年齢:40代業界経験:10年気が付けば今年もあとわずか。 年内は24日まで営業しておりますので、お気軽にお問合せ下さい。 | Contact お問い合せ先 | | TEL: 0800-603-3215 [Toll free] mobile phone ・ Also available from PHS Caller ID is not notified Please contact the "saw SUUMO (Sumo)" If it does not lead, If the real estate company TEL:0800-603-3215【通話料無料】携帯電話・PHSからもご利用いただけます 発信者番号は通知されません 「SUUMO(スーモ)を見た」と問い合わせください つながらない方、不動産会社の方は
| Building coverage, floor area ratio 建ぺい率・容積率 | | Fifty percent ・ Hundred percent 50%・100% | Time residents 入居時期 | | Immediate available 即入居可 | Land of the right form 土地の権利形態 | | Ownership 所有権 | Structure and method of construction 構造・工法 | | Wooden 2-story (framing method) 木造2階建(軸組工法) | Use district 用途地域 | | One low-rise 1種低層 | Other limitations その他制限事項 | | Regulations have by the Landscape Act, Height district, Quasi-fire zones, Shade limit Yes 景観法による規制有、高度地区、準防火地域、日影制限有 | Overview and notices その他概要・特記事項 | | Contact: Watanabe Nobuhiro, Facilities: Public Water Supply, This sewage, City gas, Parking: car space 担当者:渡邉 伸弘、設備:公営水道、本下水、都市ガス、駐車場:カースペース | Company profile 会社概要 | | <Mediation> Governor of Tokyo (3) No. 081033 (Corporation) All Japan Real Estate Association (Corporation) metropolitan area real estate Fair Trade Council member fit House Twenty One (Ltd.) Yubinbango176-0023 Nerima-ku, Tokyo Nakamurakita 4-5-13 Aiwabiru third floor <仲介>東京都知事(3)第081033号(公社)全日本不動産協会会員 (公社)首都圏不動産公正取引協議会加盟フィットハウストゥエンティーワン(株)〒176-0023 東京都練馬区中村北4-5-13 アイワビル3階 |
Local appearance photo現地外観写真  Local (12 May 2013) Shooting, So we have the building completed you can visit at any time.
現地(2013年12月)撮影、建物完成しておりますのでいつでも見学できます。
Livingリビング  Indoor (12 May 2013) the arrangement of shooting windows and contrarian, It light is directed at the small place, such as folding on the ceiling.
室内(2013年12月)撮影窓の配置や逆張り、折上天井など細かいところでの演出が光ります。
Kitchenキッチン  Indoor (12 May 2013) Shooting Dishwasher, Flat ventilation fan, Also in the kitchen space by eliminating a hanging cupboard and came in daylight from the south side of the living room.
室内(2013年12月)撮影 食器洗浄機、フラット換気扇、吊戸棚を無くしてキッチンスペースにも南側のリビングからの採光が入ってきます。
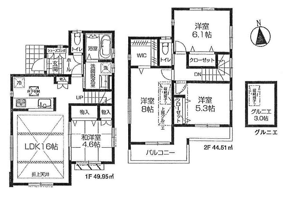
Floor plan間取り図  54,800,000 yen, 4LDK, Land area 100 sq m , Building area 94.46 sq m
5480万円、4LDK、土地面積100m2、建物面積94.46m2
Bathroom浴室  Indoor (12 May 2013) Shooting It produces a calm atmosphere to Hitotsubo type of large tub with a combination of white and Wood.
室内(2013年12月)撮影 一坪タイプの大きめの浴槽に白とウッド調の組み合わせで落ち着いた雰囲気を演出しています。
Receipt収納  Indoor (12 May 2013) Shooting
室内(2013年12月)撮影
Location
|