New Homes » Kanto » Tokyo » Nerima
 
| | Nerima-ku, Tokyo 東京都練馬区 |
| Seibu Ikebukuro Line "Oizumigakuen" bus 14 minutes Ōizumigakuenchō 4-chome, walk 4 minutes 西武池袋線「大泉学園」バス14分大泉学園町4丁目歩4分 |
| ☆ Characteristic ☆ LDK15 tatami mats or more, All room storage, Face-to-face kitchen, Underfloor Storage, Bathroom Dryer, Washbasin with showerese-style room, Video is being published with a double-layer glass voice! By all means please see! ☆特徴☆LDK15畳以上、全居室収納、対面式キッチン、床下収納、浴室乾燥機、シャワー付洗面台、和室、複層ガラス音声付動画掲載中です!ぜひご覧ください! |
Features pickup 特徴ピックアップ | | Bathroom Dryer / All room storage / LDK15 tatami mats or more / Japanese-style room / Washbasin with shower / Face-to-face kitchen / Toilet 2 places / 2-story / Double-glazing / Warm water washing toilet seat / Underfloor Storage / TV monitor interphone 浴室乾燥機 /全居室収納 /LDK15畳以上 /和室 /シャワー付洗面台 /対面式キッチン /トイレ2ヶ所 /2階建 /複層ガラス /温水洗浄便座 /床下収納 /TVモニタ付インターホン | Price 価格 | | 36,800,000 yen 3680万円 | Floor plan 間取り | | 4LDK 4LDK | Units sold 販売戸数 | | 1 units 1戸 | Total units 総戸数 | | 1 units 1戸 | Land area 土地面積 | | 100.39 sq m 100.39m2 | Building area 建物面積 | | 89.53 sq m 89.53m2 | Driveway burden-road 私道負担・道路 | | 4 sq m , West 4m width 4m2、西4m幅 | Completion date 完成時期(築年月) | | July 2013 2013年7月 | Address 住所 | | Nerima-ku, Tokyo Ōizumigakuenchō 4 東京都練馬区大泉学園町4 | Traffic 交通 | | Seibu Ikebukuro Line "Oizumigakuen" bus 14 minutes Ōizumigakuenchō 4-chome, walk 4 minutes Tobu Tojo Line "Wako" walk 40 minutes 西武池袋線「大泉学園」バス14分大泉学園町4丁目歩4分 東武東上線「和光市」歩40分
| Person in charge 担当者より | | Person in charge of real-estate and building FP Yoto Masato Age: 30 Daigyokai Experience: 7 years "for the sake of customers" is my standard of behavior. Price near Super, Such as school spirit characteristic of the school, Raised examined many in one, We aim for people to be trusted. It is said to want to buy from Yoto's is now a lot recently thanks to you! 担当者宅建FP世戸誠人年齢:30代業界経験:7年「お客様のために」が私の行動基準です。近くのスーパーの価格、学校の校風特徴など、一つでも多く調べ上げ、信頼される人を目指しています。おかげさまで世戸さんから買いたいと言われることが最近多くなりました! | Contact お問い合せ先 | | TEL: 0800-601-5169 [Toll free] mobile phone ・ Also available from PHS Caller ID is not notified Please contact the "saw SUUMO (Sumo)" If it does not lead, If the real estate company TEL:0800-601-5169【通話料無料】携帯電話・PHSからもご利用いただけます 発信者番号は通知されません 「SUUMO(スーモ)を見た」と問い合わせください つながらない方、不動産会社の方は
| Building coverage, floor area ratio 建ぺい率・容積率 | | Fifty percent ・ Hundred percent 50%・100% | Time residents 入居時期 | | Consultation 相談 | Land of the right form 土地の権利形態 | | Ownership 所有権 | Structure and method of construction 構造・工法 | | Wooden 2-story 木造2階建 | Use district 用途地域 | | One low-rise 1種低層 | Other limitations その他制限事項 | | Quasi-fire zones 準防火地域 | Overview and notices その他概要・特記事項 | | Contact: Yoto Masato, Parking: car space 担当者:世戸誠人、駐車場:カースペース | Company profile 会社概要 | | <Mediation> Governor of Tokyo (1) the first 090,418 No. SUMICOM (Ltd.) Centurion Yubinbango151-0063 Shibuya-ku, Tokyo Tomigaya 2-14-5 Premiere first floor <仲介>東京都知事(1)第090418号SUMICOM(株)センチュリオン〒151-0063 東京都渋谷区富ヶ谷2-14-5 プルミエール1階 |
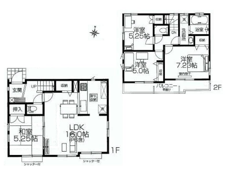
Floor plan間取り図  36,800,000 yen, 4LDK, Land area 100.39 sq m , Building area 89.53 sq m
3680万円、4LDK、土地面積100.39m2、建物面積89.53m2
Local appearance photo現地外観写真  Local (12 May 2013) Shooting
現地(2013年12月)撮影
Parking lot駐車場  Local (12 May 2013) Shooting
現地(2013年12月)撮影
Livingリビング  Indoor (12 May 2013) Shooting
室内(2013年12月)撮影
Bathroom浴室  Indoor (12 May 2013) Shooting
室内(2013年12月)撮影
Kitchenキッチン  Indoor (12 May 2013) Shooting
室内(2013年12月)撮影
Non-living roomリビング以外の居室  Indoor (12 May 2013) Shooting
室内(2013年12月)撮影
Entrance玄関  Local (12 May 2013) Shooting
現地(2013年12月)撮影
Wash basin, toilet洗面台・洗面所  Indoor (12 May 2013) Shooting
室内(2013年12月)撮影
Toiletトイレ  Indoor (12 May 2013) Shooting
室内(2013年12月)撮影
View photos from the dwelling unit住戸からの眺望写真  View from the site (December 2013) Shooting
現地からの眺望(2013年12月)撮影
Livingリビング  Indoor (12 May 2013) Shooting
室内(2013年12月)撮影
Non-living roomリビング以外の居室  Indoor (12 May 2013) Shooting
室内(2013年12月)撮影
Livingリビング  Indoor (12 May 2013) Shooting
室内(2013年12月)撮影
Non-living roomリビング以外の居室  Indoor (12 May 2013) Shooting
室内(2013年12月)撮影
 Indoor (12 May 2013) Shooting
室内(2013年12月)撮影
 Indoor (12 May 2013) Shooting
室内(2013年12月)撮影
 Indoor (12 May 2013) Shooting
室内(2013年12月)撮影
 Indoor (12 May 2013) Shooting
室内(2013年12月)撮影
Location
|