New Homes » Kanto » Tokyo » Nishitama


Tokyo Nishitama Hinode-cho
JR Itsukaichi "Musashi Masuko" walk 14 minutes
Floor heating Car space with Two There is attic storage All flooring Toilet 2 places A quiet residential area
Features pickup
Parking two Allowed / All room storage / A quiet residential area / Face-to-face kitchen / Toilet 2 places / 2-story / The window in the bathroom / All rooms are two-sided lighting / Attic storage / Floor heating
Price
23.8 million yen
Floor plan
3LDK
Units sold
1 units
Total units
1 units
Land area
90.74 sq m (registration)
Building area
71.89 sq m (registration)
Driveway burden-road
Nothing, North 4m width
Completion date
February 2014
Address
Tokyo Nishitama Hinode-cho Oaza Hirai
Traffic
JR Itsukaichi "Musashi Masuko" walk 14 minutes
JR Itsukaichi "Musashi Hikita" walk 21 minutes
JR Itsukaichi "Akikawa" walk 43 minutes
Person in charge
Person in charge of real-estate and building Maeda Keiichi Age: 30 Daigyokai Experience: 10 years my business style is that it tell you both the property of the advantages and disadvantages to the customer. I want want to be happy to advice from the customers' point of view.
Contact
TEL: 0800-603-1036 [Toll free] mobile phone ・ Also available from PHS
Caller ID is not notified
Please contact the "saw SUUMO (Sumo)"
If it does not lead, If the real estate company
Building coverage, floor area ratio
40% ・ 80%
Time residents
Consultation
Land of the right form
Ownership
Structure and method of construction
Wooden 2-story
Use district
One low-rise
Other limitations
Irregular land, Irregular land
Overview and notices
Contact: Maeda Keiichi, Facilities: Public Water Supply, This sewage, Building confirmation number: 25 Taken Kenzo Kendai 1137 No., Parking: car space
Company profile
<Mediation> Governor of Tokyo (7) No. 047202 (Corporation) Tokyo Metropolitan Government Building Lots and Buildings Transaction Business Association (Corporation) metropolitan area real estate Fair Trade Council member (Ltd.) Yamaichi Home Hamura head office Yubinbango205-0003 Tokyo Hamura Midorigaoka 1-23-9


Local appearance photo
Local appearance photo

Local photos, including front road
Local photos, including front road

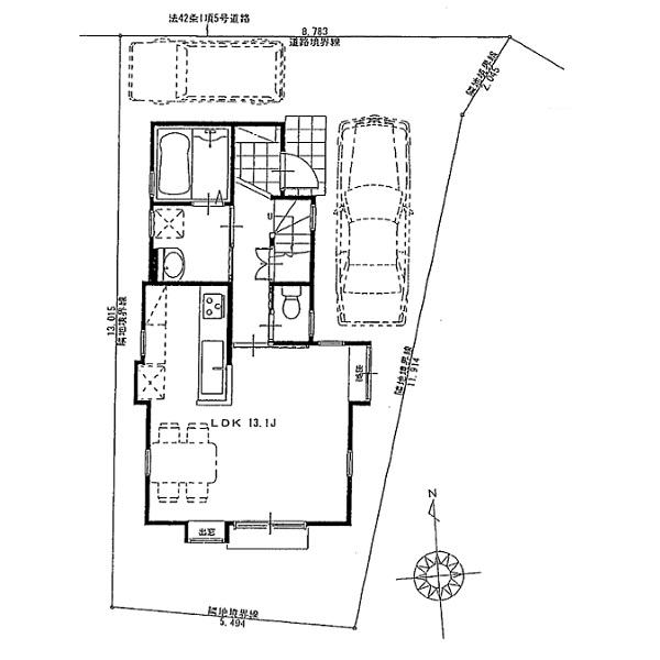
Floor plan

Floor plan. 23.8 million yen, 3LDK, Land area 90.74 sq m , Building area 71.89 sq m
23.8 million yen, 3LDK, Land area 90.74 sq m , Building area 71.89 sq m

Shopping centre

Shopping centre. Kutsushitaya 1851m to Aeon Mall sunrise
Kutsushitaya 1851m to Aeon Mall sunrise

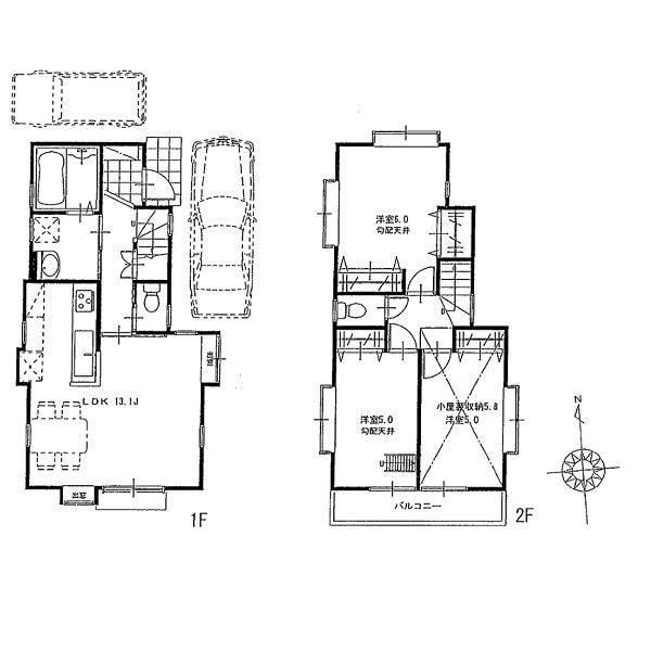
Compartment figure

Compartment figure. 23.8 million yen, 3LDK, Land area 90.74 sq m , Building area 71.89 sq m
23.8 million yen, 3LDK, Land area 90.74 sq m , Building area 71.89 sq m



Location