New Homes » Kanto » Tokyo » Nishitokyo
 
| | Tokyo Nishitokyo 東京都西東京市 |
| JR Chuo Line "Mitaka" walk 34 minutes JR中央線「三鷹」歩34分 |
| Now Campaign! ! For more details, the person in charge! ! 只今キャンペーン実施中!!詳しくは担当まで!! |
| Pre-ground survey, 2 along the line more accessible, Super close, It is close to the city, System kitchen, Yang per good, All room storage, A quiet residential area, 2-story, Double-glazing, Otobasu, Warm water washing toilet seat, Underfloor Storage, The window in the bathroom, TV monitor interphone, Leafy residential area, Urban neighborhood, All living room flooring, Water filter, City gas 地盤調査済、2沿線以上利用可、スーパーが近い、市街地が近い、システムキッチン、陽当り良好、全居室収納、閑静な住宅地、2階建、複層ガラス、オートバス、温水洗浄便座、床下収納、浴室に窓、TVモニタ付インターホン、緑豊かな住宅地、都市近郊、全居室フローリング、浄水器、都市ガス |
Features pickup 特徴ピックアップ | | Pre-ground survey / 2 along the line more accessible / Super close / It is close to the city / System kitchen / Yang per good / All room storage / A quiet residential area / 2-story / Double-glazing / Otobasu / Warm water washing toilet seat / Underfloor Storage / The window in the bathroom / TV monitor interphone / Leafy residential area / Urban neighborhood / All living room flooring / Water filter / City gas 地盤調査済 /2沿線以上利用可 /スーパーが近い /市街地が近い /システムキッチン /陽当り良好 /全居室収納 /閑静な住宅地 /2階建 /複層ガラス /オートバス /温水洗浄便座 /床下収納 /浴室に窓 /TVモニタ付インターホン /緑豊かな住宅地 /都市近郊 /全居室フローリング /浄水器 /都市ガス | Price 価格 | | 33,800,000 yen ~ 36,800,000 yen 3380万円 ~ 3680万円 | Floor plan 間取り | | 3LDK 3LDK | Units sold 販売戸数 | | 2 units 2戸 | Total units 総戸数 | | 3 units 3戸 | Land area 土地面積 | | 63 sq m ~ 68.9 sq m 63m2 ~ 68.9m2 | Building area 建物面積 | | 57.81 sq m ~ 61.76 sq m 57.81m2 ~ 61.76m2 | Driveway burden-road 私道負担・道路 | | East about 4.0m on public roads 東側約4.0m公道 | Completion date 完成時期(築年月) | | 2014 end of January schedule 2014年1月末予定 | Address 住所 | | Tokyo Nishitokyo Higashifushimi 4 東京都西東京市東伏見4 | Traffic 交通 | | JR Chuo Line "Mitaka" walk 34 minutes Seibu Shinjuku Line "Higashifushimi" walk 11 minutes Seibu Shinjuku Line "Musashi institutions" walk 20 minutes JR中央線「三鷹」歩34分 西武新宿線「東伏見」歩11分 西武新宿線「武蔵関」歩20分
| Related links 関連リンク | | [Related Sites of this company] 【この会社の関連サイト】 | Person in charge 担当者より | | Person in charge of real-estate and building Ando Ryota Age: 20 Daigyokai experience: to be able to tell three years early the new property information to everyone, We are focusing on the day-to-day information collection. Locate sure to house the customer satisfactory! ! 担当者宅建安藤 亮太年齢:20代業界経験:3年新しい物件情報を皆様にいち早くお伝え出来るように、日々情報収集に力を入れています。お客様が満足のいくお家を必ず見つけます!! | Contact お問い合せ先 | | TEL: 0800-603-9011 [Toll free] mobile phone ・ Also available from PHS Caller ID is not notified Please contact the "saw SUUMO (Sumo)" If it does not lead, If the real estate company TEL:0800-603-9011【通話料無料】携帯電話・PHSからもご利用いただけます 発信者番号は通知されません 「SUUMO(スーモ)を見た」と問い合わせください つながらない方、不動産会社の方は
| Building coverage, floor area ratio 建ぺい率・容積率 | | Kenpei rate: 50 ・ 60%, Volume rate: 100 ・ 200% 建ペい率:50・60%、容積率:100・200% | Time residents 入居時期 | | Consultation 相談 | Land of the right form 土地の権利形態 | | Ownership 所有権 | Structure and method of construction 構造・工法 | | Wooden 2-story 木造2階建 | Use district 用途地域 | | One low-rise, Two dwellings 1種低層、2種住居 | Land category 地目 | | Residential land 宅地 | Other limitations その他制限事項 | | Height district, Quasi-fire zones 高度地区、準防火地域 | Overview and notices その他概要・特記事項 | | Contact: Ando Ryota, Building confirmation number: No. 13UDI3T Ken 01789 担当者:安藤 亮太、建築確認番号:第13UDI3T建01789号 | Company profile 会社概要 | | <Mediation> Governor of Tokyo (1) No. 090071 (Ltd.) housing vision Yubinbango167-0032 Suginami-ku, Tokyo Amanuma 2-3-13 Izumi Building 102, Room <仲介>東京都知事(1)第090071号(株)ハウジングビジョン〒167-0032 東京都杉並区天沼2-3-13 泉ビル102号室 |
 Same specifications photos (appearance)
同仕様写真(外観)
 Same specifications photos (living)
同仕様写真(リビング)
 Same specifications photo (kitchen)
同仕様写真(キッチン)
Floor plan間取り図  (B Building), Price 36,800,000 yen, 3LDK, Land area 63 sq m , Building area 61.76 sq m
(B号棟)、価格3680万円、3LDK、土地面積63m2、建物面積61.76m2
 Same specifications photo (bathroom)
同仕様写真(浴室)
 The entire compartment Figure
全体区画図
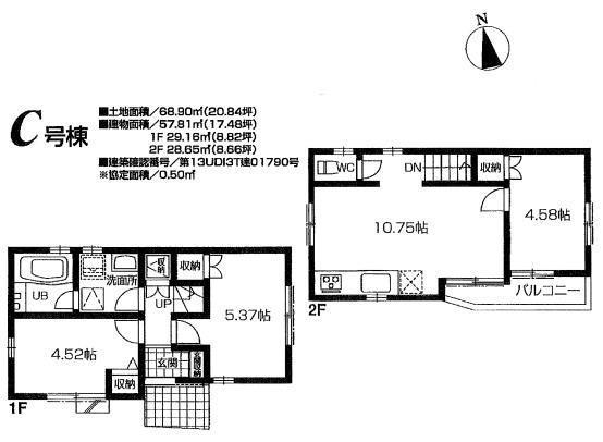
 (C Building), Price 33,800,000 yen, 3LDK, Land area 68.9 sq m , Building area 57.81 sq m
(C号棟)、価格3380万円、3LDK、土地面積68.9m2、建物面積57.81m2
Location
|