New Homes » Kanto » Tokyo » Nishitokyo
 
| | Tokyo Nishitokyo 東京都西東京市 |
| Seibu Ikebukuro Line "Hoya" walk 12 minutes 西武池袋線「保谷」歩12分 |
| Seller ・ Living floor heating, High ceiling ・ Loft with 2 places ・ Province road surface ・ Urban modern housing 売主・リビング床暖房、ハイ天井・ロフト2ヶ所付・南道路面・都市型モダン住宅 |
Features pickup 特徴ピックアップ | | Corresponding to the flat-35S / Airtight high insulated houses / Pre-ground survey / Year Available / LDK18 tatami mats or more / Facing south / System kitchen / Bathroom Dryer / Yang per good / A quiet residential area / Around traffic fewer / Washbasin with shower / Face-to-face kitchen / Toilet 2 places / Bathroom 1 tsubo or more / 2-story / Zenshitsuminami direction / Warm water washing toilet seat / loft / Underfloor Storage / The window in the bathroom / TV monitor interphone / Dish washing dryer / Walk-in closet / Water filter / Living stairs / City gas / Floor heating フラット35Sに対応 /高気密高断熱住宅 /地盤調査済 /年内入居可 /LDK18畳以上 /南向き /システムキッチン /浴室乾燥機 /陽当り良好 /閑静な住宅地 /周辺交通量少なめ /シャワー付洗面台 /対面式キッチン /トイレ2ヶ所 /浴室1坪以上 /2階建 /全室南向き /温水洗浄便座 /ロフト /床下収納 /浴室に窓 /TVモニタ付インターホン /食器洗乾燥機 /ウォークインクロゼット /浄水器 /リビング階段 /都市ガス /床暖房 | Price 価格 | | 43,800,000 yen 4380万円 | Floor plan 間取り | | 3LDK 3LDK | Units sold 販売戸数 | | 1 units 1戸 | Total units 総戸数 | | 1 units 1戸 | Land area 土地面積 | | 108.67 sq m (32.87 tsubo) (Registration) 108.67m2(32.87坪)(登記) | Building area 建物面積 | | 86.66 sq m (26.21 tsubo) (Registration) 86.66m2(26.21坪)(登記) | Driveway burden-road 私道負担・道路 | | 22.23 sq m , South 4m width 22.23m2、南4m幅 | Completion date 完成時期(築年月) | | November 2013 2013年11月 | Address 住所 | | Tokyo Nishitokyo Kitamachi 5 東京都西東京市北町5 | Traffic 交通 | | Seibu Ikebukuro Line "Hoya" walk 12 minutes Seibu Ikebukuro Line "Hibarigaoka" walk 22 minutes Seibu Ikebukuro Line "Higashi Kurume" walk 38 minutes 西武池袋線「保谷」歩12分 西武池袋線「ひばりヶ丘」歩22分 西武池袋線「東久留米」歩38分
| Person in charge 担当者より | | Person in charge of real-estate and building Ichihara Jun Age: 30 Daigyokai Experience: 8 years [Sales manager] Is the highest shopping in a lifetime because home purchase. Questions and anxiety part also will be many there. At that time, Please feel free to contact us! We will carefully explain clarity from scratch. 担当者宅建市原 淳年齢:30代業界経験:8年【営業課長】住宅購入というのは一生で一番高い買い物です。疑問点や不安な部分も多々ある事でしょう。その時は、お気軽にご相談ください!一からわかりやすく丁寧にご説明させていただきます。 | Contact お問い合せ先 | | TEL: 0800-602-5712 [Toll free] mobile phone ・ Also available from PHS Caller ID is not notified Please contact the "saw SUUMO (Sumo)" If it does not lead, If the real estate company TEL:0800-602-5712【通話料無料】携帯電話・PHSからもご利用いただけます 発信者番号は通知されません 「SUUMO(スーモ)を見た」と問い合わせください つながらない方、不動産会社の方は
| Building coverage, floor area ratio 建ぺい率・容積率 | | 40% ・ 80% 40%・80% | Time residents 入居時期 | | January 2014 2014年1月 | Land of the right form 土地の権利形態 | | Ownership 所有権 | Structure and method of construction 構造・工法 | | Wooden 2-story 木造2階建 | Use district 用途地域 | | One low-rise 1種低層 | Overview and notices その他概要・特記事項 | | Contact: Ichihara Atsushi, Facilities: Public Water Supply, This sewage, City gas, Building confirmation number: SJK-KX1313030084, Parking: car space 担当者:市原 淳、設備:公営水道、本下水、都市ガス、建築確認番号:SJK-KX1313030084、駐車場:カースペース | Company profile 会社概要 | | <Seller> Saitama Governor (1) No. 022059 (Ltd.) My Town Seibu Yubinbango352-0035 Saitama Prefecture Niiza Kurihara 5-6-24 <売主>埼玉県知事(1)第022059号(株)マイタウン西武〒352-0035 埼玉県新座市栗原5-6-24 |
Local appearance photo現地外観写真  Leafy quiet residential area
緑豊かな閑静な住宅街
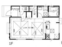
Floor plan間取り図  43,800,000 yen, 3LDK, Land area 108.67 sq m , Building area 86.66 sq m
4380万円、3LDK、土地面積108.67m2、建物面積86.66m2
Local photos, including front road前面道路含む現地写真  Living environment is good
住環境良好です
Livingリビング  It keeps the wax per non-wax flooring. Joinery (door) of the higher specification of the mirror surface material!
ノンワックスフローリングにつきワックスいらずです。建具(ドア)は鏡面材の高級仕様!
Bathroom浴室  Bathroom with a feeling of luxury bathroom dryer
高級感のある浴室乾燥機付バスルーム
Kitchenキッチン  Dish washing dryer with system Kitchen. Underfloor Storage, Marble flooring adopt that feeling of luxury.
食器洗乾燥機付システムキッチン。床下収納、高級感のある大理石調フローリング採用。
Non-living roomリビング以外の居室  Room is high heat shielding Low-e glass specification. Also it will increase heating and cooling efficiency
居室は遮熱性の高いLow-eガラス仕様。冷暖房効率も上がります
Entrance玄関  Marble entrance hall with a feeling of luxury
高級感のある大理石調玄関ホール
Wash basin, toilet洗面台・洗面所  Vanity is vanity with happy to wife three-sided mirror. Fishing cupboard is a storage capacity pat so also with.
奥様に嬉しい三面鏡付洗面化粧台です。つり戸棚もついているので収納力バッチリです。
Receipt収納  Walk-in closet with a storage capacity pat
収納力バッチリのウォークインクローゼット付
Toiletトイレ  Comfortable with warm water washing toilet seat
快適な温水洗浄便座付
Drug storeドラッグストア  Seimusu up to 400m
セイムスまで400m
Otherその他  Rendering Perth Urban Modan'eko housing
完成予想パース 都市型モダンエコ住宅
Livingリビング  LD has a feeling of opening has been 200mm ceiling higher than normal established a ceiling on cosmetic beams
LDは天井に化粧梁を設置し通常より200mm天井高くしており開放感があります
Receipt収納  Glad housed plenty of loft for children
お子様に嬉しい収納たっぷりのロフト付
Kindergarten ・ Nursery幼稚園・保育園  Cock Robin 350m to nursery school
こまどり保育園まで350m
Otherその他  Spacious and bright 2 Kairoka
広々と明るい2階廊下
Junior high school中学校  Nishitokyo 700m to stand mountain air junior high school
西東京市立青嵐中学校まで700m
Primary school小学校  Nishi Municipal Hoya 630m until the first elementary school
西東京市立保谷第一小学校まで630m
Convenience storeコンビニ  Seven-Eleven Shimohoya up to 3-chome 675m
セブンイレブン下保谷3丁目まで675m
Hospital病院  Hoya to Welfare Hospital 880m
保谷厚生病院まで880m
Location
|