New Homes » Kanto » Tokyo » Nishitokyo


Tokyo Nishitokyo
Seibu Shinjuku Line "Tanashi" walk 6 minutes
Price
39,800,000 yen
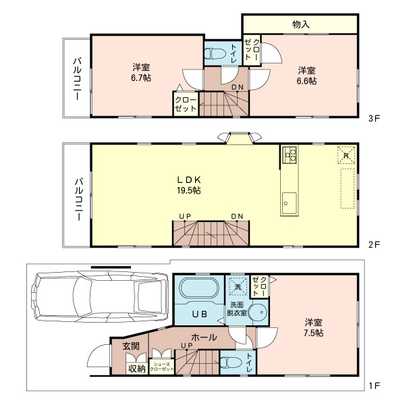
Floor plan
3LDK
Units sold
1 units
Land area
56.93 sq m (registration)
Building area
91.02 sq m (registration)
Driveway burden-road
Nothing, West 5.4m width (contact the road width 4.6m), South 4m width
Completion date
December 2013
Address
Tokyo Nishitokyo Tanashi-cho 5
Traffic
Seibu Shinjuku Line "Tanashi" walk 6 minutes
Person in charge
Rep Kugimiya Zhi light
Contact
Sekiwa Real Estate Co., Ltd. Mitaka office TEL: 0422-54-6731 Please inquire as "saw SUUMO (Sumo)"
Building coverage, floor area ratio
60% ・ 200%
Land of the right form
Ownership
Structure and method of construction
Wooden three-story
Use district
One dwelling
Other limitations
Seibu Shinjuku Line express station "Tanashi" station walk 6 minutes flat 35S Available. LD floor heating, Dishwasher system Kitchen, Monitor with intercom
Overview and notices
Contact: Kugimiya Zhi light, Parking: car space
Company profile
<Mediation> Minister of Land, Infrastructure and Transport (11) No. 002250 (one company) Real Estate Association (Corporation) metropolitan area real estate Fair Trade Council member Sekiwa Real Estate Co., Ltd. Mitaka office Yubinbango180-0006 Musashino-shi, Tokyo Nakamachi 1-4-4


Local appearance photo
Local appearance photo

Floor plan
Floor plan



Location