New Homes » Kanto » Tokyo » Nishitokyo


Tokyo Nishitokyo
Seibu Shinjuku Line "Tanashi" walk 13 minutes
●● Thank you for waiting great value! ! ●● ~ The first phase of 8 compartment, Sales start from finally February ~ ・ ・ ・ Model room is scheduled for completion in late January ・ ・ ・
Commitment its inception in 45 years "Misawa Homes of custom home" "linkage Court Tanashi" Our oasis city development concept is fittingly "the most comfortable place for a married couple (= Oasis)". work ・ Housework ・ Three "life a busy husband and wife in child-rearing ・ style ・ We support the concept. ". ● be right in front of the ion Town ● paste pure white outer wall over the entire surface tile ● all building building area 100 sq m and more ● all completely different floor plans ● building structure 30 years + α guarantee ● seismic grade "3" acquisition! Ya uniform building plan, Not be satisfied with just another spray outer wall ・ ・ ・ This urban development to meet the expectations of such generation.
Local guide map
Local guide map
Features pickup
Construction housing performance with evaluation / Design house performance with evaluation / Measures to conserve energy / Long-term high-quality housing / Corresponding to the flat-35S / Airtight high insulated houses / Pre-ground survey / Vibration Control ・ Seismic isolation ・ Earthquake resistant / Seismic fit / Parking two Allowed / 2 along the line more accessible / LDK18 tatami mats or more / Fiscal year Available / Energy-saving water heaters / Super close / It is close to the city / Facing south / System kitchen / Bathroom Dryer / Yang per good / All room storage / Flat to the station / Siemens south road / Or more before road 6m / Corner lot / Starting station / Shaping land / garden / Face-to-face kitchen / Security enhancement / Wide balcony / 3 face lighting / Barrier-free / Bathroom 1 tsubo or more / 2-story / 2 or more sides balcony / South balcony / Double-glazing / Underfloor Storage / TV monitor interphone / Mu front building / All living room flooring / Wood deck / Dish washing dryer / Walk-in closet / City gas / Maintained sidewalk / roof balcony / Flat terrain / Attic storage / Floor heating / Development subdivision in / terrace
Property name
Misawa Homes Linkage Court Tanashi All 14 buildings / Notice advertising
Price
Undecided
Floor plan
4LDK
Units sold
Undecided
Total units
14 units
Land area
100 sq m ~ 120.13 sq m
Building area
100.19 sq m ~ 102.88 sq m (measured)
Driveway burden-road
Road width: 4.5m ~ 10m, Asphaltic pavement, Partly, Eco water retention is the effect of lowering the high road surface temperature ・ It laid the bricks on the road.
Completion date
February 2014 late schedule
Address
Tokyo Nishitokyo Shibakubo-cho, in the 1-12-1
Traffic
Seibu Shinjuku Line "Tanashi" walk 13 minutes
JR Chuo Line "Higashikoganei" walk 36 minutes
Seibu Shinjuku Line "Hanakoganei" walk 22 minutes
Related links
[Related Sites of this company]
Person in charge
Rep Kitamura ・ Kato ・ Kinoshita
Contact
Misawa Homes Tokyo Real Estate section TEL: 0120-610-330 [Toll free] (mobile phone ・ Also available from PHS. ) Please contact the "saw SUUMO (Sumo)"
Sale schedule
Sales start from late February ※ price ・ Units sold is undecided. ※ Acts that lead to secure the contract or reservation of the application and the application order to sale can not be absolutely. ※ March plans to sell 26 years in early February.
Building coverage, floor area ratio
Kenpei rate: 60%, Volume ratio: 200%
Time residents
1 month after the contract
Land of the right form
Ownership
Structure and method of construction
Misawa Homes wood panel construction
Construction
Member supply: Misawa Homes Co., Ltd. Construction: Misawa Homes Co., Ltd. Tokyo
Use district
Semi-industrial
Overview and notices
Person in charge: Kitamura ・ Kato ・ Kinoshita, Building confirmation number: the H25 building confirmation KBI 04914 No. other
Company profile
<Seller> Minister of Land, Infrastructure and Transport (2) No. 007,576 (one company) Real Estate Association Misawa Homes Co., Ltd. 160-0023 Tokyo Nishi-Shinjuku, Shinjuku-ku, 2-4-1 Shinjuku NS Building


Cityscape Rendering

Cityscape Rendering. Paste the entire surface pure white tile. It has the ability to remove the dirt on their own in the light catalyst for this tile. You can also remove the nitrogen oxides in the atmosphere. Perfect for those who tired of blowing outer wall ready-built!
Paste the entire surface pure white tile. It has the ability to remove the dirt on their own in the light catalyst for this tile. You can also remove the nitrogen oxides in the atmosphere. Perfect for those who tired of blowing outer wall ready-built!

Rendering (appearance)

Rendering (appearance). Roads and green space and garden ・ With lots and are brick, such as in a parking lot. This special bricks there is water retention effect, The road surface temperature has the effect of lower than 15 degrees. Adoption is the first time this subdivision in Japan of public roads!
Roads and green space and garden ・ With lots and are brick, such as in a parking lot. This special bricks there is water retention effect, The road surface temperature has the effect of lower than 15 degrees. Adoption is the first time this subdivision in Japan of public roads!

The entire compartment Figure

The entire compartment Figure. Roads and green space and garden ・ With lots and are brick, such as in a parking lot. This special bricks there is water retention effect, The road surface temperature has the effect of lower than 15 degrees. Adoption is the first time this subdivision in Japan of public roads!
Roads and green space and garden ・ With lots and are brick, such as in a parking lot. This special bricks there is water retention effect, The road surface temperature has the effect of lower than 15 degrees. Adoption is the first time this subdivision in Japan of public roads!

Rendering (appearance)

Rendering (appearance). Paste the entire surface pure white tile. This tile has the ability to remove the dirt on their own in the photocatalyst, There is also a removal capability of the nitrogen oxide in the atmosphere. Perfect for those who can not satisfied with the uniform design and blowing outer wall
Paste the entire surface pure white tile. This tile has the ability to remove the dirt on their own in the photocatalyst, There is also a removal capability of the nitrogen oxide in the atmosphere. Perfect for those who can not satisfied with the uniform design and blowing outer wall

Other

Other. Set up a lifestyle concept (1) ● minilab that allows also home work of work ● women in your Uchi to all building. Also Hakadori a little work while watching the while and children's homework housework in LDK.
Set up a lifestyle concept (1) ● minilab that allows also home work of work ● women in your Uchi to all building. Also Hakadori a little work while watching the while and children's homework housework in LDK.

Other. Lifestyle concept (2) ● Two of fun ● weekend want to send and fulfilling life Omoikkiri! There is a perfect plan in such a married couple. Road bike, Cooking classes, Cram school, Astronomical observation, It is recommended, such as love person photo
Lifestyle concept (2) ● Two of fun ● weekend want to send and fulfilling life Omoikkiri! There is a perfect plan in such a married couple. Road bike, Cooking classes, Cram school, Astronomical observation, It is recommended, such as love person photo

Other. Lifestyle Concept (3) ● men also complained the second largest to housework participation ● wife of her husband, "that you do not help out at all the housework.". But can not quite ・  ・  ・ It is the perfect plan for anyone who wants! There everywhere ingenuity that can help do the housework naturally.
Lifestyle Concept (3) ● men also complained the second largest to housework participation ● wife of her husband, "that you do not help out at all the housework.". But can not quite ・ ・ ・ It is the perfect plan for anyone who wants! There everywhere ingenuity that can help do the housework naturally.

Local photos, including front road

Local photos, including front road. ● Green Oasis ● Shibakubo chome in the "linkage Court Tanashi" "peace green". Misawa exterior was designed, Is a pocket park of eco material packed.
● Green Oasis ● Shibakubo chome in the "linkage Court Tanashi" "peace green". Misawa exterior was designed, Is a pocket park of eco material packed.

Other

Other. ● breadth of Oasis ● washroom to washroom is intact, Adopted what vanity counter is wide type. Your skin care Ya, You can take advantage of as a healing field of home steam Este.
● breadth of Oasis ● washroom to washroom is intact, Adopted what vanity counter is wide type. Your skin care Ya, You can take advantage of as a healing field of home steam Este.

Other. ● trees watered oasis ● automatic irrigation (Kansui) adopted a system. Rest assured us to watering on a regular basis automatically garden. Hot summer also cool, It will be moisture full house.
● trees watered oasis ● automatic irrigation (Kansui) adopted a system. Rest assured us to watering on a regular basis automatically garden. Hot summer also cool, It will be moisture full house.

Other. ● oasis in the forces of nature ● Misawa Homes design concept of, Adopt a "micro-climate design". Taking advantage of the power of nature, Cool summer, Ingenuity of winter warm house building has been incorporated.
● oasis in the forces of nature ● Misawa Homes design concept of, Adopt a "micro-climate design". Taking advantage of the power of nature, Cool summer, Ingenuity of winter warm house building has been incorporated.

Rendering (introspection)

Rendering (introspection). ● become 4 Building ● sports bar home! kitchen ・ dining ・ You can see a large TV even living from anywhere!
● become 4 Building ● sports bar home! kitchen ・ dining ・ You can see a large TV even living from anywhere!

Rendering (introspection). ● 5 Building ● LDK There is a dirt floor room for a hobby! Or place a road bike, You can enjoy the oil painting.
● 5 Building ● LDK There is a dirt floor room for a hobby! Or place a road bike, You can enjoy the oil painting.

Rendering (introspection). ● 6 Building ● corridor of memories gallery of the journey home! Let's overhang the family of memorabilia on the second floor of the corridor of the wall!
● 6 Building ● corridor of memories gallery of the journey home! Let's overhang the family of memorabilia on the second floor of the corridor of the wall!

Rendering (introspection). ● 7 Building ● here pet symbiosis plan! Pet shower Ya at the door, There are Oh 5 Ru room of the dirt floor of the foyer directly connected.
● 7 Building ● here pet symbiosis plan! Pet shower Ya at the door, There are Oh 5 Ru room of the dirt floor of the foyer directly connected.

Rendering (introspection). ● 1 Building ● will also be bright with light coming through the patio dark tend entrance and hallway!
● 1 Building ● will also be bright with light coming through the patio dark tend entrance and hallway!

Rendering (introspection). ● 10 Building ● wide sash of 2.6m width is plenty incorporating the sunlight from the south road.
● 10 Building ● wide sash of 2.6m width is plenty incorporating the sunlight from the south road.

Rendering (introspection). ● 11 Building ● southwest corner lot location. Chic interior colors makes an air of style.
● 11 Building ● southwest corner lot location. Chic interior colors makes an air of style.

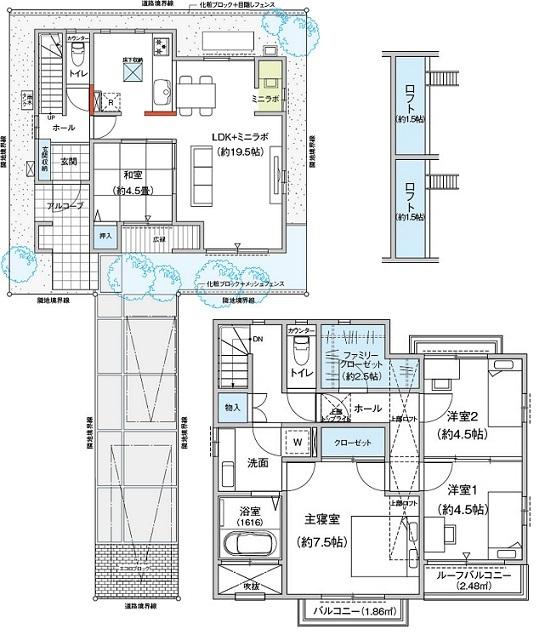
Floor plan

Floor plan. Paste the entire surface pure white tile. It has the ability to remove the dirt on their own in the light catalyst for this tile. You can also remove the nitrogen oxides in the atmosphere. Perfect for those who tired of blowing outer wall ready-built!
Paste the entire surface pure white tile. It has the ability to remove the dirt on their own in the light catalyst for this tile. You can also remove the nitrogen oxides in the atmosphere. Perfect for those who tired of blowing outer wall ready-built!

Floor plan. Paste the entire surface pure white tile. It has the ability to remove the dirt on their own in the light catalyst for this tile. You can also remove the nitrogen oxides in the atmosphere. Perfect for those who tired of blowing outer wall ready-built!
Paste the entire surface pure white tile. It has the ability to remove the dirt on their own in the light catalyst for this tile. You can also remove the nitrogen oxides in the atmosphere. Perfect for those who tired of blowing outer wall ready-built!

Floor plan. Paste the entire surface pure white tile. It has the ability to remove the dirt on their own in the light catalyst for this tile. You can also remove the nitrogen oxides in the atmosphere. Perfect for those who tired of blowing outer wall ready-built!
Paste the entire surface pure white tile. It has the ability to remove the dirt on their own in the light catalyst for this tile. You can also remove the nitrogen oxides in the atmosphere. Perfect for those who tired of blowing outer wall ready-built!

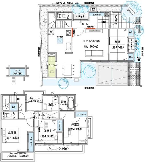
Floor plan. (8 Building), Price TBD , 4LDK, Land area 100 sq m , Building area 102.88 sq m
(8 Building), Price TBD , 4LDK, Land area 100 sq m , Building area 102.88 sq m

Floor plan. Paste the entire surface pure white tile. It has the ability to remove the dirt on their own in the light catalyst for this tile. You can also remove the nitrogen oxides in the atmosphere. Perfect for those who tired of blowing outer wall ready-built!
Paste the entire surface pure white tile. It has the ability to remove the dirt on their own in the light catalyst for this tile. You can also remove the nitrogen oxides in the atmosphere. Perfect for those who tired of blowing outer wall ready-built!

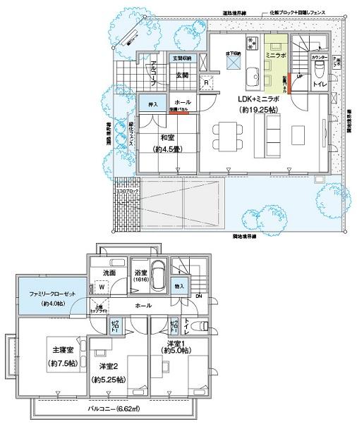
Compartment figure

Compartment figure. Paste the entire surface pure white tile. It has the ability to remove the dirt on their own in the light catalyst for this tile. You can also remove the nitrogen oxides in the atmosphere. Perfect for those who tired of blowing outer wall ready-built!
Paste the entire surface pure white tile. It has the ability to remove the dirt on their own in the light catalyst for this tile. You can also remove the nitrogen oxides in the atmosphere. Perfect for those who tired of blowing outer wall ready-built!

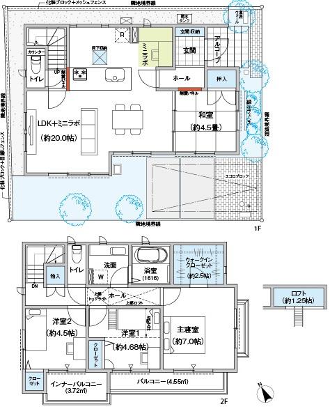
Floor plan

Floor plan. Paste the entire surface pure white tile. It has the ability to remove the dirt on their own in the light catalyst for this tile. You can also remove the nitrogen oxides in the atmosphere. Perfect for those who tired of blowing outer wall ready-built!
Paste the entire surface pure white tile. It has the ability to remove the dirt on their own in the light catalyst for this tile. You can also remove the nitrogen oxides in the atmosphere. Perfect for those who tired of blowing outer wall ready-built!

Floor plan. Paste the entire surface pure white tile. It has the ability to remove the dirt on their own in the light catalyst for this tile. You can also remove the nitrogen oxides in the atmosphere. Perfect for those who tired of blowing outer wall ready-built!
Paste the entire surface pure white tile. It has the ability to remove the dirt on their own in the light catalyst for this tile. You can also remove the nitrogen oxides in the atmosphere. Perfect for those who tired of blowing outer wall ready-built!

Shopping centre

Shopping centre. Ion Town in front of the 1m immediately eye to ion Town. Maxvalu is open until 23 pm. Other Daiso also, Laundry, Dentistry, A lot of HONEYS shops!
Ion Town in front of the 1m immediately eye to ion Town. Maxvalu is open until 23 pm. Other Daiso also, Laundry, Dentistry, A lot of HONEYS shops!

Other Environmental Photo

Other Environmental Photo. Tipness up to 1080m on weekdays is open until 23:00. Feel free to Tachiyoreru because even after work in front of the station, You spend the after-Five was fulfilling in a married couple.
Tipness up to 1080m on weekdays is open until 23:00. Feel free to Tachiyoreru because even after work in front of the station, You spend the after-Five was fulfilling in a married couple.

Hospital

Hospital. West Tokyo and philosophy 360m "mind certain medical care" to the central General Hospital, Health contributes Nishi General Hospital of the people of the region. It is priceless is a sense of security in the vicinity!
West Tokyo and philosophy 360m "mind certain medical care" to the central General Hospital, Health contributes Nishi General Hospital of the people of the region. It is priceless is a sense of security in the vicinity!

Other Equipment

Other Equipment. Passers-by the eyes of Ya if greening, Will be green curtain down to dodge the hot summer sun (adopted in the part of the Building ・ Shape is different in part)
Passers-by the eyes of Ya if greening, Will be green curtain down to dodge the hot summer sun (adopted in the part of the Building ・ Shape is different in part)

Other Equipment. It established the Misawa original mini-lab in the kitchen side, etc. of all residence. work ・ Housework ・ Child care is a busy wife a strong ally in (part of different shapes)
It established the Misawa original mini-lab in the kitchen side, etc. of all residence. work ・ Housework ・ Child care is a busy wife a strong ally in (part of different shapes)

Other Equipment. The interior doors of the LDK and the bedroom comes with that open transom. To escape the summer heat to the upper floor, "Air path design of" is has been applied heat waste from skylight.
The interior doors of the LDK and the bedroom comes with that open transom. To escape the summer heat to the upper floor, "Air path design of" is has been applied heat waste from skylight.

Local guide map

Local guide map. Express station ・ Seibu Shinjuku Line "Tanashi" a 13-minute walk from the train station in the wide and bright road is flat with no up-and-down. School safely in women ・ You can commute.
Express station ・ Seibu Shinjuku Line "Tanashi" a 13-minute walk from the train station in the wide and bright road is flat with no up-and-down. School safely in women ・ You can commute.

Local guide map. Last train Otemachi 0:25, Takadanobaba is 0:47.
Last train Otemachi 0:25, Takadanobaba is 0:47.

Access view

Access view. Car navigation system setting is "Tokyo Nishitokyo Shibakubo cho 1-12-1".
Car navigation system setting is "Tokyo Nishitokyo Shibakubo cho 1-12-1".

Present

Present. It was a blog by the town planning personnel in booklet! Heisei all 42 episodes VOL.1 from 25 October 09 to December 6 days, Easy to understand while exchanging photos and image have spelled "town development untold story.". Those who wish, On top of the stated as "VOL.1 also hope the blog this", Please to document request! It should be noted that a blog is "linkage Court Tanashi Please search in the blog "! Also rapidly followed by 43 episodes later! http: /  / linkage-court-tanashi.hatenablog.com /
It was a blog by the town planning personnel in booklet! Heisei all 42 episodes VOL.1 from 25 October 09 to December 6 days, Easy to understand while exchanging photos and image have spelled "town development untold story.". Those who wish, On top of the stated as "VOL.1 also hope the blog this", Please to document request! It should be noted that a blog is "linkage Court Tanashi Please search in the blog "! Also rapidly followed by 43 episodes later! http: / / linkage-court-tanashi.hatenablog.com /

You will receive this brochure

You will receive this brochure. This brochure will receive! JOIN NOW document request!
This brochure will receive! JOIN NOW document request!

Other Equipment

Other Equipment. Installed in place around the second floor of the highest ceiling height. There is a hot air waste heat effect in the house, Live design ingenuity has been applied cool even if there is no air conditioning in the summer.
Installed in place around the second floor of the highest ceiling height. There is a hot air waste heat effect in the house, Live design ingenuity has been applied cool even if there is no air conditioning in the summer.

Security equipment

Security equipment. The first floor is of course, Deploying the second floor of the shutter of the large window to be motorized. Recent tornado ・ It will also be wind-resistant measures. Since it is opened and closed without opening the window is useful, such as during a cold winter morning.
The first floor is of course, Deploying the second floor of the shutter of the large window to be motorized. Recent tornado ・ It will also be wind-resistant measures. Since it is opened and closed without opening the window is useful, such as during a cold winter morning.

Other Equipment

Other Equipment. Electricity you are using ・ gas ・ HEMS the amount and rates of water can be seen at a glance. Original items of Misawa Homes. Also it comes with a watch function to let you know that the family came home.
Electricity you are using ・ gas ・ HEMS the amount and rates of water can be seen at a glance. Original items of Misawa Homes. Also it comes with a watch function to let you know that the family came home.

Park

park. Koganei this vast park located along the 785m Tamagawa to the park is, It makes me feel rich natural color throughout the year, It is one of the leading attractions in Tokyo.
Koganei this vast park located along the 785m Tamagawa to the park is, It makes me feel rich natural color throughout the year, It is one of the leading attractions in Tokyo.

park. Koganei Park 785m here in downtown Tokyo can enjoy facility to the Edo-Tokyo Open Air Architectural Museum. Healed from the busy life, Is an oasis that has been loved by many people.
Koganei Park 785m here in downtown Tokyo can enjoy facility to the Edo-Tokyo Open Air Architectural Museum. Healed from the busy life, Is an oasis that has been loved by many people.

park. Featured here is the 600m cycling is a hobby couple to Tamako bike path. Road that leads up to Tamako is the cycling road to enjoy the four seasons, surrounded by trees.
Featured here is the 600m cycling is a hobby couple to Tamako bike path. Road that leads up to Tamako is the cycling road to enjoy the four seasons, surrounded by trees.

Shopping centre

Shopping centre. LIVIN Tanashi ・ ASTA 1100m Interior and consumer electronics to specialty store street, fashion, It is the station building shop gather, such as daily use.
LIVIN Tanashi ・ ASTA 1100m Interior and consumer electronics to specialty store street, fashion, It is the station building shop gather, such as daily use.

Other Environmental Photo

Other Environmental Photo. Tipness until 1080m golf range, Pool 25m × 5 courses, Studio dihedral, sauna, Relaxation germanium warm bath (women only: fee required), Bedrock bath rich, etc. (Free)!
Tipness until 1080m golf range, Pool 25m × 5 courses, Studio dihedral, sauna, Relaxation germanium warm bath (women only: fee required), Bedrock bath rich, etc. (Free)!

Other Environmental Photo. Musashino Sabo Tanashi 1050m classical music to flow to the head office, It drifts atmosphere of Taisho Roman, Sabo and spacious. Handmade sweet and cakes for us carrying the bliss of time to smell quality high coffee to be poured carefully one by one cup.
Musashino Sabo Tanashi 1050m classical music to flow to the head office, It drifts atmosphere of Taisho Roman, Sabo and spacious. Handmade sweet and cakes for us carrying the bliss of time to smell quality high coffee to be poured carefully one by one cup.



Location