New Homes » Kanto » Tokyo » Nishitokyo
 
| | Tokyo Nishitokyo 東京都西東京市 |
| Seibu Ikebukuro Line "Hibarigaoka" walk 22 minutes 西武池袋線「ひばりヶ丘」歩22分 |
| Highest grade acquisition of six items in the performance evaluation report ・ 2 line 2 Station Available 性能評価書において6項目の最高等級取得・2路線2駅利用可 |
Features pickup 特徴ピックアップ | | Corresponding to the flat-35S / Facing south / System kitchen / A quiet residential area / LDK15 tatami mats or more / Face-to-face kitchen / Bathroom 1 tsubo or more / 2-story / Double-glazing / Zenshitsuminami direction / Warm water washing toilet seat / Underfloor Storage / The window in the bathroom / TV monitor interphone / Walk-in closet / Living stairs フラット35Sに対応 /南向き /システムキッチン /閑静な住宅地 /LDK15畳以上 /対面式キッチン /浴室1坪以上 /2階建 /複層ガラス /全室南向き /温水洗浄便座 /床下収納 /浴室に窓 /TVモニタ付インターホン /ウォークインクロゼット /リビング階段 | Price 価格 | | 36,300,000 yen 3630万円 | Floor plan 間取り | | 3LDK 3LDK | Units sold 販売戸数 | | 1 units 1戸 | Total units 総戸数 | | 1 units 1戸 | Land area 土地面積 | | 106.7 sq m (32.27 tsubo) (Registration) 106.7m2(32.27坪)(登記) | Building area 建物面積 | | 85.28 sq m (25.79 tsubo) (Registration) 85.28m2(25.79坪)(登記) | Driveway burden-road 私道負担・道路 | | Nothing, East 4m width 無、東4m幅 | Completion date 完成時期(築年月) | | November 2013 2013年11月 | Address 住所 | | Tokyo Nishitokyo Izumi-cho 1 東京都西東京市泉町1 | Traffic 交通 | | Seibu Ikebukuro Line "Hibarigaoka" walk 22 minutes Seibu Shinjuku Line "Seibu Yanagisawa" walk 19 minutes 西武池袋線「ひばりヶ丘」歩22分 西武新宿線「西武柳沢」歩19分
| Person in charge 担当者より | | Rep wilderness Naomi Age: 30 Daigyokai Experience: 11 years [Sales] I also I purchased my home a few years ago. "House" is the highest shopping in life. We are pleased that the help can be. I always thought that it be nice If you can end long-term relationship. 担当者原野 直美年齢:30代業界経験:11年【営業】私も数年前にマイホームを購入致しました。「家」は人生の中で一番高いお買い物。そのお手伝いが出来ることを嬉しく思います。末長くお付き合いが出来たらいいなといつも思っています。 | Contact お問い合せ先 | | TEL: 0800-602-5712 [Toll free] mobile phone ・ Also available from PHS Caller ID is not notified Please contact the "saw SUUMO (Sumo)" If it does not lead, If the real estate company TEL:0800-602-5712【通話料無料】携帯電話・PHSからもご利用いただけます 発信者番号は通知されません 「SUUMO(スーモ)を見た」と問い合わせください つながらない方、不動産会社の方は
| Building coverage, floor area ratio 建ぺい率・容積率 | | 40% ・ 80% 40%・80% | Time residents 入居時期 | | Consultation 相談 | Land of the right form 土地の権利形態 | | Ownership 所有権 | Structure and method of construction 構造・工法 | | Wooden 2-story 木造2階建 | Use district 用途地域 | | One low-rise 1種低層 | Overview and notices その他概要・特記事項 | | Contact: wilderness Naomi, Building confirmation number: HPA-13-04251-1 other, Parking: car space 担当者:原野 直美、建築確認番号:HPA-13-04251-1他、駐車場:カースペース | Company profile 会社概要 | | <Mediation> Saitama Governor (1) No. 022059 (Ltd.) My Town Seibu Yubinbango352-0035 Saitama Prefecture Niiza Kurihara 5-6-24 <仲介>埼玉県知事(1)第022059号(株)マイタウン西武〒352-0035 埼玉県新座市栗原5-6-24 |
Local photos, including front road前面道路含む現地写真  Friendly calm living environment in child-rearing
子育てに優しい落ち着いた住環境
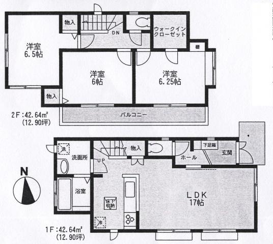
Floor plan間取り図  36,300,000 yen, 3LDK, Land area 106.7 sq m , Building area 85.28 sq m
3630万円、3LDK、土地面積106.7m2、建物面積85.28m2
Livingリビング  LDK is spacious 19.12 Pledge. Sunlight from large windows plenty
LDKは広々19.12帖。大きな窓から陽射しがたっぷり
Local appearance photo現地外観写真  Flat 35S corresponding Property
フラット35S対応物件
Bathroom浴室  Bright bathroom with large windows
大きな窓で明るい浴室
Kitchenキッチン  Face-to-face kitchen overlooking the living room. Useful underfloor storage with
リビングを見渡せる対面キッチン。便利な床下収納つき
Non-living roomリビング以外の居室  All rooms 6 quires more easy-to-use floor plan
全室6帖以上の使いやすい間取り
Wash basin, toilet洗面台・洗面所  Vanity with happy shower in the morning
朝に嬉しいシャワー付洗面化粧台
Receipt収納  Storage lot. Walk-in closet
収納たっぷり。ウォークインクロゼット
Toiletトイレ  Shower toilet
シャワートイレ
Kindergarten ・ Nursery幼稚園・保育園  TakaraTatsukiin to kindergarten 268m
宝樹院幼稚園まで268m
 160m until Izumi nursery
和泉保育園まで160m
Junior high school中学校  Hibarigaoka 400m until junior high school
ひばりヶ丘中学校まで400m
Primary school小学校  Nishitokyo Tatsuizumi to elementary school 560m
西東京市立泉小学校まで560m
Location
|