|
|
Tokyo Nishitokyo
東京都西東京市
|
|
Seibu Shinjuku Line "Tanashi" walk 6 minutes
西武新宿線「田無」歩6分
|
|
LDK18 tatami mats or more, System kitchen, Super close, Bathroom Dryer, Toilet 2 places, TV monitor interphone, Corresponding to the flat-35S, Otobasu, The window in the bathroom, Three-story or more
LDK18畳以上、システムキッチン、スーパーが近い、浴室乾燥機、トイレ2ヶ所、TVモニタ付インターホン、フラット35Sに対応、オートバス、浴室に窓、3階建以上
|
|
■ Flat 35S Available ■ JIO defect liability insurance ■ There is attic storage ■ System chitin with a dishwasher ■ Monitor with intercom ■ Pair glass + screen door ■ Bathroom dryer standard equipment ■ Add cooking function Otobasu ■ Shower toilet ■ Floor heating standard equipment ■ High-efficiency heat source machine "eco Jaws"
■フラット35S利用可■JIO瑕疵担保責任保険■小屋裏収納有り■食洗機付きのシステムキチン■モニター付きインターホン■ペアガラス+網戸■浴室乾燥機標準装備■追炊き機能付きオートバス■シャワートイレ■床暖房標準装備■高効率熱源機「ecoジョーズ」
|
Features pickup 特徴ピックアップ | | Corresponding to the flat-35S / LDK18 tatami mats or more / Super close / System kitchen / Bathroom Dryer / Toilet 2 places / Otobasu / The window in the bathroom / TV monitor interphone / Three-story or more フラット35Sに対応 /LDK18畳以上 /スーパーが近い /システムキッチン /浴室乾燥機 /トイレ2ヶ所 /オートバス /浴室に窓 /TVモニタ付インターホン /3階建以上 |
Price 価格 | | 34,800,000 yen ~ 39,800,000 yen 3480万円 ~ 3980万円 |
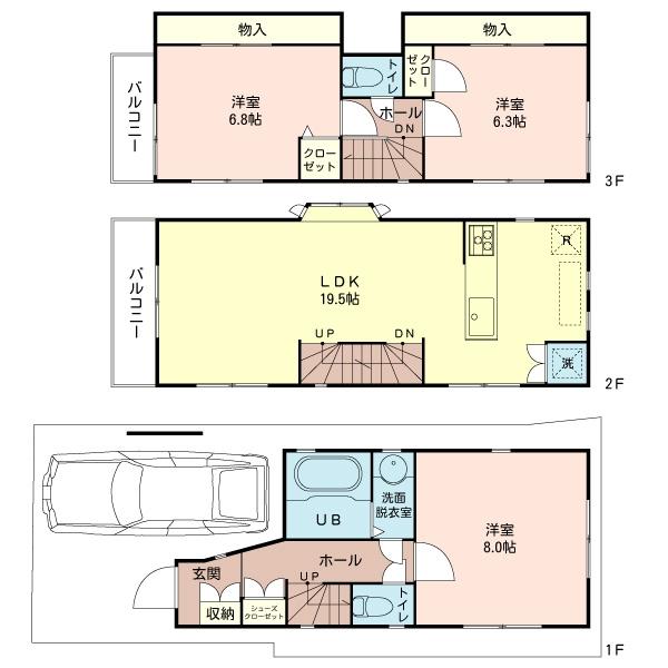
Floor plan 間取り | | 3LDK ・ 3LDK + S (storeroom) 3LDK・3LDK+S(納戸) |
Units sold 販売戸数 | | 3 units 3戸 |
Total units 総戸数 | | 3 units 3戸 |
Land area 土地面積 | | 56.93 sq m ~ 71.84 sq m (17.22 tsubo ~ 21.73 tsubo) (Registration) 56.93m2 ~ 71.84m2(17.22坪 ~ 21.73坪)(登記) |
Building area 建物面積 | | 91.02 sq m ~ 91.42 sq m (27.53 tsubo ~ 27.65 square meters) 91.02m2 ~ 91.42m2(27.53坪 ~ 27.65坪) |
Driveway burden-road 私道負担・道路 | | West road about 5.4m, South proviso road about 4.0m 西側公道約5.4m、南側但書道路約4.0m |
Completion date 完成時期(築年月) | | 2013 mid-December 2013年12月中旬 |
Address 住所 | | Tokyo Nishitokyo Tanashi-cho 5-12-9 東京都西東京市田無町5-12-9 |
Traffic 交通 | | Seibu Shinjuku Line "Tanashi" walk 6 minutes 西武新宿線「田無」歩6分
|
Person in charge 担当者より | | Rep Kugimiya Kokorozashiko 担当者釘宮志光 |
Contact お問い合せ先 | | Sekiwa Real Estate Co., Ltd. Mitaka office TEL: 0422-54-6731 Please inquire as "saw SUUMO (Sumo)" 積和不動産(株)三鷹営業所TEL:0422-54-6731「SUUMO(スーモ)を見た」と問い合わせください |
Building coverage, floor area ratio 建ぺい率・容積率 | | Building coverage 60% / Volume rate of 200% 建蔽率60%/容積率200% |
Time residents 入居時期 | | Consultation 相談 |
Land of the right form 土地の権利形態 | | Ownership 所有権 |
Structure and method of construction 構造・工法 | | Wooden three-story 木造3階建 |
Construction 施工 | | Co., Ltd. Grand Home 株式会社グランドホーム |
Use district 用途地域 | | One dwelling 1種住居 |
Land category 地目 | | Residential land 宅地 |
Overview and notices その他概要・特記事項 | | Contact: Kugimiya Kokorozashiko, Building confirmation number: 1 Building: GEA1311-10639 / Building 2: GEA1311-10640 / Building 3: GEA1311-10641 担当者:釘宮志光、建築確認番号:1号棟:GEA1311-10639/2号棟:GEA1311-10640/3号棟:GEA1311-10641 |
Company profile 会社概要 | | <Mediation> Minister of Land, Infrastructure and Transport (11) No. 002250 (one company) Real Estate Association (Corporation) metropolitan area real estate Fair Trade Council member Sekiwa Real Estate Co., Ltd. Mitaka office Yubinbango180-0006 Musashino-shi, Tokyo Nakamachi 1-4-4 <仲介>国土交通大臣(11)第002250号(一社)不動産協会会員 (公社)首都圏不動産公正取引協議会加盟積和不動産(株)三鷹営業所〒180-0006 東京都武蔵野市中町1-4-4 |