New Homes » Kanto » Tokyo » Nishitokyo
 
| | Tokyo Nishitokyo 東京都西東京市 |
| Seibu Shinjuku Line "Higashifushimi" walk 11 minutes 西武新宿線「東伏見」歩11分 |
| ◎ park ・ Good location of the super close! ◎ will be completed soon. ◎ expenses reduce, etc. Please contact us. Living Services [Tanashi] Located in the station south exit 1-minute walk Apaman Shops. ◎公園・スーパー至近の好立地!◎間もなく完成いたします。◎諸経費軽減等ご相談ください。リビングサービスは【田無】駅南口徒歩1分アパマンショップ内にあります。 |
| We will soon complete. C Building the interior of the cleaning has been terminated. System kitchen, Washbasin with shower, Bathroom 1 tsubo or more, 2-story, Warm water washing toilet seat, The window in the bathroom, Water filter 間もなく完成いたします。C号棟は内装のクリーニングが終了しました。システムキッチン、シャワー付洗面台、浴室1坪以上、2階建、温水洗浄便座、浴室に窓、浄水器 |
Features pickup 特徴ピックアップ | | System kitchen / Washbasin with shower / Bathroom 1 tsubo or more / 2-story / Warm water washing toilet seat / The window in the bathroom / Water filter システムキッチン /シャワー付洗面台 /浴室1坪以上 /2階建 /温水洗浄便座 /浴室に窓 /浄水器 | Listing details information 物件詳細情報 | | 83020948 83020948 | Price 価格 | | 33,800,000 yen ~ 36,800,000 yen 3380万円 ~ 3680万円 | Floor plan 間取り | | 3LDK 3LDK | Units sold 販売戸数 | | 2 units 2戸 | Total units 総戸数 | | 3 units 3戸 | Land area 土地面積 | | 63 sq m ~ 68.9 sq m (measured) 63m2 ~ 68.9m2(実測) | Building area 建物面積 | | 57.81 sq m ~ 61.76 sq m 57.81m2 ~ 61.76m2 | Driveway burden-road 私道負担・道路 | | Road width: 4m, Asphaltic pavement 道路幅:4m、アスファルト舗装 | Completion date 完成時期(築年月) | | Mid-January 2014 2014年1月中旬予定 | Address 住所 | | Tokyo Nishitokyo Higashifushimi 4 東京都西東京市東伏見4 | Traffic 交通 | | Seibu Shinjuku Line "Higashifushimi" walk 11 minutes JR Chuo Line "Kichijoji" 15 minutes Mitsuzuka walk 2 minutes by bus 西武新宿線「東伏見」歩11分 JR中央線「吉祥寺」バス15分三ツ塚歩2分
| Person in charge 担当者より | | Person in charge of rice Small peninsula 担当者飯 崎 | Contact お問い合せ先 | | Co., Ltd. Living Service (株)リビングサービス | Building coverage, floor area ratio 建ぺい率・容積率 | | Kenpei rate: 50% ・ 60%, Volume ratio: 100% ・ 200% 建ペい率:50%・60%、容積率:100%・200% | Time residents 入居時期 | | January 2014 late schedule 2014年1月下旬予定 | Land of the right form 土地の権利形態 | | Ownership 所有権 | Structure and method of construction 構造・工法 | | Wooden 2-story 木造2階建 | Use district 用途地域 | | One low-rise, Two dwellings 1種低層、2種住居 | Land category 地目 | | Residential land 宅地 | Overview and notices その他概要・特記事項 | | Contact: rice Small peninsula, Building confirmation number: No. 13UDI3T Ken 01790 担当者:飯 崎、建築確認番号:第13UDI3T建01790号 | Company profile 会社概要 | | <Mediation> Governor of Tokyo (12) No. 025027 (Ltd.) living services Yubinbango188-0012 Tokyo Nishitokyo Minamicho 5-5-13 <仲介>東京都知事(12)第025027号(株)リビングサービス〒188-0012 東京都西東京市南町5-5-13 |
Local appearance photo現地外観写真  Local (December 28, 2012) Shooting
現地(2012年12月28日)撮影
Livingリビング  Indoor (December 28, 2013) Shooting C Building Day is a good living.
室内(2013年12月28日)撮影 C号棟 日当たり良いリビングです。
Kitchenキッチン  Indoor (2013 December 28) shooting Kitchen of C Building.
室内(2013年12月28)撮影 C号棟のキッチンです。
Bathroom浴室  Indoor (December 28, 2013) Shooting It is C Building bathroom.
室内(2013年12月28日)撮影 C号棟浴室です。
Floor plan間取り図  (C Building), Price 33,800,000 yen, 3LDK, Land area 68.9 sq m , Building area 57.81 sq m
(C号棟)、価格3380万円、3LDK、土地面積68.9m2、建物面積57.81m2
Non-living roomリビング以外の居室  Indoor (December 28, 2013) Shooting
室内(2013年12月28日)撮影
Wash basin, toilet洗面台・洗面所  Indoor (December 28, 2013) Shooting
室内(2013年12月28日)撮影
Receipt収納  Indoor (December 28, 2013) Shooting
室内(2013年12月28日)撮影
Toiletトイレ  Indoor (December 28, 2013) Shooting
室内(2013年12月28日)撮影
Local photos, including front road前面道路含む現地写真  Local (December 28, 2013) Shooting
現地(2013年12月28日)撮影
Balconyバルコニー  Local (December 28, 2013) Shooting
現地(2013年12月28日)撮影
Convenience storeコンビニ  298m to Seven-Eleven
セブンイレブンまで298m
 The entire compartment Figure
全体区画図
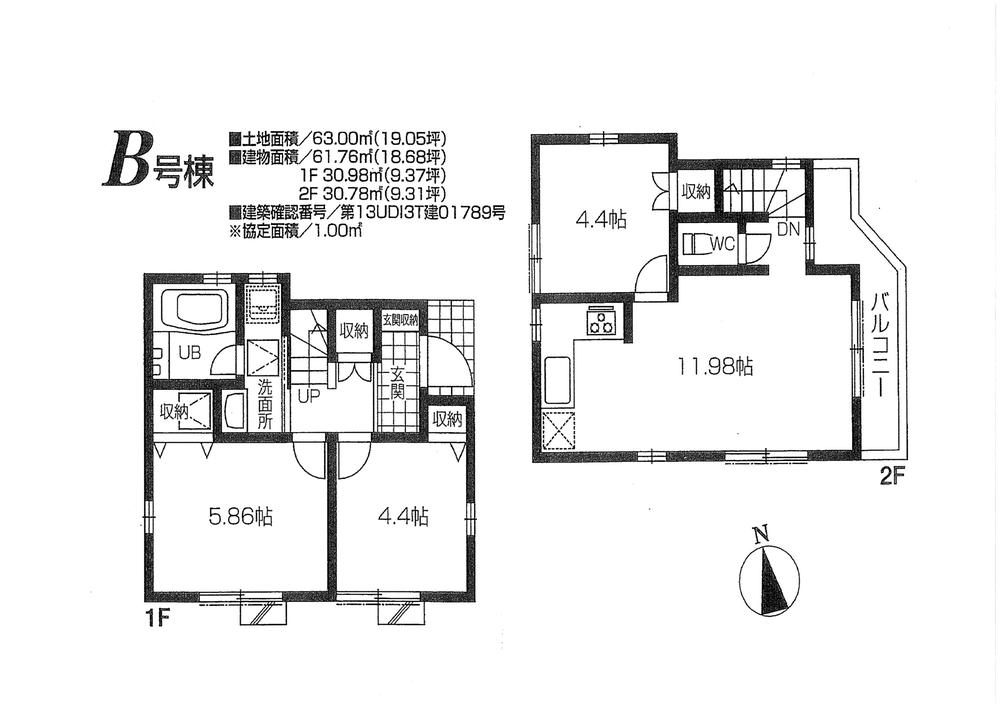
Floor plan間取り図  (B Building), Price 36,800,000 yen, 3LDK, Land area 63 sq m , Building area 61.76 sq m
(B号棟)、価格3680万円、3LDK、土地面積63m2、建物面積61.76m2
Supermarketスーパー  Until Seiyu 555m
西友まで555m
Park公園  543m to Musashi Seki park
武蔵関公園まで543m
Supermarketスーパー  893m to the Co-op future
コープみらいまで893m
Local appearance photo現地外観写真  Local (December 28, 2013) Shooting
現地(2013年12月28日)撮影
 Local (December 28, 2013) Shooting
現地(2013年12月28日)撮影
Location
|