New Homes » Kanto » Tokyo » Ome
 
| | Ome, Tokyo 東京都青梅市 |
| JR Ome Line "Kawabe" walk 10 minutes JR青梅線「河辺」歩10分 |
| With loft All flooring Enhance storage IH cooking heater System kitchen Dishwasher City gas ロフト付 オールフローリング 充実収納 IHクッキングヒーター システムキッチン 食洗機付 都市ガス |
Features pickup 特徴ピックアップ | | System kitchen / Bathroom Dryer / All room storage / Washbasin with shower / Toilet 2 places / 2-story / Warm water washing toilet seat / loft / The window in the bathroom / TV monitor interphone / All living room flooring / IH cooking heater / City gas システムキッチン /浴室乾燥機 /全居室収納 /シャワー付洗面台 /トイレ2ヶ所 /2階建 /温水洗浄便座 /ロフト /浴室に窓 /TVモニタ付インターホン /全居室フローリング /IHクッキングヒーター /都市ガス | Price 価格 | | 29,800,000 yen 2980万円 | Floor plan 間取り | | 3LDK 3LDK | Units sold 販売戸数 | | 1 units 1戸 | Total units 総戸数 | | 1 units 1戸 | Land area 土地面積 | | 75.69 sq m (registration) 75.69m2(登記) | Building area 建物面積 | | 74.94 sq m (registration) 74.94m2(登記) | Driveway burden-road 私道負担・道路 | | Nothing, Northeast 4m width, Southwest 4m width 無、北東4m幅、南西4m幅 | Completion date 完成時期(築年月) | | December 2013 2013年12月 | Address 住所 | | Ome, Tokyo Kawabe-cho, 6 東京都青梅市河辺町6 | Traffic 交通 | | JR Ome Line "Kawabe" walk 10 minutes JR Ome Line "tenancy" walk 14 minutes JR Ome Line "Higashioume" walk 28 minutes JR青梅線「河辺」歩10分 JR青梅線「小作」歩14分 JR青梅線「東青梅」歩28分
| Person in charge 担当者より | | Rep Tsunoda Mamoru Age: 40 Daigyokai experience: the purchase of 8-year real estate, Your sale, etc.. To suit your needs we try to let me correspond. Also, Become a customer's point of view in response to the consultation, I would like to accurately to the advice. 担当者角田 守年齢:40代業界経験:8年不動産の購入、ご売却等。お客様のニーズに合わせて対応させて頂きますよう心がけております。また、お客様の立場となって相談に対応し、的確にアドバイスをさせていただきたいと思います。 | Contact お問い合せ先 | | TEL: 0800-603-1036 [Toll free] mobile phone ・ Also available from PHS Caller ID is not notified Please contact the "saw SUUMO (Sumo)" If it does not lead, If the real estate company TEL:0800-603-1036【通話料無料】携帯電話・PHSからもご利用いただけます 発信者番号は通知されません 「SUUMO(スーモ)を見た」と問い合わせください つながらない方、不動産会社の方は
| Building coverage, floor area ratio 建ぺい率・容積率 | | 60% ・ 200% 60%・200% | Time residents 入居時期 | | Consultation 相談 | Land of the right form 土地の権利形態 | | Ownership 所有権 | Structure and method of construction 構造・工法 | | Wooden 2-story 木造2階建 | Use district 用途地域 | | One middle and high 1種中高 | Overview and notices その他概要・特記事項 | | Contact: Tsunoda Mamoru, Facilities: Public Water Supply, This sewage, City gas, Building confirmation number: BVJ-W13-10-0527, Parking: car space 担当者:角田 守、設備:公営水道、本下水、都市ガス、建築確認番号:BVJ-W13-10-0527、駐車場:カースペース | Company profile 会社概要 | | <Mediation> Governor of Tokyo (7) No. 047202 (Corporation) Tokyo Metropolitan Government Building Lots and Buildings Transaction Business Association (Corporation) metropolitan area real estate Fair Trade Council member (Ltd.) Yamaichi Home Hamura head office Yubinbango205-0003 Tokyo Hamura Midorigaoka 1-23-9 <仲介>東京都知事(7)第047202号(公社)東京都宅地建物取引業協会会員 (公社)首都圏不動産公正取引協議会加盟(株)山一ホーム羽村本店〒205-0003 東京都羽村市緑ヶ丘1-23-9 |
 Local appearance photo
現地外観写真
 Local appearance photo
現地外観写真
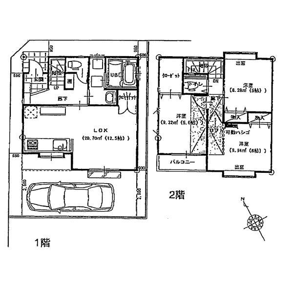
Floor plan間取り図  29,800,000 yen, 3LDK, Land area 75.69 sq m , Building area 74.94 sq m
2980万円、3LDK、土地面積75.69m2、建物面積74.94m2
 Local photos, including front road
前面道路含む現地写真
Supermarketスーパー  303m to Super Ozamu Kawabe shop
スーパーオザム河辺店まで303m
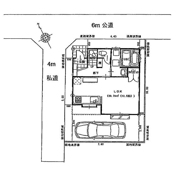
Compartment figure区画図  29,800,000 yen, 3LDK, Land area 75.69 sq m , Building area 74.94 sq m
2980万円、3LDK、土地面積75.69m2、建物面積74.94m2
 Local photos, including front road
前面道路含む現地写真
Home centerホームセンター  1000m to home improvement Yasaka Kawabe shop
ホームセンターヤサカ河辺店まで1000m
Kindergarten ・ Nursery幼稚園・保育園  Ome 314m to kindergarten
青梅幼稚園まで314m
Hospital病院  Ome until the Municipal General Hospital 1306m
青梅市立総合病院まで1306m
Location
|