New Homes » Kanto » Tokyo » Ota City
 
| | Ota-ku, Tokyo 東京都大田区 |
| Keikyu main line "Rokugodote" walk 6 minutes 京急本線「六郷土手」歩6分 |
| Immediate Available, Super close, All room storage, Or more before road 6m, Toilet 2 places, The window in the bathroom, Year Available, Built garage, Walk-in closet, Three-story or more, Living stairs, Roof balcony 即入居可、スーパーが近い、全居室収納、前道6m以上、トイレ2ヶ所、浴室に窓、年内入居可、ビルトガレージ、ウォークインクロゼット、3階建以上、リビング階段、ルーフバルコニ |
Features pickup 特徴ピックアップ | | Year Available / Immediate Available / Super close / All room storage / Or more before road 6m / Toilet 2 places / The window in the bathroom / Built garage / Walk-in closet / Three-story or more / Living stairs / roof balcony 年内入居可 /即入居可 /スーパーが近い /全居室収納 /前道6m以上 /トイレ2ヶ所 /浴室に窓 /ビルトガレージ /ウォークインクロゼット /3階建以上 /リビング階段 /ルーフバルコニー | Price 価格 | | 34,300,000 yen 3430万円 | Floor plan 間取り | | 3LDK 3LDK | Units sold 販売戸数 | | 1 units 1戸 | Total units 総戸数 | | 5 units 5戸 | Land area 土地面積 | | 54.2 sq m (16.39 square meters) 54.2m2(16.39坪) | Building area 建物面積 | | 93.83 sq m (28.38 square meters), Among the first floor garage 3.39 sq m 93.83m2(28.38坪)、うち1階車庫3.39m2 | Driveway burden-road 私道負担・道路 | | Nothing, North 7.2m width 無、北7.2m幅 | Completion date 完成時期(築年月) | | June 2013 2013年6月 | Address 住所 | | Ota-ku, Tokyo Nishirokugo 4 東京都大田区西六郷4 | Traffic 交通 | | Keikyu main line "Rokugodote" walk 6 minutes 京急本線「六郷土手」歩6分
| Related links 関連リンク | | [Related Sites of this company] 【この会社の関連サイト】 | Person in charge 担当者より | | Rep Nishizaki I want 20's soon house: Akane age, Customers who suffer even a little like you want to Relocation! one time, Why not find with us? , You know immediately because the yellow buildings along the line! We customers of your visit and look forward to! 担当者西崎 茜年齢:20代そろそろお家がほしい、住み替えしたいなど少しでもお悩みのお客様!一度、私達と一緒に探してみませんか?蒲田駅西口、線路沿いの黄色い建物なのですぐわかりますよ!お客様のお越しを心よりお待ちしています! | Contact お問い合せ先 | | TEL: 0800-603-3323 [Toll free] mobile phone ・ Also available from PHS Caller ID is not notified Please contact the "saw SUUMO (Sumo)" If it does not lead, If the real estate company TEL:0800-603-3323【通話料無料】携帯電話・PHSからもご利用いただけます 発信者番号は通知されません 「SUUMO(スーモ)を見た」と問い合わせください つながらない方、不動産会社の方は
| Expenses 諸費用 | | Rent: 11,557 yen / Month 地代:1万1557円/月 | Building coverage, floor area ratio 建ぺい率・容積率 | | 60% ・ 200% 60%・200% | Time residents 入居時期 | | Immediate available 即入居可 | Land of the right form 土地の権利形態 | | Leasehold (Old), Leasehold period new 20 years 賃借権(旧)、借地期間新規20年 | Structure and method of construction 構造・工法 | | Wooden three-story 木造3階建 | Use district 用途地域 | | Industry 工業 | Overview and notices その他概要・特記事項 | | Contact: Nishizaki madder, Parking: Garage 担当者:西崎 茜、駐車場:車庫 | Company profile 会社概要 | | <Mediation> Governor of Tokyo (3) No. 082,184 (one company) Real Estate Association (Corporation) metropolitan area real estate Fair Trade Council member Century 21 (Corporation) Housing Plaza home sales Yubinbango144-0051 Ota-ku, Tokyo Nishikamata 7-1-3 Century Stella Bill <仲介>東京都知事(3)第082184号(一社)不動産協会会員 (公社)首都圏不動産公正取引協議会加盟センチュリー21(株)ハウジングプラザ住宅販売〒144-0051 東京都大田区西蒲田7-1-3 センチュリーステラビル |
Local appearance photo現地外観写真  H25.05.15 local
H25.05.15現地
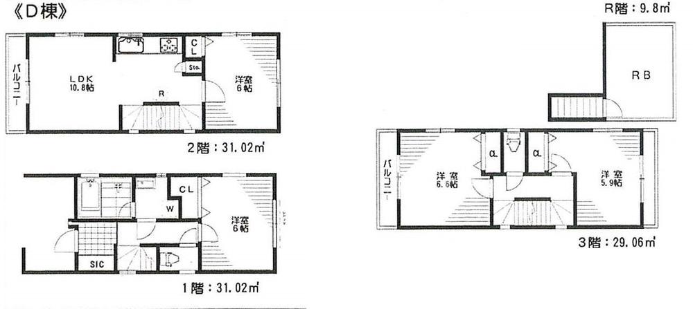
Floor plan間取り図  34,300,000 yen, 3LDK, Land area 54.2 sq m , Building area 93.83 sq m
3430万円、3LDK、土地面積54.2m2、建物面積93.83m2
Livingリビング  H25.07.05 local
H25.07.05現地
Bathroom浴室  H25.07.05 local
H25.07.05現地
Kitchenキッチン  H25.07.05 local
H25.07.05現地
Balconyバルコニー  H25.07.05 local
H25.07.05現地
Supermarketスーパー  Maxvalu Express Rokugodote until Station shop 362m
マックスバリュエクスプレス六郷土手駅前店まで362m
Primary school小学校  Ota 44m to stand Takahata elementary school
大田区立高畑小学校まで44m
Junior high school中学校  903m to Ota Ward Rokugo Junior High School
大田区立六郷中学校まで903m
Location
|