New Homes » Kanto » Tokyo » Ota City
 
| | Ota-ku, Tokyo 東京都大田区 |
| Keikyu main line "variegated" walk 7 minutes 京急本線「雑色」歩7分 |
Features pickup 特徴ピックアップ | | 2 along the line more accessible / Facing south / Yang per good / Siemens south road / Toilet 2 places / Bathroom 1 tsubo or more / South balcony / All room 6 tatami mats or more / Three-story or more 2沿線以上利用可 /南向き /陽当り良好 /南側道路面す /トイレ2ヶ所 /浴室1坪以上 /南面バルコニー /全居室6畳以上 /3階建以上 | Event information イベント情報 | | Local sales meetings (Please be sure to ask in advance) schedule / Every Saturday, Sunday and public holidays time / 10:00 ~ 18:00 現地販売会(事前に必ずお問い合わせください)日程/毎週土日祝時間/10:00 ~ 18:00 | Price 価格 | | 39,800,000 yen 3980万円 | Floor plan 間取り | | 4LDK 4LDK | Units sold 販売戸数 | | 1 units 1戸 | Land area 土地面積 | | 68.81 sq m 68.81m2 | Building area 建物面積 | | 111.19 sq m , Among the first floor garage 10.32 sq m 111.19m2、うち1階車庫10.32m2 | Driveway burden-road 私道負担・道路 | | Nothing, South 5m width (contact the road width 4m) 無、南5m幅(接道幅4m) | Completion date 完成時期(築年月) | | November 2013 2013年11月 | Address 住所 | | Ota-ku, Tokyo Nakarokugo 1-36-12 東京都大田区仲六郷1-36-12 | Traffic 交通 | | Keikyu main line "variegated" walk 7 minutes JR Keihin Tohoku Line "Kamata" walk 17 minutes Keikyu main line "Keikyukamata" walk 16 minutes 京急本線「雑色」歩7分 JR京浜東北線「蒲田」歩17分 京急本線「京急蒲田」歩16分
| Related links 関連リンク | | [Related Sites of this company] 【この会社の関連サイト】 | Person in charge 担当者より | | Rep Nishizaki I want 20's soon house: Akane age, Customers who suffer even a little like you want to Relocation! one time, Why not find with us? , You know immediately because the yellow buildings along the line! We customers of your visit and look forward to! 担当者西崎 茜年齢:20代そろそろお家がほしい、住み替えしたいなど少しでもお悩みのお客様!一度、私達と一緒に探してみませんか?蒲田駅西口、線路沿いの黄色い建物なのですぐわかりますよ!お客様のお越しを心よりお待ちしています! | Contact お問い合せ先 | | TEL: 0800-603-3323 [Toll free] mobile phone ・ Also available from PHS Caller ID is not notified Please contact the "saw SUUMO (Sumo)" If it does not lead, If the real estate company TEL:0800-603-3323【通話料無料】携帯電話・PHSからもご利用いただけます 発信者番号は通知されません 「SUUMO(スーモ)を見た」と問い合わせください つながらない方、不動産会社の方は
| Expenses 諸費用 | | Rent: 13,110 yen / Month 地代:1万3110円/月 | Building coverage, floor area ratio 建ぺい率・容積率 | | 60% ・ 200% 60%・200% | Time residents 入居時期 | | Consultation 相談 | Land of the right form 土地の権利形態 | | Leasehold (Hiroshi), Leasehold period new 30 years 賃借権(普)、借地期間新規30年 | Structure and method of construction 構造・工法 | | Wooden three-story 木造3階建 | Use district 用途地域 | | One dwelling 1種住居 | Other limitations その他制限事項 | | Regulations have by the Aviation Law, Height district, Quasi-fire zones 航空法による規制有、高度地区、準防火地域 | Overview and notices その他概要・特記事項 | | Contact: Nishizaki madder, Building confirmation number: BVJ-L13-10-0133 No., Parking: Garage 担当者:西崎 茜、建築確認番号:BVJ-L13-10-0133号、駐車場:車庫 | Company profile 会社概要 | | <Mediation> Governor of Tokyo (3) No. 082,184 (one company) Real Estate Association (Corporation) metropolitan area real estate Fair Trade Council member Century 21 (Corporation) Housing Plaza home sales Yubinbango144-0051 Ota-ku, Tokyo Nishikamata 7-1-3 Century Stella Bill <仲介>東京都知事(3)第082184号(一社)不動産協会会員 (公社)首都圏不動産公正取引協議会加盟センチュリー21(株)ハウジングプラザ住宅販売〒144-0051 東京都大田区西蒲田7-1-3 センチュリーステラビル |
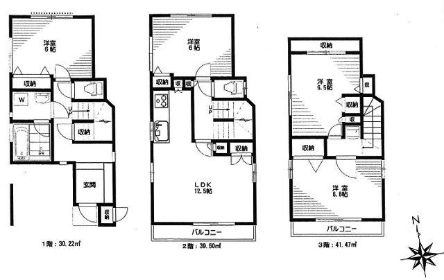
Floor plan間取り図  39,800,000 yen, 4LDK, Land area 68.81 sq m , Building area 111.19 sq m
3980万円、4LDK、土地面積68.81m2、建物面積111.19m2
Local appearance photo現地外観写真  Local (12 May 2013) Shooting
現地(2013年12月)撮影
Supermarketスーパー  Maruetsu whether or 874m to the store
マルエツかまた店まで874m
Hospital病院  Social insurance Kamata 803m to General Hospital
社会保険蒲田総合病院まで803m
Police station ・ Police box警察署・交番  750m to Kamata Police Station
蒲田警察署まで750m
Location
|