New Homes » Kanto » Tokyo » Ota City
 
| | Ota-ku, Tokyo 東京都大田区 |
| JR Keihin Tohoku Line "Omori" walk 12 minutes JR京浜東北線「大森」歩12分 |
| All room storage, Shaping land, Face-to-face kitchen, Toilet 2 places, Built garage, Three-story or more, Living stairs, Storeroom 全居室収納、整形地、対面式キッチン、トイレ2ヶ所、ビルトガレージ、3階建以上、リビング階段、納戸 |
Features pickup 特徴ピックアップ | | All room storage / Shaping land / Face-to-face kitchen / Toilet 2 places / Built garage / Three-story or more / Living stairs / Storeroom 全居室収納 /整形地 /対面式キッチン /トイレ2ヶ所 /ビルトガレージ /3階建以上 /リビング階段 /納戸 | Price 価格 | | 60,800,000 yen 6080万円 | Floor plan 間取り | | 3LDK + S (storeroom) 3LDK+S(納戸) | Units sold 販売戸数 | | 1 units 1戸 | Total units 総戸数 | | 7 units 7戸 | Land area 土地面積 | | 64 sq m (19.35 square meters) 64m2(19.35坪) | Building area 建物面積 | | 100.45 sq m (30.38 square meters), Among the first floor garage 11.75 sq m 100.45m2(30.38坪)、うち1階車庫11.75m2 | Driveway burden-road 私道負担・道路 | | Nothing, North 4.5m width 無、北4.5m幅 | Completion date 完成時期(築年月) | | February 2014 2014年2月 | Address 住所 | | Ota-ku, Tokyo Sanno 4 東京都大田区山王4 | Traffic 交通 | | JR Keihin Tohoku Line "Omori" walk 12 minutes JR京浜東北線「大森」歩12分
| Related links 関連リンク | | [Related Sites of this company] 【この会社の関連サイト】 | Person in charge 担当者より | | Rep Nishizaki I want 20's soon house: Akane age, Customers who suffer even a little like you want to Relocation! one time, Why not find with us? , You know immediately because the yellow buildings along the line! We customers of your visit and look forward to! 担当者西崎 茜年齢:20代そろそろお家がほしい、住み替えしたいなど少しでもお悩みのお客様!一度、私達と一緒に探してみませんか?蒲田駅西口、線路沿いの黄色い建物なのですぐわかりますよ!お客様のお越しを心よりお待ちしています! | Contact お問い合せ先 | | TEL: 0800-603-3323 [Toll free] mobile phone ・ Also available from PHS Caller ID is not notified Please contact the "saw SUUMO (Sumo)" If it does not lead, If the real estate company TEL:0800-603-3323【通話料無料】携帯電話・PHSからもご利用いただけます 発信者番号は通知されません 「SUUMO(スーモ)を見た」と問い合わせください つながらない方、不動産会社の方は
| Building coverage, floor area ratio 建ぺい率・容積率 | | 60% ・ 174 percent 60%・174% | Time residents 入居時期 | | 5 months after the contract 契約後5ヶ月 | Land of the right form 土地の権利形態 | | Ownership 所有権 | Structure and method of construction 構造・工法 | | Wooden three-story (framing method) 木造3階建(軸組工法) | Use district 用途地域 | | One dwelling 1種住居 | Overview and notices その他概要・特記事項 | | Contact: Nishizaki madder, Building confirmation number: No. 13UDI2T Ken 00948, Parking: Garage 担当者:西崎 茜、建築確認番号:第13UDI2T建00948号、駐車場:車庫 | Company profile 会社概要 | | <Mediation> Governor of Tokyo (3) No. 082,184 (one company) Real Estate Association (Corporation) metropolitan area real estate Fair Trade Council member Century 21 (Corporation) Housing Plaza home sales Yubinbango144-0051 Ota-ku, Tokyo Nishikamata 7-1-3 Century Stella Bill <仲介>東京都知事(3)第082184号(一社)不動産協会会員 (公社)首都圏不動産公正取引協議会加盟センチュリー21(株)ハウジングプラザ住宅販売〒144-0051 東京都大田区西蒲田7-1-3 センチュリーステラビル |
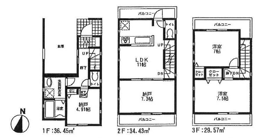
Floor plan間取り図  60,800,000 yen, 3LDK + S (storeroom), Land area 64 sq m , Building area 100.45 sq m
6080万円、3LDK+S(納戸)、土地面積64m2、建物面積100.45m2
Local appearance photo現地外観写真  H25.12.09 local
H25.12.09現地
 Other local
その他現地
Local photos, including front road前面道路含む現地写真  H25.10.17 local
H25.10.17現地
Supermarketスーパー  474m to Super Kadoya
スーパーカドヤまで474m
Junior high school中学校  921m to Ota Ward Magomehigashi Junior High School
大田区立馬込東中学校まで921m
Primary school小学校  Ota Ward Magome 590m until the second elementary school
大田区立馬込第二小学校まで590m
Post office郵便局  510m to Omori post office
大森郵便局まで510m
Bank銀行  588m to Bank of Tokyo-Mitsubishi UFJ Omori Branch
三菱東京UFJ銀行大森支店まで588m
Location
|