New Homes » Kanto » Tokyo » Ota City
 
| | Ota-ku, Tokyo 東京都大田区 |
| Keikyu Airport Line "Anamori Inari" walk 7 minutes 京急空港線「穴守稲荷」歩7分 |
| Keikyu Airport Line "Anamori Inari" Station 7-minute walk, Elementary schools and supermarket are also nearby life convenience good environment! Facing the south side of the road, Car space parallel two (one small) with a 3LDK + 2S type housing. 京急空港線「穴守稲荷」駅徒歩7分、小学校やスーパーも近く生活利便性の良い環境です!南側道路に面した、カースペース並列2台(1台は小型)付きの3LDK+2Sタイプ住宅。 |
| Corresponding to the flat-35S, Vibration Control ・ Seismic isolation ・ Earthquake resistant, Parking two Allowed, Facing south, System kitchen, Bathroom Dryer, Super close, Siemens south road, LDK15 tatami mats or more, Face-to-face kitchen, Toilet 2 places, Bathroom 1 tsubo or more, 2 or more sides balcony, South balcony, Double-glazing, Warm water washing toilet seat, Underfloor Storage, The window in the bathroom, TV monitor interphone, All living room flooring, Water filter, Three-story or more, City gas, All rooms are two-sided lighting, 24-hour ventilation system フラット35Sに対応、制震・免震・耐震、駐車2台可、南向き、システムキッチン、浴室乾燥機、スーパーが近い、南側道路面す、LDK15畳以上、対面式キッチン、トイレ2ヶ所、浴室1坪以上、2面以上バルコニー、南面バルコニー、複層ガラス、温水洗浄便座、床下収納、浴室に窓、TVモニタ付インターホン、全居室フローリング、浄水器、3階建以上、都市ガス、全室2面採光、24時間換気システム |
Features pickup 特徴ピックアップ | | Corresponding to the flat-35S / Vibration Control ・ Seismic isolation ・ Earthquake resistant / Parking two Allowed / Super close / Facing south / System kitchen / Bathroom Dryer / Siemens south road / LDK15 tatami mats or more / Face-to-face kitchen / Toilet 2 places / Bathroom 1 tsubo or more / 2 or more sides balcony / South balcony / Double-glazing / Warm water washing toilet seat / Underfloor Storage / The window in the bathroom / TV monitor interphone / All living room flooring / Water filter / Three-story or more / City gas / All rooms are two-sided lighting フラット35Sに対応 /制震・免震・耐震 /駐車2台可 /スーパーが近い /南向き /システムキッチン /浴室乾燥機 /南側道路面す /LDK15畳以上 /対面式キッチン /トイレ2ヶ所 /浴室1坪以上 /2面以上バルコニー /南面バルコニー /複層ガラス /温水洗浄便座 /床下収納 /浴室に窓 /TVモニタ付インターホン /全居室フローリング /浄水器 /3階建以上 /都市ガス /全室2面採光 | Property name 物件名 | | [Hawk Town] Airport Line "Anamori Inari" Station 7-minute walk, Car space parallel two Allowed 【ホークタウン】空港線「穴守稲荷」駅徒歩7分、カースペース並列2台可 | Price 価格 | | 46,800,000 yen 4680万円 | Floor plan 間取り | | 3LDK + 2S (storeroom) 3LDK+2S(納戸) | Units sold 販売戸数 | | 1 units 1戸 | Total units 総戸数 | | 1 units 1戸 | Land area 土地面積 | | 79.84 sq m (measured) 79.84m2(実測) | Building area 建物面積 | | 106.11 sq m (measured) 106.11m2(実測) | Driveway burden-road 私道負担・道路 | | Nothing, South 4m width 無、南4m幅 | Completion date 完成時期(築年月) | | January 2014 2014年1月 | Address 住所 | | Ota-ku, Tokyo Haneda 6 東京都大田区羽田6 | Traffic 交通 | | Keikyu Airport Line "Anamori Inari" walk 7 minutes Tokyo Monorail "Sky Bridge" walk 10 minutes Keikyu Airport Line "torii" walk 17 minutes 京急空港線「穴守稲荷」歩7分 東京モノレール「天空橋」歩10分 京急空港線「大鳥居」歩17分
| Related links 関連リンク | | [Related Sites of this company] 【この会社の関連サイト】 | Person in charge 担当者より | | To charge Shataku Kenichi people of our customers will respond in a team Age: 20 Daigyokai experience: For one of the customers in the eight years the Company, Sales staff ・ team leader ・ Contract Division ・ Constitute a team of four people at the lowest loan Division, Each making full use of professional knowledge, In order to do our best to meet the needs of our customers 担当者宅建一人のお客様に対してチームで対応致します年齢:20代業界経験:8年当社では一人のお客様に対し、営業スタッフ・チームリーダー・契約課・ローン課の最低でも4名によるチームを構成し、それぞれプロフェッショナルな知識を駆使し、お客様のご要望にお応えすべく全力を尽くします | Contact お問い合せ先 | | TEL: 0800-603-1505 [Toll free] mobile phone ・ Also available from PHS Caller ID is not notified Please contact the "saw SUUMO (Sumo)" If it does not lead, If the real estate company TEL:0800-603-1505【通話料無料】携帯電話・PHSからもご利用いただけます 発信者番号は通知されません 「SUUMO(スーモ)を見た」と問い合わせください つながらない方、不動産会社の方は
| Building coverage, floor area ratio 建ぺい率・容積率 | | 60% ・ 160% 60%・160% | Time residents 入居時期 | | February 2014 schedule 2014年2月予定 | Land of the right form 土地の権利形態 | | Ownership 所有権 | Structure and method of construction 構造・工法 | | Wooden three-story 木造3階建 | Use district 用途地域 | | One dwelling 1種住居 | Other limitations その他制限事項 | | Height district, Quasi-fire zones 高度地区、準防火地域 | Overview and notices その他概要・特記事項 | | Contact: we will correspond team against one of the customers, Facilities: Public Water Supply, This sewage, City gas, Building confirmation number: No. KS113-3120-00380, Parking: car space 担当者:一人のお客様に対してチームで対応致します、設備:公営水道、本下水、都市ガス、建築確認番号:第KS113-3120-00380号、駐車場:カースペース | Company profile 会社概要 | | <Mediation> Minister of Land, Infrastructure and Transport (2) No. 007124 (Corporation) All Japan Real Estate Association (Corporation) metropolitan area real estate Fair Trade Council member (Ltd.) living life Kamata branch Yubinbango144-0051 Ota-ku, Tokyo Nishikamata 8-11-11 <仲介>国土交通大臣(2)第007124号(公社)全日本不動産協会会員 (公社)首都圏不動産公正取引協議会加盟(株)リビングライフ蒲田支店〒144-0051 東京都大田区西蒲田8-11-11 |
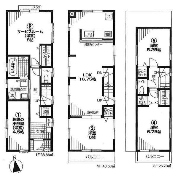
Floor plan間取り図  46,800,000 yen, 3LDK + 2S (storeroom), Land area 79.84 sq m , Building area 106.11 sq m
4680万円、3LDK+2S(納戸)、土地面積79.84m2、建物面積106.11m2
Primary school小学校  260m to Ota Ward Haneda Elementary School
大田区立羽田小学校まで260m
Junior high school中学校  1600m to Ota Ward Haneda Junior High School
大田区立羽田中学校まで1600m
Kindergarten ・ Nursery幼稚園・保育園  Ota 800m to stand Haneda nursery
大田区立羽田保育園まで800m
 Bentenbashi 400m to nursery school
弁天橋保育園まで400m
Supermarketスーパー  Until Fuji Haneda shop 450m
Fuji羽田店まで450m
 1300m until the Big Rise Haneda shop
ビッグライズ羽田店まで1300m
Hospital病院  550m until the medical corporation Association of red Hitoshi Board Haneda symbiosis hospital
医療法人社団赤仁会羽田共生病院まで550m
Location
|