New Homes » Kanto » Tokyo » Ota City


Ota-ku, Tokyo
Tamagawa Tokyu "Numabe" walk 7 minutes
Land: 120 sq m more than ・ Building 119 sq m more than ・ Large roof balcony!
Sakurazaka near! Living environment favorable!
Features pickup
2 along the line more accessible / LDK20 tatami mats or more / A quiet residential area / Or more before road 6m / Face-to-face kitchen / Toilet 2 places / 2-story / TV with bathroom / Dish washing dryer / roof balcony / Floor heating
Price
75,800,000 yen ~ 95,800,000 yen
Floor plan
3LDK ~ 4LDK
Units sold
2 units
Total units
4 units
Land area
114.9 sq m ~ 120.33 sq m (34.75 tsubo ~ 36.39 tsubo) (measured)
Building area
101.32 sq m ~ 119.03 sq m (30.64 tsubo ~ 36.00 square meters)
Completion date
In early September 2013
Address
Ota-ku, Tokyo Den'enchofuhon cho
Traffic
Tamagawa Tokyu "Numabe" walk 7 minutes
Tokyu Ikegami Line "Ontakesan" walk 9 minutes
Person in charge
Rep Ando
Contact
TEL: 0800-603-8108 [Toll free] mobile phone ・ Also available from PHS
Caller ID is not notified
Please contact the "saw SUUMO (Sumo)"
If it does not lead, If the real estate company
Time residents
Immediate available
Land of the right form
Ownership
Use district
One low-rise
Overview and notices
Contact: Ando
Company profile
<Mediation> Governor of Tokyo (2) No. Century 21 (Ltd.) raster House Yubinbango143-0016, Ota-ku, Tokyo, the first 087,972 Omorikita 1-14-1


Living

Living. Indoor (10 May 2013) shooting 23 tatami mats than ・ There stairs following the roof balcony.
Indoor (10 May 2013) shooting 23 tatami mats than ・ There stairs following the roof balcony.

Local appearance photo

Local appearance photo. Local (10 May 2013) Shooting Two-story ・ Sunny
Local (10 May 2013) Shooting Two-story ・ Sunny

Kitchen

Kitchen. Indoor (10 May 2013) Shooting Dishwasher.
Indoor (10 May 2013) Shooting Dishwasher.

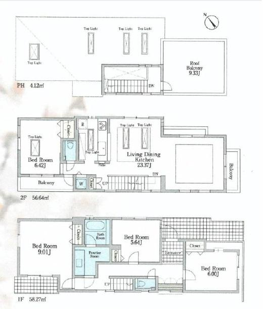
Floor plan

Floor plan. (D section), Price 95,800,000 yen, 4LDK, Land area 120.33 sq m , Building area 119.03 sq m
(D section), Price 95,800,000 yen, 4LDK, Land area 120.33 sq m , Building area 119.03 sq m

Local appearance photo

Local appearance photo. Local (10 May 2013) Shooting
Local (10 May 2013) Shooting

Bathroom

Bathroom. Indoor (10 May 2013) Shooting
Indoor (10 May 2013) Shooting

Wash basin, toilet

Wash basin, toilet. Indoor (10 May 2013) Shooting
Indoor (10 May 2013) Shooting

Toilet

Toilet. Toilet with hand-washing facilities
Toilet with hand-washing facilities

Balcony

Balcony. Local (10 May 2013) Shooting
Local (10 May 2013) Shooting

The entire compartment Figure
The entire compartment Figure

Other

Other. Stairs leading to the roof balcony
Stairs leading to the roof balcony

Floor plan

Floor plan. (C section), Price 75,800,000 yen, 3LDK, Land area 114.9 sq m , Building area 101.32 sq m
(C section), Price 75,800,000 yen, 3LDK, Land area 114.9 sq m , Building area 101.32 sq m

Other

Other. Living Other
Living Other

Other
Other

Other. The main bedroom storage
The main bedroom storage

Other. Master bedroom
Master bedroom



Location