New Homes » Kanto » Tokyo » Ota City


Ota-ku, Tokyo
JR Keihin Tohoku Line "Kamata" walk 10 minutes
■ Land and buildings included 39,800,000 yen ~ ■ JR Kamata Station A 10-minute walk location of ■ 3LDK + parking ■ Floor plan be changed to your liking ■ Available upon consultation of the mortgage Please feel free to contact
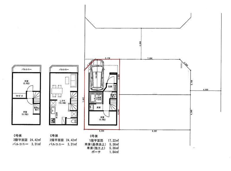
※ LDK12.4 Pledge ~ 15.3 Pledge ※ Each Western-style 4 Pledge ~ 6.4 Pledge ※ Corner lot Yang per good ※ Counter system Kitchen ・ Bathroom 1 pyeong size
Features pickup
2 along the line more accessible / Super close / Yang per good / Flat to the station / Corner lot / Shaping land / Flat terrain / Building plan example there
Price
24,896,000 yen
Building coverage, floor area ratio
60% ・ 240 percent
Sales compartment
1 compartment
Total number of compartments
3 compartment
Land area
40.71 sq m (12.31 tsubo) (measured)
Driveway burden-road
Nothing, North 4m width, East 4m width
Land situation
Vacant lot
Address
Ota-ku, Tokyo Kamata 1
Traffic
JR Keihin Tohoku Line "Kamata" walk 10 minutes
Keikyu main line "Keikyukamata" walk 10 minutes
Keikyu main line "Umeyashiki" walk 10 minutes
Related links
[Related Sites of this company]
Person in charge
Rep Matsubara
Contact
TEL: 0800-603-8969 [Toll free] mobile phone ・ Also available from PHS
Caller ID is not notified
Please contact the "saw SUUMO (Sumo)"
If it does not lead, If the real estate company
Land of the right form
Ownership
Building condition
With
Time delivery
Consultation
Land category
Residential land
Use district
Semi-industrial
Other limitations
Regulations have by the Aviation Law, Height district, Quasi-fire zones, Special use restricted area, Shade limit Yes
Overview and notices
Person in charge: Matsubara, Facilities: Public Water Supply, This sewage, City gas
Company profile
<Marketing alliance (mediated)> Governor of Tokyo (2) No. 089271 (Ltd.) planning Estate Yubinbango153-0063 Meguro-ku, Tokyo Meguro 1-6-17


Other local
Other local

Local land photo
Local land photo

Compartment figure

Compartment figure. Land price 24,896,000 yen, Land area 40.71 sq m
Land price 24,896,000 yen, Land area 40.71 sq m

Building plan example (exterior photos)

Building plan example (exterior photos). Example of construction
Example of construction

Supermarket

Supermarket. 325m caption until Maruetsu Umeyashiki shop
325m caption until Maruetsu Umeyashiki shop

Building plan example (introspection photo)

Building plan example (introspection photo). Example of construction
Example of construction

Building plan example (introspection photo). Example of construction
Example of construction

Building plan example (introspection photo). Example of construction
Example of construction

Building plan example (introspection photo). Example of construction
Example of construction

Building plan example (introspection photo). Example of construction
Example of construction



Location