New Homes » Kanto » Tokyo » Ota City
 
| | Ota-ku, Tokyo 東京都大田区 |
| Keikyu main line "Heiwajima" walk 7 minutes 京急本線「平和島」歩7分 |
Price 価格 | | 43,800,000 yen ~ 46,800,000 yen 4380万円 ~ 4680万円 | Floor plan 間取り | | 2LDK + S (storeroom) ~ 3LDK + S (storeroom) 2LDK+S(納戸) ~ 3LDK+S(納戸) | Units sold 販売戸数 | | 5 units 5戸 | Land area 土地面積 | | 58.32 sq m ~ 71.64 sq m (17.64 tsubo ~ 21.67 square meters) 58.32m2 ~ 71.64m2(17.64坪 ~ 21.67坪) | Building area 建物面積 | | 88.5 sq m ~ 92.07 sq m (26.77 tsubo ~ 27.85 square meters) 88.5m2 ~ 92.07m2(26.77坪 ~ 27.85坪) | Driveway burden-road 私道負担・道路 | | Road width: 4m, Concrete pavement 道路幅:4m、コンクリート舗装 | Completion date 完成時期(築年月) | | 2014 end of March plan 2014年3月末予定 | Address 住所 | | Ota-ku, Tokyo Omorinishi 2-15-15 東京都大田区大森西2-15-15 | Traffic 交通 | | Keikyu main line "Heiwajima" walk 7 minutes 京急本線「平和島」歩7分
| Related links 関連リンク | | [Related Sites of this company] 【この会社の関連サイト】 | Person in charge 担当者より | | Person in charge of real-estate and building FP Ozawa With the same eyes as Koichiro customers, We will help you with your purchase of seriously fun and you live. Please feel free to contact us. 担当者宅建FP小澤 孝一郎お客様と同じ目線で、真剣に楽しくお住まいのご購入のお手伝いをいたします。お気軽にお問い合わせください。 | Contact お問い合せ先 | | TEL: 0800-603-8108 [Toll free] mobile phone ・ Also available from PHS Caller ID is not notified Please contact the "saw SUUMO (Sumo)" If it does not lead, If the real estate company TEL:0800-603-8108【通話料無料】携帯電話・PHSからもご利用いただけます 発信者番号は通知されません 「SUUMO(スーモ)を見た」と問い合わせください つながらない方、不動産会社の方は
| Building coverage, floor area ratio 建ぺい率・容積率 | | Building coverage: 60%, Volume ratio: 200% 建ぺい率:60%、容積率:200% | Time residents 入居時期 | | 2014 end of March plan 2014年3月末予定 | Land of the right form 土地の権利形態 | | Ownership 所有権 | Structure and method of construction 構造・工法 | | Wooden three-story 木造3階建 | Use district 用途地域 | | Semi-industrial 準工業 | Overview and notices その他概要・特記事項 | | Contact: Ozawa Koichiro, Building confirmation number: BNV 確済 13-1353 担当者:小澤 孝一郎、建築確認番号:BNV確済13-1353 | Company profile 会社概要 | | <Mediation> Governor of Tokyo (2) No. Century 21 (Ltd.) raster House Yubinbango143-0016, Ota-ku, Tokyo, the first 087,972 Omorikita 1-14-1 <仲介>東京都知事(2)第087972号センチュリー21(株)ラスターハウス〒143-0016 東京都大田区大森北1-14-1 |
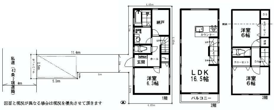
Floor plan間取り図  (A Building), Price 46,800,000 yen, 2LDK+S, Land area 58.62 sq m , Building area 92.07 sq m
(A棟)、価格4680万円、2LDK+S、土地面積58.62m2、建物面積92.07m2
 The entire compartment Figure
全体区画図
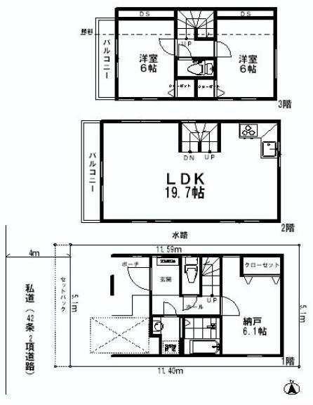
 (B Building), Price 43,800,000 yen, 3LDK+S, Land area 71.64 sq m , Building area 90.26 sq m
(B棟)、価格4380万円、3LDK+S、土地面積71.64m2、建物面積90.26m2
 (C Building), Price 44,800,000 yen, 2LDK+S, Land area 58.32 sq m , Building area 88.5 sq m
(C棟)、価格4480万円、2LDK+S、土地面積58.32m2、建物面積88.5m2
 (D Building), Price 44,800,000 yen, 2LDK+S, Land area 58.32 sq m , Building area 89.43 sq m
(D棟)、価格4480万円、2LDK+S、土地面積58.32m2、建物面積89.43m2
 (E Building), Price 43,800,000 yen, 2LDK+S, Land area 71.43 sq m , Building area 89.38 sq m
(E棟)、価格4380万円、2LDK+S、土地面積71.43m2、建物面積89.38m2
Location
|