|
|
Ota-ku, Tokyo
東京都大田区
|
|
Tokyu Ikegami Line "Senzokuike" walk 5 minutes
東急池上線「洗足池」歩5分
|
|
● station walk 5 minutes ● LDK18 Pledge ● whole room with storage ● Intercom with TV monitor ● quiet residential area
●駅徒歩5分 ●LDK18帖 ●全居室収納付 ●TVモニター付インターホン ●閑静な住宅地
|
|
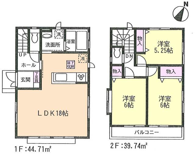
LDK18 tatami mats or more, Face-to-face kitchen, All room storage, TV monitor interphone, Washbasin with shower, A quiet residential area, Corresponding to the flat-35S, System kitchen, Or more before road 6m, Toilet 2 places, 2-story, South balcony, Double-glazing, Underfloor Storage, The window in the bathroom, City gas
LDK18畳以上、対面式キッチン、全居室収納、TVモニタ付インターホン、シャワー付洗面台、閑静な住宅地、フラット35Sに対応、システムキッチン、前道6m以上、トイレ2ヶ所、2階建、南面バルコニー、複層ガラス、床下収納、浴室に窓、都市ガス
|
Features pickup 特徴ピックアップ | | Corresponding to the flat-35S / LDK18 tatami mats or more / System kitchen / All room storage / A quiet residential area / Or more before road 6m / Washbasin with shower / Face-to-face kitchen / Toilet 2 places / 2-story / South balcony / Double-glazing / Underfloor Storage / The window in the bathroom / TV monitor interphone / City gas フラット35Sに対応 /LDK18畳以上 /システムキッチン /全居室収納 /閑静な住宅地 /前道6m以上 /シャワー付洗面台 /対面式キッチン /トイレ2ヶ所 /2階建 /南面バルコニー /複層ガラス /床下収納 /浴室に窓 /TVモニタ付インターホン /都市ガス |
Price 価格 | | 64,800,000 yen 6480万円 |
Floor plan 間取り | | 3LDK 3LDK |
Units sold 販売戸数 | | 1 units 1戸 |
Land area 土地面積 | | 103.32 sq m (31.25 square meters), Alley-like portion: 25.4 sq m including 103.32m2(31.25坪)、路地状部分:25.4m2含 |
Building area 建物面積 | | 84.45 sq m (25.54 square meters) 84.45m2(25.54坪) |
Driveway burden-road 私道負担・道路 | | Nothing, West 6.2m width 無、西6.2m幅 |
Completion date 完成時期(築年月) | | December 2013 2013年12月 |
Address 住所 | | Ota-ku, Tokyo Higashiyukigaya 1 東京都大田区東雪谷1 |
Traffic 交通 | | Tokyu Ikegami Line "Senzokuike" walk 5 minutes 東急池上線「洗足池」歩5分
|
Contact お問い合せ先 | | TEL: 0800-603-2123 [Toll free] mobile phone ・ Also available from PHS Caller ID is not notified Please contact the "saw SUUMO (Sumo)" If it does not lead, If the real estate company TEL:0800-603-2123【通話料無料】携帯電話・PHSからもご利用いただけます 発信者番号は通知されません 「SUUMO(スーモ)を見た」と問い合わせください つながらない方、不動産会社の方は
|
Building coverage, floor area ratio 建ぺい率・容積率 | | Fifty percent ・ Hundred percent 50%・100% |
Time residents 入居時期 | | Consultation 相談 |
Land of the right form 土地の権利形態 | | Ownership 所有権 |
Structure and method of construction 構造・工法 | | Wooden 2-story 木造2階建 |
Use district 用途地域 | | One low-rise 1種低層 |
Other limitations その他制限事項 | | Height district, Quasi-fire zones 高度地区、準防火地域 |
Overview and notices その他概要・特記事項 | | Building confirmation number: No. HPA-13-03366-1, Parking: car space 建築確認番号:第HPA-13-03366-1号、駐車場:カースペース |
Company profile 会社概要 | | <Mediation> Governor of Tokyo (5) No. 072100 (Ltd.) Ken housing Yubinbango155-0031 Setagaya-ku, Tokyo Kitazawa 2-1-16 <仲介>東京都知事(5)第072100号(株)健ハウジング〒155-0031 東京都世田谷区北沢2-1-16 |