New Homes » Kanto » Tokyo » Ota City
 
| | Ota-ku, Tokyo 東京都大田区 |
| Tamagawa Tokyu "Numabe" walk 7 minutes 東急多摩川線「沼部」歩7分 |
| ☆ Characteristic ☆ LDK20 tatami mats or more, Bathroom Dryer, roof balcony, Floor heating, Facing south, Dish washing dryer, System kitchen, TV with bathroom, Please see, so we have also posted voice filled videos! ☆特徴☆LDK20畳以上、浴室乾燥機、ルーフバルコニー、床暖房、南向き、食器洗乾燥機、システムキッチン、TV付浴室、音声入り動画も掲載しておりますのでご覧ください! |
Features pickup 特徴ピックアップ | | LDK20 tatami mats or more / Facing south / System kitchen / Bathroom Dryer / TV with bathroom / TV monitor interphone / Dish washing dryer / Water filter / roof balcony / Floor heating LDK20畳以上 /南向き /システムキッチン /浴室乾燥機 /TV付浴室 /TVモニタ付インターホン /食器洗乾燥機 /浄水器 /ルーフバルコニー /床暖房 | Price 価格 | | 95,800,000 yen 9580万円 | Floor plan 間取り | | 4LDK 4LDK | Units sold 販売戸数 | | 2 units 2戸 | Total units 総戸数 | | 2 units 2戸 | Land area 土地面積 | | 120.33 sq m 120.33m2 | Building area 建物面積 | | 119.03 sq m 119.03m2 | Completion date 完成時期(築年月) | | September 2013 2013年9月 | Address 住所 | | Ota-ku, Tokyo Den'enchofuhon cho 東京都大田区田園調布本町 | Traffic 交通 | | Tamagawa Tokyu "Numabe" walk 7 minutes Tokyu Ikegami Line "Ontakesan" walk 9 minutes Tokyu Toyoko Line "Tama River" walk 13 minutes 東急多摩川線「沼部」歩7分 東急池上線「御嶽山」歩9分 東急東横線「多摩川」歩13分
| Related links 関連リンク | | [Related Sites of this company] 【この会社の関連サイト】 | Person in charge 担当者より | | Person in charge of real-estate and building FP Yoto Masato Age: 30 Daigyokai Experience: 7 years "for the sake of customers" is my standard of behavior. Price near Super, Such as school spirit characteristic of the school, Raised examined many in one, We aim for people to be trusted. It is said to want to buy from Yoto's is now a lot recently thanks to you! 担当者宅建FP世戸誠人年齢:30代業界経験:7年「お客様のために」が私の行動基準です。近くのスーパーの価格、学校の校風特徴など、一つでも多く調べ上げ、信頼される人を目指しています。おかげさまで世戸さんから買いたいと言われることが最近多くなりました! | Contact お問い合せ先 | | TEL: 0800-601-5169 [Toll free] mobile phone ・ Also available from PHS Caller ID is not notified Please contact the "saw SUUMO (Sumo)" If it does not lead, If the real estate company TEL:0800-601-5169【通話料無料】携帯電話・PHSからもご利用いただけます 発信者番号は通知されません 「SUUMO(スーモ)を見た」と問い合わせください つながらない方、不動産会社の方は
| Building coverage, floor area ratio 建ぺい率・容積率 | | Kenpei rate: 50%, Volume ratio: 100% 建ペい率:50%、容積率:100% | Time residents 入居時期 | | Consultation 相談 | Land of the right form 土地の権利形態 | | Ownership 所有権 | Structure and method of construction 構造・工法 | | Wooden 2-story 木造2階建 | Use district 用途地域 | | One low-rise 1種低層 | Other limitations その他制限事項 | | Quasi-fire zones 準防火地域 | Overview and notices その他概要・特記事項 | | Contact: Yoto Masato 担当者:世戸誠人 | Company profile 会社概要 | | <Mediation> Governor of Tokyo (1) the first 090,418 No. SUMICOM (Ltd.) Centurion Yubinbango151-0063 Shibuya-ku, Tokyo Tomigaya 2-14-5 Premiere first floor <仲介>東京都知事(1)第090418号SUMICOM(株)センチュリオン〒151-0063 東京都渋谷区富ヶ谷2-14-5 プルミエール1階 |
Local appearance photo現地外観写真  Local (11 May 2013) Shooting
現地(2013年11月)撮影
 Local (11 May 2013) Shooting
現地(2013年11月)撮影
Livingリビング  Indoor (11 May 2013) Shooting
室内(2013年11月)撮影
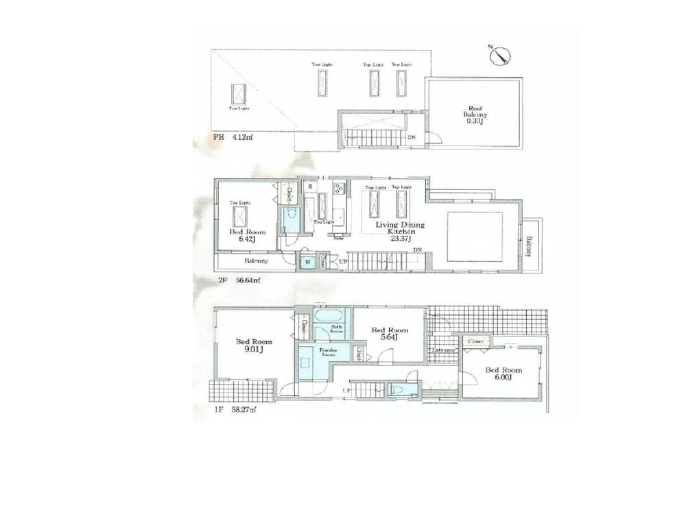
Floor plan間取り図  Price 95,800,000 yen, 4LDK, Land area 120.33 sq m , Building area 119.03 sq m
価格9580万円、4LDK、土地面積120.33m2、建物面積119.03m2
Livingリビング  Indoor (11 May 2013) Shooting
室内(2013年11月)撮影
Bathroom浴室  Indoor (11 May 2013) Shooting
室内(2013年11月)撮影
Kitchenキッチン  Indoor (11 May 2013) Shooting
室内(2013年11月)撮影
Non-living roomリビング以外の居室  Indoor (11 May 2013) Shooting
室内(2013年11月)撮影
Wash basin, toilet洗面台・洗面所  Indoor (11 May 2013) Shooting
室内(2013年11月)撮影
Toiletトイレ  Indoor (11 May 2013) Shooting
室内(2013年11月)撮影
Local photos, including front road前面道路含む現地写真  Local (11 May 2013) Shooting
現地(2013年11月)撮影
Balconyバルコニー  Local (11 May 2013) Shooting
現地(2013年11月)撮影
View photos from the dwelling unit住戸からの眺望写真  View from the site (November 2013) Shooting
現地からの眺望(2013年11月)撮影
Livingリビング  Indoor (11 May 2013) Shooting
室内(2013年11月)撮影
Non-living roomリビング以外の居室  Indoor (11 May 2013) Shooting
室内(2013年11月)撮影
Local photos, including front road前面道路含む現地写真  Local (11 May 2013) Shooting
現地(2013年11月)撮影
Non-living roomリビング以外の居室  Indoor (11 May 2013) Shooting
室内(2013年11月)撮影
 Indoor (11 May 2013) Shooting
室内(2013年11月)撮影
 Indoor (11 May 2013) Shooting
室内(2013年11月)撮影
Location
|