|
|
Ota-ku, Tokyo
東京都大田区
|
|
Keikyu main line "Umeyashiki" walk 10 minutes
京急本線「梅屋敷」歩10分
|
|
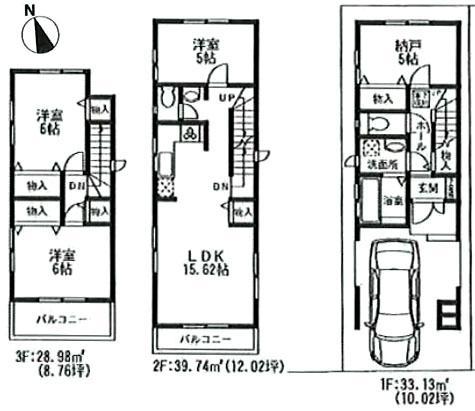
Popular "Umeyashiki" station a 10-minute walk. 3-story large 4LDK. Yang per order of the south road is good.
人気の『梅屋敷』駅徒歩10分。3階建て大型4LDK。南道路の為陽当りは良好です。
|
|
Facing south, System kitchen, Yang per good, Siemens south road, LDK15 tatami mats or more, Shaping land, Toilet 2 places, The window in the bathroom, Three-story or more, All rooms are two-sided lighting
南向き、システムキッチン、陽当り良好、南側道路面す、LDK15畳以上、整形地、トイレ2ヶ所、浴室に窓、3階建以上、全室2面採光
|
Features pickup 特徴ピックアップ | | Facing south / System kitchen / Yang per good / Siemens south road / LDK15 tatami mats or more / Shaping land / Toilet 2 places / The window in the bathroom / Three-story or more / All rooms are two-sided lighting 南向き /システムキッチン /陽当り良好 /南側道路面す /LDK15畳以上 /整形地 /トイレ2ヶ所 /浴室に窓 /3階建以上 /全室2面採光 |
Price 価格 | | 42,800,000 yen 4280万円 |
Floor plan 間取り | | 4LDK 4LDK |
Units sold 販売戸数 | | 1 units 1戸 |
Land area 土地面積 | | 61.41 sq m 61.41m2 |
Building area 建物面積 | | 101.85 sq m 101.85m2 |
Driveway burden-road 私道負担・道路 | | Nothing, South 4m width 無、南4m幅 |
Completion date 完成時期(築年月) | | January 2014 2014年1月 |
Address 住所 | | Ota-ku, Tokyo Omorihigashi 4 東京都大田区大森東4 |
Traffic 交通 | | Keikyu main line "Umeyashiki" walk 10 minutes Keikyu main line "Omorimachi" walk 11 minutes 京急本線「梅屋敷」歩10分 京急本線「大森町」歩11分
|
Related links 関連リンク | | [Related Sites of this company] 【この会社の関連サイト】 |
Person in charge 担当者より | | Personnel Shibata Jun Age: 30 Daigyokai experience: because they are going to live 15 years life, Also we will respond to your any such thing on request. Please contact us more and more. 担当者柴田 純年齢:30代業界経験:15年一生暮らしていくものなので、お客様のご要望にどのような事にも対応させて頂きます。 どんどんお問い合わせくださいませ。 |
Contact お問い合せ先 | | TEL: 0800-602-6152 [Toll free] mobile phone ・ Also available from PHS Caller ID is not notified Please contact the "saw SUUMO (Sumo)" If it does not lead, If the real estate company TEL:0800-602-6152【通話料無料】携帯電話・PHSからもご利用いただけます 発信者番号は通知されません 「SUUMO(スーモ)を見た」と問い合わせください つながらない方、不動産会社の方は
|
Building coverage, floor area ratio 建ぺい率・容積率 | | 80% ・ 300% 80%・300% |
Time residents 入居時期 | | January 2014 2014年1月 |
Land of the right form 土地の権利形態 | | Ownership 所有権 |
Structure and method of construction 構造・工法 | | Wooden three-story 木造3階建 |
Use district 用途地域 | | Residential 近隣商業 |
Overview and notices その他概要・特記事項 | | Contact: Shibata Jun, Building confirmation number , Parking: Garage 担当者:柴田 純、建築確認番号: 、駐車場:車庫 |
Company profile 会社概要 | | <Mediation> Governor of Tokyo (1) No. 093488 (Ltd.) K's home Yubinbango154-0011 Setagaya-ku, Tokyo excellent horse 1-15-3 <仲介>東京都知事(1)第093488号(株)ケーズホーム〒154-0011 東京都世田谷区上馬1-15-3 |