New Homes » Kanto » Tokyo » Ota City
 
| | Ota-ku, Tokyo 東京都大田区 |
| Tokyu Ikegami Line "Nagahara" walk 12 minutes 東急池上線「長原」歩12分 |
| ◆ For day view good upland corner lot! ◆ 3-wire 3-Station available location with convenience! ◆ Floor heating, Dishwasher, Bathroom Dryer, Water filter, Of solid pair glass or the like equipment! ! ◆高台角地の為日当り眺望良好!◆3線3駅利用可能な利便性ある立地!◆床暖房、食洗機、浴室乾燥機、浄水器、ペアガラス等充実の設備!! |
| Corresponding to the flat-35S, 2 along the line more accessible, Fiscal year Available, Super close, System kitchen, Bathroom Dryer, All room storage, LDK15 tatami mats or more, Or more before road 6m, Corner lot, Face-to-face kitchen, Wide balcony, Toilet 2 places, Otobasu, The window in the bathroom, Ventilation good, All living room flooring, Dish washing dryer, Water filter, Three-story or more, City gas, Located on a hill, Floor heating フラット35Sに対応、2沿線以上利用可、年度内入居可、スーパーが近い、システムキッチン、浴室乾燥機、全居室収納、LDK15畳以上、前道6m以上、角地、対面式キッチン、ワイドバルコニー、トイレ2ヶ所、オートバス、浴室に窓、通風良好、全居室フローリング、食器洗乾燥機、浄水器、3階建以上、都市ガス、高台に立地、床暖房 |
Features pickup 特徴ピックアップ | | Corresponding to the flat-35S / 2 along the line more accessible / Fiscal year Available / Super close / System kitchen / Bathroom Dryer / All room storage / LDK15 tatami mats or more / Or more before road 6m / Corner lot / Face-to-face kitchen / Wide balcony / Toilet 2 places / Otobasu / The window in the bathroom / Ventilation good / All living room flooring / Dish washing dryer / Water filter / Three-story or more / City gas / Located on a hill / Floor heating フラット35Sに対応 /2沿線以上利用可 /年度内入居可 /スーパーが近い /システムキッチン /浴室乾燥機 /全居室収納 /LDK15畳以上 /前道6m以上 /角地 /対面式キッチン /ワイドバルコニー /トイレ2ヶ所 /オートバス /浴室に窓 /通風良好 /全居室フローリング /食器洗乾燥機 /浄水器 /3階建以上 /都市ガス /高台に立地 /床暖房 | Price 価格 | | 45,800,000 yen ・ 53,800,000 yen 4580万円・5380万円 | Floor plan 間取り | | 3LDK 3LDK | Units sold 販売戸数 | | 2 units 2戸 | Total units 総戸数 | | 2 units 2戸 | Land area 土地面積 | | 56.57 sq m ・ 59.64 sq m (17.11 tsubo ・ 18.04 tsubo) (Registration) 56.57m2・59.64m2(17.11坪・18.04坪)(登記) | Building area 建物面積 | | 85.28 sq m ・ 95.09 sq m (25.79 tsubo ・ 28.76 tsubo) (Registration) 85.28m2・95.09m2(25.79坪・28.76坪)(登記) | Driveway burden-road 私道負担・道路 | | Road width: 7.1m ・ 3.8m, Asphaltic pavement 道路幅:7.1m・3.8m、アスファルト舗装 | Completion date 完成時期(築年月) | | January 2014 late schedule 2014年1月下旬予定 | Address 住所 | | Ota-ku, Tokyo Kamiikedai 5 東京都大田区上池台5 | Traffic 交通 | | Tokyu Ikegami Line "Nagahara" walk 12 minutes Toei Asakusa Line "Magome" walk 11 minutes Oimachi Line Tokyu "Hatanodai" walk 15 minutes 東急池上線「長原」歩12分 都営浅草線「馬込」歩11分 東急大井町線「旗の台」歩15分
| Related links 関連リンク | | [Related Sites of this company] 【この会社の関連サイト】 | Person in charge 担当者より | | Rep Okada Akio Age: 30 Daigyokai Experience: is also good at 10 years in Tokyo area, Since I have lived in Yokohama, Kawasaki ・ It is also a detailed Yokohama area. Office 10 years, If you could be involved with real estate, Anything question please. 担当者岡田 章男年齢:30代業界経験:10年都内のエリアも得意ですが、横浜市在住しておりますので、川崎・横浜エリアも詳しいです。在職10年、不動産の関わることでしたら、何でもご質問下さい。 | Contact お問い合せ先 | | TEL: 03-6809-7321 Please contact as "saw SUUMO (Sumo)" TEL:03-6809-7321「SUUMO(スーモ)を見た」と問い合わせください | Building coverage, floor area ratio 建ぺい率・容積率 | | Kenpei rate: 60%, Volume ratio: 200% 建ペい率:60%、容積率:200% | Time residents 入居時期 | | January 2014 late schedule 2014年1月下旬予定 | Land of the right form 土地の権利形態 | | Ownership 所有権 | Structure and method of construction 構造・工法 | | Wooden three-story 木造3階建 | Use district 用途地域 | | Two mid-high 2種中高 | Land category 地目 | | Residential land 宅地 | Other limitations その他制限事項 | | Height district, Quasi-fire zones 高度地区、準防火地域 | Overview and notices その他概要・特記事項 | | Person in charge: Okada Akio, Building confirmation number: No. KS113-3120-00334, No. KS113-3120-00335 担当者:岡田 章男、建築確認番号:第KS113-3120-00334号、第KS113-3120-00335号 | Company profile 会社概要 | | <Mediation> Governor of Tokyo (1) No. 094742 (Ltd.) Meguro, Setagaya real estate Yubinbango158-0082 Setagaya-ku, Tokyo Todoroki 1-30-13 <仲介>東京都知事(1)第094742号(株)目黒世田谷不動産〒158-0082 東京都世田谷区等々力1-30-13 |
Rendering (appearance)完成予想図(外観)  Rendering
完成予想図
Same specifications photos (living)同仕様写真(リビング)  Same specifications
同仕様
Same specifications photo (kitchen)同仕様写真(キッチン)  Same specifications
同仕様
Floor plan間取り図  (A Building), Price 53,800,000 yen, 3LDK, Land area 56.57 sq m , Building area 95.09 sq m
(A号棟)、価格5380万円、3LDK、土地面積56.57m2、建物面積95.09m2
Local appearance photo現地外観写真  Local (12 May 2013) Shooting
現地(2013年12月)撮影
Same specifications photo (bathroom)同仕様写真(浴室)  Same specifications
同仕様
Local photos, including front road前面道路含む現地写真  Local (12 May 2013) Shooting
現地(2013年12月)撮影
Same specifications photos (Other introspection)同仕様写真(その他内観)  Same specifications
同仕様
Otherその他  Compartment figure
区画図
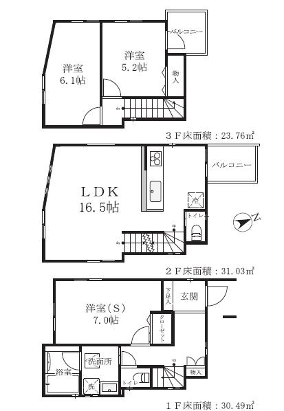
Floor plan間取り図  (B Building), Price 45,800,000 yen, 3LDK, Land area 59.64 sq m , Building area 85.28 sq m
(B号棟)、価格4580万円、3LDK、土地面積59.64m2、建物面積85.28m2
Same specifications photos (Other introspection)同仕様写真(その他内観)  Same specifications
同仕様
Location
|