New Homes » Kanto » Tokyo » Ota City


Ota-ku, Tokyo
Keikyu main line "Rokugodote" walk 7 minutes
Semi-industrial area 2 Station Available Contact eastern side of the public road Toilet 2 places Walk-in closet
Including 10.24 square meters car space in the building area
Features pickup
Fiscal year Available / System kitchen / Yang per good / Flat to the station / LDK15 tatami mats or more / Washbasin with shower / Toilet 2 places / Walk-in closet / All room 6 tatami mats or more / Three-story or more / Storeroom / Flat terrain
Price
35,800,000 yen
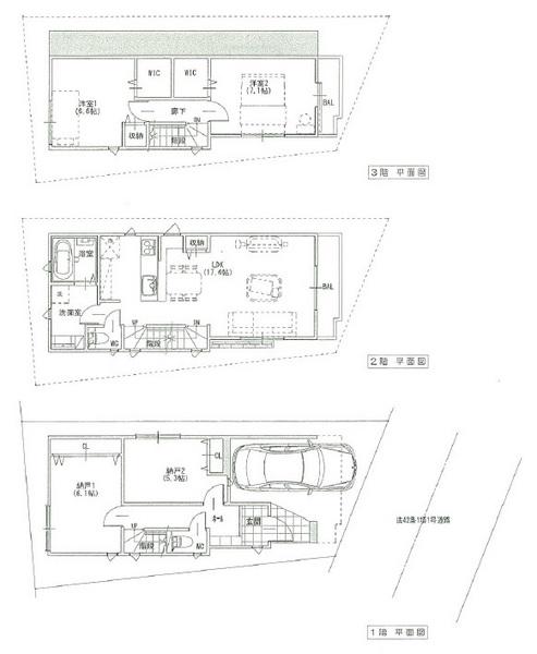
Floor plan
2LDK + S (storeroom)
Units sold
1 units
Total units
1 units
Land area
68.64 sq m (measured)
Building area
113.47 sq m (measured)
Driveway burden-road
Nothing, East 5m width
Completion date
January 2014
Address
Ota-ku, Tokyo Nakarokugo 4
Traffic
Keikyu main line "Rokugodote" walk 7 minutes
Keikyu main line "variegated" walk 10 minutes
Keikyū Daishi Line "port town" walk 19 minutes
Related links
[Related Sites of this company]
Person in charge
Rep MoriSakae Masayuki
Contact
TEL: 0800-603-1869 [Toll free] mobile phone ・ Also available from PHS
Caller ID is not notified
Please contact the "saw SUUMO (Sumo)"
If it does not lead, If the real estate company
Expenses
Rent: 13,400 yen / Month
Building coverage, floor area ratio
60% ・ 200%
Time residents
January 2014
Land of the right form
Leasehold (Old), Leasehold period new 20 years
Structure and method of construction
Wooden three-story
Use district
Quasi-residence
Other limitations
Quasi-fire zones
Overview and notices
Contact: MoriSakae Masayuki, Building confirmation number: No. 13UDI2T Ken 01179, Parking: Garage
Company profile
<Mediation> Governor of Tokyo (5) No. 060733 (Corporation) All Japan Real Estate Association (Corporation) metropolitan area real estate Fair Trade Council member Century 21 (Ltd.) Tokio run Dix Yubinbango144-0051 Ota-ku, Tokyo Nishikamata 7-18-4


Floor plan

Floor plan. 35,800,000 yen, 2LDK + S (storeroom), Land area 68.64 sq m , Building area 113.47 sq m
35,800,000 yen, 2LDK + S (storeroom), Land area 68.64 sq m , Building area 113.47 sq m



Location