New Homes » Kanto » Tokyo » Ota City
 
| | Ota-ku, Tokyo 東京都大田区 |
| Keikyu main line "Rokugodote" walk 6 minutes 京急本線「六郷土手」歩6分 |
| LDK20 tatami mats or more, Bathroom Dryer, Yang per good, Shaping land, Washbasin with shower, Immediate Available, All room storage, Face-to-face kitchen, Barrier-free, Toilet 2 places, 2 or more sides balcony, Otobasu, Temperature LDK20畳以上、浴室乾燥機、陽当り良好、整形地、シャワー付洗面台、即入居可、全居室収納、対面式キッチン、バリアフリー、トイレ2ヶ所、2面以上バルコニー、オートバス、温 |
Features pickup 特徴ピックアップ | | Immediate Available / LDK20 tatami mats or more / Bathroom Dryer / Yang per good / All room storage / Shaping land / Washbasin with shower / Face-to-face kitchen / Barrier-free / Toilet 2 places / 2 or more sides balcony / Otobasu / Warm water washing toilet seat / The window in the bathroom / Three-story or more / Living stairs / All rooms are two-sided lighting 即入居可 /LDK20畳以上 /浴室乾燥機 /陽当り良好 /全居室収納 /整形地 /シャワー付洗面台 /対面式キッチン /バリアフリー /トイレ2ヶ所 /2面以上バルコニー /オートバス /温水洗浄便座 /浴室に窓 /3階建以上 /リビング階段 /全室2面採光 | Event information イベント情報 | | Local sales meetings (Please be sure to ask in advance) schedule / Every Saturday, Sunday and public holidays time / 10:00 ~ 17:00 現地販売会(事前に必ずお問い合わせください)日程/毎週土日祝時間/10:00 ~ 17:00 | Price 価格 | | 34,800,000 yen 3480万円 | Floor plan 間取り | | 4LDK 4LDK | Units sold 販売戸数 | | 1 units 1戸 | Total units 総戸数 | | 4 units 4戸 | Land area 土地面積 | | 73.36 sq m (22.19 tsubo) (Registration) 73.36m2(22.19坪)(登記) | Building area 建物面積 | | 109.34 sq m (33.07 tsubo) (Registration) 109.34m2(33.07坪)(登記) | Driveway burden-road 私道負担・道路 | | Nothing, West 4m width 無、西4m幅 | Completion date 完成時期(築年月) | | November 2013 2013年11月 | Address 住所 | | Ota-ku, Tokyo Higashirokugo 3-15 東京都大田区東六郷3-15 | Traffic 交通 | | Keikyu main line "Rokugodote" walk 6 minutes 京急本線「六郷土手」歩6分
| Related links 関連リンク | | [Related Sites of this company] 【この会社の関連サイト】 | Person in charge 担当者より | | Rep Nishizaki I want 20's soon house: Akane age, Customers who suffer even a little like you want to Relocation! one time, Why not find with us? , You know immediately because the yellow buildings along the line! We customers of your visit and look forward to! 担当者西崎 茜年齢:20代そろそろお家がほしい、住み替えしたいなど少しでもお悩みのお客様!一度、私達と一緒に探してみませんか?蒲田駅西口、線路沿いの黄色い建物なのですぐわかりますよ!お客様のお越しを心よりお待ちしています! | Contact お問い合せ先 | | TEL: 0800-603-3323 [Toll free] mobile phone ・ Also available from PHS Caller ID is not notified Please contact the "saw SUUMO (Sumo)" If it does not lead, If the real estate company TEL:0800-603-3323【通話料無料】携帯電話・PHSからもご利用いただけます 発信者番号は通知されません 「SUUMO(スーモ)を見た」と問い合わせください つながらない方、不動産会社の方は
| Expenses 諸費用 | | Rent: 14,400 yen / Month 地代:1万4400円/月 | Building coverage, floor area ratio 建ぺい率・容積率 | | 60% ・ 200% 60%・200% | Time residents 入居時期 | | Immediate available 即入居可 | Land of the right form 土地の権利形態 | | Leasehold (Hiroshi), Leasehold period new 30 years 賃借権(普)、借地期間新規30年 | Structure and method of construction 構造・工法 | | Wooden three-story 木造3階建 | Use district 用途地域 | | Semi-industrial 準工業 | Overview and notices その他概要・特記事項 | | Contact: Nishizaki madder, Building confirmation number: Ota Ward No. 14 other, Parking: car space 担当者:西崎 茜、建築確認番号:大田区14号他、駐車場:カースペース | Company profile 会社概要 | | <Mediation> Governor of Tokyo (3) No. 082,184 (one company) Real Estate Association (Corporation) metropolitan area real estate Fair Trade Council member Century 21 (Corporation) Housing Plaza home sales Yubinbango144-0051 Ota-ku, Tokyo Nishikamata 7-1-3 Century Stella Bill <仲介>東京都知事(3)第082184号(一社)不動産協会会員 (公社)首都圏不動産公正取引協議会加盟センチュリー21(株)ハウジングプラザ住宅販売〒144-0051 東京都大田区西蒲田7-1-3 センチュリーステラビル |
Local appearance photo現地外観写真  Local (12 May 2013) Shooting
現地(2013年12月)撮影
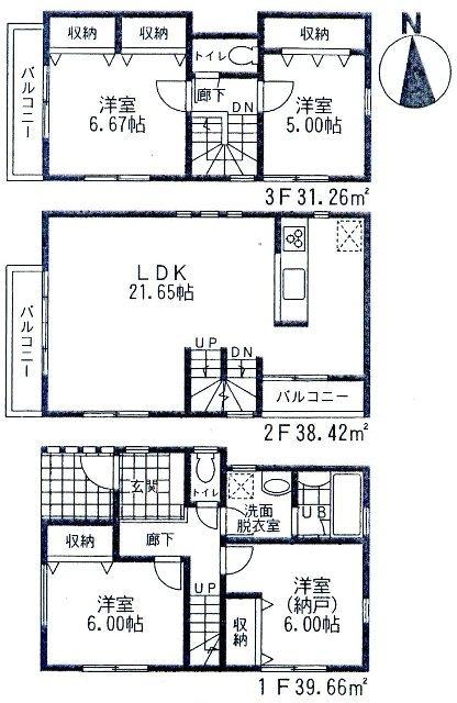
Floor plan間取り図  34,800,000 yen, 4LDK, Land area 73.36 sq m , Building area 109.34 sq m
3480万円、4LDK、土地面積73.36m2、建物面積109.34m2
Local photos, including front road前面道路含む現地写真  Local (12 May 2013) Shooting
現地(2013年12月)撮影
Junior high school中学校  953m to Ota Ward Rokugo Junior High School
大田区立六郷中学校まで953m
 Other local
その他現地
Post office郵便局  1154m to Daejeon Nishirokugo three post office
大田西六郷三郵便局まで1154m
Location
|