|
|
Ota-ku, Tokyo
東京都大田区
|
|
Keikyu Airport Line "torii" walk 15 minutes
京急空港線「大鳥居」歩15分
|
|
Will be newly built single-family of Omori. It becomes the unfinished property, There is another site so you can see such as the interior of the same specifications of the sale advertisers.
大森南の新築戸建になります。 未完成の物件にはなりますが、分譲主様の同仕様での他現場がございますので内装などご覧いただけます。
|
|
Bathroom 1 tsubo or more, Facing south, Underfloor Storage, All room storage, Storeroom, System kitchen, Face-to-face kitchen, Water filter, South balcony, 2 or more sides balcony, Toilet 2 places, Warm water washing toilet seat, Washbasin with shower, Bathroom Vanity, Three-story or more, Fiscal year Available
浴室1坪以上、南向き、床下収納、全居室収納、納戸、システムキッチン、対面式キッチン、浄水器、南面バルコニー、2面以上バルコニー、トイレ2ヶ所、温水洗浄便座、シャワー付洗面台、洗髪洗面化粧台、3階建以上、年度内入居可
|
Features pickup 特徴ピックアップ | | Fiscal year Available / Facing south / System kitchen / All room storage / Washbasin with shower / Face-to-face kitchen / Toilet 2 places / Bathroom 1 tsubo or more / 2 or more sides balcony / South balcony / Warm water washing toilet seat / Underfloor Storage / Water filter / Three-story or more / Storeroom 年度内入居可 /南向き /システムキッチン /全居室収納 /シャワー付洗面台 /対面式キッチン /トイレ2ヶ所 /浴室1坪以上 /2面以上バルコニー /南面バルコニー /温水洗浄便座 /床下収納 /浄水器 /3階建以上 /納戸 |
Price 価格 | | 40,800,000 yen 4080万円 |
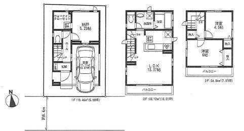
Floor plan 間取り | | 2LDK + S (storeroom) 2LDK+S(納戸) |
Units sold 販売戸数 | | 1 units 1戸 |
Total units 総戸数 | | 1 units 1戸 |
Land area 土地面積 | | 56.11 sq m (registration) 56.11m2(登記) |
Building area 建物面積 | | 88.59 sq m (registration), Among the first floor garage 11.17 sq m 88.59m2(登記)、うち1階車庫11.17m2 |
Driveway burden-road 私道負担・道路 | | Nothing, South 6.4m width 無、南6.4m幅 |
Completion date 完成時期(築年月) | | February 2014 2014年2月 |
Address 住所 | | Ota-ku, Tokyo Omori 2 東京都大田区大森南2 |
Traffic 交通 | | Keikyu Airport Line "torii" walk 15 minutes JR Keihin Tohoku Line "Omori" walk 16 minutes Keikyu main line "Keikyukamata" walk 20 minutes 京急空港線「大鳥居」歩15分 JR京浜東北線「大森」歩16分 京急本線「京急蒲田」歩20分
|
Related links 関連リンク | | [Related Sites of this company] 【この会社の関連サイト】 |
Person in charge 担当者より | | The person in charge Ono 担当者小野 |
Contact お問い合せ先 | | TEL: 0800-603-8969 [Toll free] mobile phone ・ Also available from PHS Caller ID is not notified Please contact the "saw SUUMO (Sumo)" If it does not lead, If the real estate company TEL:0800-603-8969【通話料無料】携帯電話・PHSからもご利用いただけます 発信者番号は通知されません 「SUUMO(スーモ)を見た」と問い合わせください つながらない方、不動産会社の方は
|
Building coverage, floor area ratio 建ぺい率・容積率 | | 60% ・ 200% 60%・200% |
Time residents 入居時期 | | February 2014 schedule 2014年2月予定 |
Land of the right form 土地の権利形態 | | Ownership 所有権 |
Structure and method of construction 構造・工法 | | Wooden three-story 木造3階建 |
Use district 用途地域 | | Semi-industrial 準工業 |
Other limitations その他制限事項 | | Height district, Quasi-fire zones 高度地区、準防火地域 |
Overview and notices その他概要・特記事項 | | Contact: Ono, Facilities: Public Water Supply, This sewage, City gas, Building confirmation number: Unknown, Parking: Garage 担当者:小野、設備:公営水道、本下水、都市ガス、建築確認番号:不明、駐車場:車庫 |
Company profile 会社概要 | | <Marketing alliance (mediated)> Governor of Tokyo (2) No. 089271 (Ltd.) planning Estate Yubinbango153-0063 Meguro-ku, Tokyo Meguro 1-6-17 <販売提携(媒介)>東京都知事(2)第089271号(株)プランニングエステート〒153-0063 東京都目黒区目黒1-6-17 |