New Homes » Kanto » Tokyo » Ota City


Ota-ku, Tokyo
Tamagawa Tokyu "Musashi Nitta" walk 5 minutes
Tamagawa Tokyu "Musashi Nitta" station walk 5 minutes, Bright location facing the southeast side 6.55m public road! small ・ Junior high school and park, Super is the living environment surrounding environment was also enhanced, such as.
2 along the line more accessible, Or more before road 6m, City gas, Vibration Control ・ Seismic isolation ・ Earthquake resistant, Energy-saving water heaters, System kitchen, Bathroom Dryer, Washbasin with shower, Face-to-face kitchen, Southeast direction, Warm water washing toilet seat, The window in the bathroom, TV monitor interphone, Dish washing dryer, Water filter, 24-hour ventilation system, Super close
Features pickup
Vibration Control ・ Seismic isolation ・ Earthquake resistant / 2 along the line more accessible / Energy-saving water heaters / Super close / System kitchen / Bathroom Dryer / Or more before road 6m / Washbasin with shower / Face-to-face kitchen / Southeast direction / Warm water washing toilet seat / The window in the bathroom / TV monitor interphone / Dish washing dryer / Water filter / City gas
Property name
Bright southeast 6.55m public road surface, Housing that spacious use the room with attic storage.
Price
40,800,000 yen
Floor plan
1LDK + 2S (storeroom)
Units sold
1 units
Total units
1 units
Land area
42.69 sq m (measured)
Building area
76.11 sq m (measured), Among the first floor garage 11.08 sq m
Driveway burden-road
Nothing, Southeast 6.5m width
Completion date
April 2014
Address
Ota-ku, Tokyo Shimomaruko 1
Traffic
Tamagawa Tokyu "Musashi Nitta" walk 5 minutes
Tamagawa Tokyu "Shimomaruko" walk 9 minutes
Tokyu Ikegami Line "Chidoricho" walk 13 minutes
Related links
[Related Sites of this company]
Person in charge
Responsible Shataku Kenichi will correspond age in the team for the people of our customers: 30 Daigyokai experience: For one of the customers in the 11 years our company, Sales staff ・ team leader ・ Contract Division ・ Constitute a team of four people at the lowest loan Division, Each making full use of professional knowledge, In order to do our best to meet the needs of our customers
Contact
TEL: 0800-603-1505 [Toll free] mobile phone ・ Also available from PHS
Caller ID is not notified
Please contact the "saw SUUMO (Sumo)"
If it does not lead, If the real estate company
Building coverage, floor area ratio
60% ・ 200%
Time residents
April 2014 schedule
Land of the right form
Ownership
Structure and method of construction
Wooden three-story
Use district
One dwelling
Other limitations
Height district, Quasi-fire zones
Overview and notices
Contact: we will correspond team against one of the customers, Facilities: Public Water Supply, This sewage, City gas, Building confirmation number: No. H25A-JK.eX01378-01
Company profile
<Mediation> Minister of Land, Infrastructure and Transport (2) No. 007124 (Corporation) All Japan Real Estate Association (Corporation) metropolitan area real estate Fair Trade Council member (Ltd.) living life Kamata branch Yubinbango144-0051 Ota-ku, Tokyo Nishikamata 8-11-11


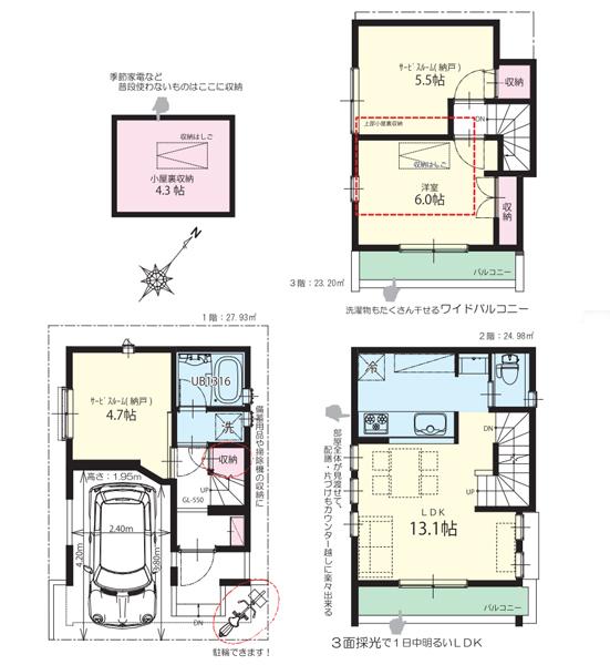
Floor plan

Floor plan. 40,800,000 yen, 1LDK + 2S (storeroom), Land area 42.69 sq m , With attic storage of building area 76.11 sq m 4.3 Pledge, It can be stored, such as home appliances seasonal, You can use a wide room.
40,800,000 yen, 1LDK + 2S (storeroom), Land area 42.69 sq m , With attic storage of building area 76.11 sq m 4.3 Pledge, It can be stored, such as home appliances seasonal, You can use a wide room.

Compartment figure

Compartment figure. 40,800,000 yen, 1LDK + 2S (storeroom), Land area 42.69 sq m , Bright location facing the building area 76.11 sq m southeast side 6.55m road
40,800,000 yen, 1LDK + 2S (storeroom), Land area 42.69 sq m , Bright location facing the building area 76.11 sq m southeast side 6.55m road

Primary school

Primary school. Ota Ward Yaguchi to Nishi Elementary School 280m
Ota Ward Yaguchi to Nishi Elementary School 280m

Junior high school

Junior high school. 420m to Ota Ward Yaguchi Junior High School
420m to Ota Ward Yaguchi Junior High School

Kindergarten ・ Nursery

kindergarten ・ Nursery. Maruko 430m to kindergarten
Maruko 430m to kindergarten

Library

library. 130m to Ota Ward Shimomaruko Library
130m to Ota Ward Shimomaruko Library

Park

park. 900m until Shimomaruko park
900m until Shimomaruko park

Supermarket

Supermarket. 710m until Seiyu Shimomaruko shop
710m until Seiyu Shimomaruko shop

Supermarket. 900m until the Summit store Daejeon Chidoricho shop
900m until the Summit store Daejeon Chidoricho shop

Supermarket. Maruetsu 340m until Nitta shop
Maruetsu 340m until Nitta shop

Shopping centre

Shopping centre. 1100m until the Olympic Shimomaruko shop
1100m until the Olympic Shimomaruko shop



Location