|
|
Setagaya-ku, Tokyo
東京都世田谷区
|
|
Keio Line "Sakurajosui" walk 12 minutes
京王線「桜上水」歩12分
|
|
Keio Line "Sakurajosui" station 12 minutes' walk South road sunny
京王線『桜上水』駅徒歩12分 南道路日当たり良好
|
|
Day ventilation good attached to the east side adjacent land passage! There is a feeling of opening. Dishwasher, Floor heating, Grenier, Of solid pair glass buildings and the like is standard equipment.
東側隣地通路に付き日当たり通風良好!開放感があります。食洗機、床暖房、グルニエ、ペアガラス等充実の建物標準設備です。
|
Features pickup 特徴ピックアップ | | System kitchen / Bathroom Dryer / Siemens south road / Washbasin with shower / Face-to-face kitchen / 2-story / Warm water washing toilet seat / TV monitor interphone / Walk-in closet / Storeroom / Floor heating システムキッチン /浴室乾燥機 /南側道路面す /シャワー付洗面台 /対面式キッチン /2階建 /温水洗浄便座 /TVモニタ付インターホン /ウォークインクロゼット /納戸 /床暖房 |
Price 価格 | | 46,800,000 yen 4680万円 |
Floor plan 間取り | | 1LDK + 2S (storeroom) 1LDK+2S(納戸) |
Units sold 販売戸数 | | 1 units 1戸 |
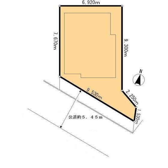
Land area 土地面積 | | 70.61 sq m (21.35 tsubo) (Registration) 70.61m2(21.35坪)(登記) |
Building area 建物面積 | | 70.32 sq m (21.27 tsubo) (Registration) 70.32m2(21.27坪)(登記) |
Driveway burden-road 私道負担・道路 | | Nothing, South 5.6m width (contact the road width 9.5m) 無、南5.6m幅(接道幅9.5m) |
Completion date 完成時期(築年月) | | July 2013 2013年7月 |
Address 住所 | | Setagaya-ku, Tokyo Kamikitazawa 1 東京都世田谷区上北沢1 |
Traffic 交通 | | Keio Line "Sakurajosui" walk 12 minutes 京王線「桜上水」歩12分
|
Contact お問い合せ先 | | TEL: 0800-603-0042 [Toll free] mobile phone ・ Also available from PHS Caller ID is not notified Please contact the "saw SUUMO (Sumo)" If it does not lead, If the real estate company TEL:0800-603-0042【通話料無料】携帯電話・PHSからもご利用いただけます 発信者番号は通知されません 「SUUMO(スーモ)を見た」と問い合わせください つながらない方、不動産会社の方は
|
Building coverage, floor area ratio 建ぺい率・容積率 | | Fifty percent ・ Hundred percent 50%・100% |
Time residents 入居時期 | | Consultation 相談 |
Land of the right form 土地の権利形態 | | Ownership 所有権 |
Structure and method of construction 構造・工法 | | Wooden 2-story 木造2階建 |
Use district 用途地域 | | One low-rise 1種低層 |
Other limitations その他制限事項 | | Height district, Quasi-fire zones 高度地区、準防火地域 |
Overview and notices その他概要・特記事項 | | Facilities: Public Water Supply, This sewage, City gas, Building confirmation number: No. 12UDI2S Ken 04132 設備:公営水道、本下水、都市ガス、建築確認番号:第12UDI2S建04132号 |
Company profile 会社概要 | | <Mediation> Minister of Land, Infrastructure and Transport (12) No. 001608 (one company) Real Estate Association (Corporation) metropolitan area real estate Fair Trade Council member Keio Real Estate Co., Ltd. Osan Chitose office Yubinbango157-0062 Setagaya-ku, Tokyo Minamikarasuyama 5-14-5 <仲介>国土交通大臣(12)第001608号(一社)不動産協会会員 (公社)首都圏不動産公正取引協議会加盟京王不動産(株)千歳烏山営業所〒157-0062 東京都世田谷区南烏山5-14-5 |