New Homes » Kanto » Tokyo » Setagaya
 
| | Setagaya-ku, Tokyo 東京都世田谷区 |
| Odakyu line "Gotokuji" walk 7 minutes 小田急線「豪徳寺」歩7分 |
| Setagaya Umegaoka chome. Odakyu line "Gotokuji" Station 7-minute walk, "Umekeoka" station a 10-minute walk. Odakyu Real Estate Co., Ltd. is give "Leafeon Setagaya Umegaoka" all 17 House, birth. 世田谷区梅丘二丁目。小田急線「豪徳寺」駅徒歩7分、「梅ヶ丘」駅徒歩10分。小田急不動産が贈る「リーフィア世田谷梅丘」全17邸、誕生。 |
| ■ "Shinjuku" station direct 14 minutes, Versatile access to the main station ■ Approximately in the center of Setagaya, Showa early began in historic residential area ■ Super four places within a 10-minute walk, Kyodo also by bicycle 7 minutes ■ Around the gambrel roof, Design to feel the "sum" of adopting the curb grid on the roof wife part ■ Land area 100m2 or more ■ Large storage (closet ・ loft ・ Attic storage etc) ■「新宿」駅直通14分、主要駅への多彩なアクセス■世田谷区のほぼ中央、昭和初期にはじまった由緒ある住宅地■徒歩10分圏内にスーパー4ヶ所、経堂も自転車で7分■入母屋屋根を中心に、屋根妻部に井桁格子を採用した「和」を感じさせる意匠■土地面積100m2以上■大型収納(納戸・ロフト・小屋裏収納etc) |
Local guide map 現地案内図 | | Local guide map 現地案内図 | Features pickup 特徴ピックアップ | | Construction housing performance with evaluation / 2 along the line more accessible / LDK20 tatami mats or more / Facing south / System kitchen / Bathroom Dryer / All room storage / A quiet residential area / Around traffic fewer / Japanese-style room / garden / Face-to-face kitchen / Toilet 2 places / 2-story / 2 or more sides balcony / South balcony / Zenshitsuminami direction / Warm water washing toilet seat / Underfloor Storage / The window in the bathroom / TV monitor interphone / All living room flooring / Dish washing dryer / Walk-in closet / Water filter / Living stairs / City gas / All rooms are two-sided lighting / roof balcony / Attic storage / Floor heating / terrace 建設住宅性能評価付 /2沿線以上利用可 /LDK20畳以上 /南向き /システムキッチン /浴室乾燥機 /全居室収納 /閑静な住宅地 /周辺交通量少なめ /和室 /庭 /対面式キッチン /トイレ2ヶ所 /2階建 /2面以上バルコニー /南面バルコニー /全室南向き /温水洗浄便座 /床下収納 /浴室に窓 /TVモニタ付インターホン /全居室フローリング /食器洗乾燥機 /ウォークインクロゼット /浄水器 /リビング階段 /都市ガス /全室2面採光 /ルーフバルコニー /屋根裏収納 /床暖房 /テラス | Event information イベント情報 | | The final 3 House, Model home being published! ※ Building Completion date: July 2013 Completion settled (1 units), December 2013 completed already (2 units) 最終3邸、モデルホーム公開中!※建物完成時期:2013年7月竣工済(1戸)、2013年12月竣工済(2戸) | Property name 物件名 | | Odakyu Real Estate Co., Ltd. Leafeon Setagaya Umegaoka 小田急不動産 リーフィア世田谷梅丘 | Price 価格 | | 88 million yen ~ 100 million 3.5 million yen 8800万円 ~ 1億350万円 | Floor plan 間取り | | 3LDK 3LDK | Units sold 販売戸数 | | 3 units 3戸 | Total units 総戸数 | | 17 units 17戸 | Land area 土地面積 | | 102.2 sq m ~ 103.78 sq m 102.2m2 ~ 103.78m2 | Building area 建物面積 | | 97.48 sq m ~ 102.25 sq m 97.48m2 ~ 102.25m2 | Driveway burden-road 私道負担・道路 | | Public road about 5.0m, Driveway about 5.0m asphalt pavement, There driveway burden 32 sq m × 1 / 17 (part compartment) 公道約5.0m、私道約5.0mアスファルト舗装、私道負担あり32m2×1/17(一部区画) | Completion date 完成時期(築年月) | | 2013 Late July 2013年7月下旬 | Address 住所 | | Setagaya-ku, Tokyo Umegaoka 2-1288 No. 50 東京都世田谷区梅丘2-1288番50他(地番) | Traffic 交通 | | Odakyu line "Gotokuji" walk 7 minutes Odakyu line "Umekeoka" walk 10 minutes Setagaya Line Tokyu "Yamashita" walk 7 minutes 小田急線「豪徳寺」歩7分 小田急線「梅ヶ丘」歩10分 東急世田谷線「山下」歩7分
| Related links 関連リンク | | [Related Sites of this company] 【この会社の関連サイト】 | Contact お問い合せ先 | | "Leafeon Setagaya Umegaoka" Information Center TEL: 0120-092-388 [Toll free] Please contact the "saw SUUMO (Sumo)" 「リーフィア世田谷梅丘」インフォメーションセンターTEL:0120-092-388【通話料無料】「SUUMO(スーモ)を見た」と問い合わせください | Sale schedule 販売スケジュール | | ※ Per in the first-come-first-served basis accepted, Please note that if by some chance the conclusion of a contract already. When the application is, Personal seal and the most recent income certificate, Identification, Please bring your health insurance card. ※先着順受付中につき、万一成約済の場合はご了承下さい。申込の際は、認印と直近の収入証明書、身分証明書、健康保険証をご持参ください。 | Building coverage, floor area ratio 建ぺい率・容積率 | | Kenpei rate: 60%, Volume ratio: 150% ・ 200% 建ペい率:60%、容積率:150%・200% | Time residents 入居時期 | | Immediate available 即入居可 | Land of the right form 土地の権利形態 | | Ownership 所有権 | Structure and method of construction 構造・工法 | | Wooden 2-story (2 × 4 construction method) 木造2階建(2×4工法) | Construction 施工 | | Ltd. Odakyu housing 株式会社小田急ハウジング | Use district 用途地域 | | One low-rise, One middle and high 1種低層、1種中高 | Land category 地目 | | Residential land 宅地 | Other limitations その他制限事項 | | Quasi-fire zones, "Urban greening method greening area", "Setagaya basic of green regulations," "Setagaya town planning regulations." 準防火地域、「都市緑化法緑化地域」「世田谷区みどりの基本条例」「世田谷区街づくり条例」 | Overview and notices その他概要・特記事項 | | Building confirmation number: No. H25 confirmation architecture KBI00944 other (2013 May 10 date) 建築確認番号:第H25確認建築KBI00944号他(平成25年5月10日付) | Company profile 会社概要 | | <Seller> Minister of Land, Infrastructure and Transport (12) No. 001168 (during the update procedure) (one company) Real Estate Association (one company) Property Distribution Management Association (Corporation) metropolitan area real estate Fair Trade Council member Odakyu Real Estate Co., Ltd. (stock) 〒 <売主>国土交通大臣(12)第001168号(更新手続中)(一社)不動産協会会員 (一社)不動産流通経営協会会員(公社)首都圏不動産公正取引協議会加盟小田急不動産(株)〒151-0061 東京都渋谷区初台1-47-1 小田急西新宿ビル |
Rendering (appearance)完成予想図(外観)  Lush natural environment, Administrative services of the peace of mind in child-rearing, Urban development, which has been developed in order to live, More robust Musashino Plateau. Where the livable conditions were trimmed, It is also one of the charms of Setagaya.
緑豊かな自然環境、子育てに安心の行政サービス、住むために開発された街づくり、さらに強固な武蔵野台地。暮らしやすい条件が整えられた場所、それも世田谷区の魅力の一つです。
Livingリビング  The day-to-day protagonist, Enlightenment living relaxation ・ dining. Indoor (July 2013) Shooting
日々の主役となる、寛ぎを愉しむリビング・ダイニング。室内(2013年7月)撮影
 Connect with nature and the city and family, Bright and spread a living. Indoor (July 2013) Shooting
街や家族と自然とつながる、明るく広がりあるリビング。 室内(2013年7月)撮影
Kitchenキッチン  Bouncy conversation with family, Full of sense of openness open kitchen. Indoor (July 2013) Shooting
家族との会話が弾む、開放感あふれるオープンキッチン。 室内(2013年7月)撮影
Non-living roomリビング以外の居室  The private moments, The main bedroom to spend leisurely. Indoor (July 2013) Shooting
プライベートなひとときを、ゆったりと過ごせる主寝室。 室内(2013年7月)撮影
Bathroom浴室  For heart also fun moments of relaxation also body-free, Simple and pure, The space also deepened the peace far offers. Indoor (July 2013) Shooting
心も身体も寛ぎのひとときを愉しむために、シンプルかつ清らかな、どこまでも安らぎを深めた空間をご用意しています。 室内(2013年7月)撮影
Local appearance photo現地外観写真  Outside 構部 is, Shine and burner finish such as, Select the texture of different 5 kinds of granite. approach, Stone pillar, Lantern, Local that has been abundantly employed, such as the earth retaining (October 2013) Shooting
外構部には、磨きやバーナー仕上げなど、風合いの異なる5種の御影石を選定。アプローチ、石柱、灯籠、土留めなどにふんだんに採用しています現地(2013年10月)撮影
 ■ Approach of approach dwelling unit to invite to its earlier, By an outer structure and green combination, Not simply as a passage, Produce a sense of depth nestled as street garden. Local (July 2013) Shooting
■その先へ誘うアプローチ住戸のアプローチは、外構と緑の組み合わせにより、単に通路としてではなく、通り庭として設え奥行き感を演出。現地(2013年7月)撮影
 ■ It followed the history of fur third design historic Gotokuji have spun, Facade design with a motif to feel the "sum". The wife of the roof in the center of the gambrel roof has adopted a curb grid. Local (July 2013) Shooting
■ファーサードデザイン歴史ある豪徳寺が紡いできた歴史を踏襲し、「和」を感じさせるモチーフを用いたファサードデザイン。入母屋屋根を中心に屋根の妻部には井桁格子を採用しています。現地(2013年7月)撮影
 ■ It shows a variety of facial expressions granite Gotokuji and the surrounding temples and shrines, such as, Adopt the granite so that Komu melt the streets around local. Local (July 2013) Shooting
■多彩な表情を見せる御影石豪徳寺や周辺の寺社など、現地周辺の街並に融けこむよう御影石を採用。現地(2013年7月)撮影
Otherその他  Good old town residential area which has inherited the memory of. To now here, Enlightenment with richness of time, 17 House of streets is born. Gotokuji (5 minutes to about 390m walk)
旧き良き街の記憶を継承してきた住宅地。いま此処に、時の豊かさを愉しむ、17邸の街並が誕生します。豪徳寺(徒歩5分約390m)
Government office役所  It is also a familiar public facilities to support the 760m living up to Setagaya ward office.
世田谷区役所まで760m 暮らしをサポートする公共公益施設も身近です。
Primary school小学校  Ward Shiroyama until the elementary school up to 340m elementary school is a familiar and 5 minutes walk, Comfortable to live in is growing enough to live.
区立城山小学校まで340m 小学校までは歩いて5分と身近で、暮らすほどに住み心地が高まります。
Supermarketスーパー  Including the 390m shopping street to the top, Is around the station there is a super available for every day of shopping, You can conveniently use.
トップまで390m 商店街をはじめ、駅周辺には毎日のお買い物に利用できるスーパーがあり、便利に利用できます。
Kindergarten ・ Nursery幼稚園・保育園  In 290m walking distance to the halo Council kindergarten, Nursery ・ Kindergarten are scattered.
円光院幼稚園まで290m 徒歩圏内に、保育園・幼稚園が点在しています。
Floor plan間取り図  Lush natural environment, Administrative services of the peace of mind in child-rearing, Urban development, which has been developed in order to live, More robust Musashino Plateau. Where the livable conditions were trimmed, It is also one of the charms of Setagaya.
緑豊かな自然環境、子育てに安心の行政サービス、住むために開発された街づくり、さらに強固な武蔵野台地。暮らしやすい条件が整えられた場所、それも世田谷区の魅力の一つです。
 (No.3), Price 88 million yen, 3LDK, Land area 102.2 sq m , Building area 97.48 sq m
(No.3)、価格8800万円、3LDK、土地面積102.2m2、建物面積97.48m2
 Lush natural environment, Administrative services of the peace of mind in child-rearing, Urban development, which has been developed in order to live, More robust Musashino Plateau. Where the livable conditions were trimmed, It is also one of the charms of Setagaya.
緑豊かな自然環境、子育てに安心の行政サービス、住むために開発された街づくり、さらに強固な武蔵野台地。暮らしやすい条件が整えられた場所、それも世田谷区の魅力の一つです。
Other Environmental Photoその他環境写真  Known by the beckoning cat is near 390m local to Gotokuji "Gotokuji". Naturally penetration to life, While concert with the town will coexist history.
豪徳寺まで390m 現地近くには招き猫で知られる「豪徳寺」。生活に自然に溶け込み、街と呼応しながら歴史が共存しています。
Park公園  In the streets standing still is houses some 1080m stately until Hanegi park, Spread a rich green enough to forget that it is a metropolitan area, And dotted with spacious park air drifts.
羽根木公園まで1080m 風格ある家々が佇む街並に、都内であることを忘れてしまうほど豊かな緑が広がり、ゆったりとした空気が漂う公園が点在します。
Other Equipmentその他設備  And out easily drawer type stuck to the quiet and energy-saving. Clean because cleaning is also drying also sterilization at a high temperature.
静かさと省エネにこだわった出し入れしやすい引き出しタイプ。洗浄も乾燥も高温で除菌するので清潔です。
 Mounting a temperature sensor on all burners. Of course, the strength of the shock and scratches, Beautiful finish of the glass top unique.
全てのバーナーに温度センサーを搭載。衝撃や傷への強さはもちろん、ガラストップならではの美しい仕上げです。
Cooling and heating ・ Air conditioning冷暖房・空調設備  Drying of laundry on a rainy day, Winter of preliminary heating, Such as to suppress the generation of the mold to prevent moisture, You can use colorful according to the scene.
雨の日の洗濯物の乾燥、冬の予備暖房、湿気を防いでカビの発生を抑制するなど、シーンに合わせて多彩に使えます。
Local guide map現地案内図  Odakyu line "Gotokuji" Station 7-minute walk, "Umekeoka" station a 10-minute walk, And Tokyu Setagaya Line "Yamashita" station 7-minute walk. In the calm streets, 3 boasts footwork blessed that station 2 routes.
小田急線「豪徳寺」駅徒歩7分、「梅ヶ丘」駅徒歩10分、そして東急世田谷線「山下」駅徒歩7分。穏やかな街並みにして、3駅2路線という恵まれたフットワークを誇ります。
Other Equipmentその他設備  Children of study and reading, Study counter that can be used as a work space. further, A built-in bookshelf offers.
子どもの勉強や読書、ワークスペースとして使えるスタディカウンター。さらに、備え付けの本棚をご用意しています。
Security equipment防犯設備  Golf bag or carry case, Such as the season of consumer electronics, It offers a convenient space for storage of large items.
ゴルフバックやキャリーケース、季節の家電など、大型アイテムの収納に便利なスペースをご用意しています。
 1st floor ・ Installing the shutter is on the second floor of the sweep-out windows and reluctance of the sliding window. Not fire only, Also enhance crime prevention and light-blocking efficiency.
1階・2階の掃き出し窓や腰高の引き違い窓にはシャッターを設置。防火だけでなく、防犯や遮光効率も高めます。
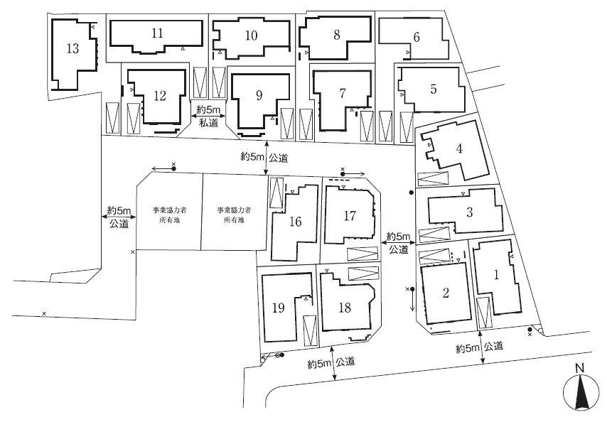
The entire compartment Figure全体区画図  The land of memory, which has carved in. Also say that trajectory, Inheriting the history and nature of facial expressions, We drew the streets of 17 House.
刻まれてきた地の記憶。その軌跡ともいえる、歴史や自然の表情を継承し、17邸の街並を描きました。
Park公園  590m upstream until Kitazawa River green canal Shirota downstream from Akatsutsumi ・ Daizawa ・ In extended about 4.3 km until Ikejiri, Cans trees and miscellaneous trees such are planted, Seasonal flowers has become a bloom green promenade.
北沢川緑道まで590m 上流は赤堤から下流の代田・代沢・池尻までの延長約4.3キロで、かん 木や雑木類が植えられ、四季折々の花が咲く緑の遊歩道となっています。
Other Environmental Photoその他環境写真  Shoin Shrine 980m Edo Period end thinker of the (end of the Edo period) ・ Shrine that enshrined the Shoin Yoshida is an educator. In the precincts Sakura, Zelkova, In addition to the box, You can see a large DBH of Iigiri.
松蔭神社まで980m 江戸時代末(幕末)の思想家・教育者である吉田松陰 を祭神とする神社。境内ではサクラ、ケヤキ、クスのほか、イイギリの大径木を見ることができます。
 Also seen garden with stately to 1030m precincts until Katsumitsu Council. Especially beautiful bamboo grove, A bamboo fence has combined exudes the elegance of a good atmosphere.
勝光院まで1030m 境内には風格のある庭木も見られます。特に美しい竹林は、竹垣とあいまって品のよい雰囲気をかもし出しています。
Location
|