|
|
Setagaya-ku, Tokyo
東京都世田谷区
|
|
Keio Line "Sakurajosui" walk 3 minutes
京王線「桜上水」歩3分
|
|
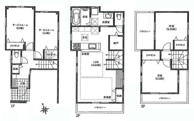
● 2 floor Pledge LDK16.85 (with under-floor heating)! ● south balcony! Per yang ・ Ventilation good! ● all room storage Yes! ● Station 3-minute walk of a good location! ● living environment favorable!
●2階LDK16.85帖(床暖房付)! ●南バルコニー!陽当たり・通風良好! ●全居室収納有! ●駅徒歩3分の好立地! ●住環境良好!
|
|
Siemens south road, Yang per good, Ventilation good, South balcony, All room storage, Living stairs, Facing south, Bathroom Dryer, LDK15 tatami mats or more, Face-to-face kitchen, Toilet 2 places, 2 or more sides balcony, Double-glazing, Underfloor Storage, The window in the bathroom, TV monitor interphone, Dish washing dryer, Water filter, Three-story or more, Storeroom, All rooms are two-sided lighting, Floor heating
南側道路面す、陽当り良好、通風良好、南面バルコニー、全居室収納、リビング階段、南向き、浴室乾燥機、LDK15畳以上、対面式キッチン、トイレ2ヶ所、2面以上バルコニー、複層ガラス、床下収納、浴室に窓、TVモニタ付インターホン、食器洗乾燥機、浄水器、3階建以上、納戸、全室2面採光、床暖房
|
Features pickup 特徴ピックアップ | | Facing south / Bathroom Dryer / Yang per good / All room storage / Siemens south road / LDK15 tatami mats or more / Face-to-face kitchen / Toilet 2 places / 2 or more sides balcony / South balcony / Double-glazing / Underfloor Storage / The window in the bathroom / TV monitor interphone / Ventilation good / Dish washing dryer / Water filter / Three-story or more / Living stairs / Storeroom / All rooms are two-sided lighting / Floor heating 南向き /浴室乾燥機 /陽当り良好 /全居室収納 /南側道路面す /LDK15畳以上 /対面式キッチン /トイレ2ヶ所 /2面以上バルコニー /南面バルコニー /複層ガラス /床下収納 /浴室に窓 /TVモニタ付インターホン /通風良好 /食器洗乾燥機 /浄水器 /3階建以上 /リビング階段 /納戸 /全室2面採光 /床暖房 |
Price 価格 | | 64,800,000 yen 6480万円 |
Floor plan 間取り | | 2LDK + 2S (storeroom) 2LDK+2S(納戸) |
Units sold 販売戸数 | | 1 units 1戸 |
Land area 土地面積 | | 68.24 sq m (20.64 tsubo) (Registration) 68.24m2(20.64坪)(登記) |
Building area 建物面積 | | 99.35 sq m (30.05 tsubo) (Registration) 99.35m2(30.05坪)(登記) |
Driveway burden-road 私道負担・道路 | | Nothing, South 4m width 無、南4m幅 |
Completion date 完成時期(築年月) | | August 2013 2013年8月 |
Address 住所 | | Setagaya-ku, Tokyo Sakurajosui 5 東京都世田谷区桜上水5 |
Traffic 交通 | | Keio Line "Sakurajosui" walk 3 minutes 京王線「桜上水」歩3分
|
Contact お問い合せ先 | | TEL: 0800-603-2123 [Toll free] mobile phone ・ Also available from PHS Caller ID is not notified Please contact the "saw SUUMO (Sumo)" If it does not lead, If the real estate company TEL:0800-603-2123【通話料無料】携帯電話・PHSからもご利用いただけます 発信者番号は通知されません 「SUUMO(スーモ)を見た」と問い合わせください つながらない方、不動産会社の方は
|
Building coverage, floor area ratio 建ぺい率・容積率 | | 80% ・ 240 percent 80%・240% |
Time residents 入居時期 | | Consultation 相談 |
Land of the right form 土地の権利形態 | | Ownership 所有権 |
Structure and method of construction 構造・工法 | | Wooden three-story 木造3階建 |
Use district 用途地域 | | Residential 近隣商業 |
Other limitations その他制限事項 | | Height district, Quasi-fire zones 高度地区、準防火地域 |
Overview and notices その他概要・特記事項 | | Building confirmation number: No. GEA1211-21071, Parking: car space 建築確認番号:第GEA1211-21071号、駐車場:カースペース |
Company profile 会社概要 | | <Mediation> Governor of Tokyo (5) No. 072100 (Ltd.) Ken housing Yubinbango155-0031 Setagaya-ku, Tokyo Kitazawa 2-1-16 <仲介>東京都知事(5)第072100号(株)健ハウジング〒155-0031 東京都世田谷区北沢2-1-16 |