New Homes » Kanto » Tokyo » Setagaya
 
| | Setagaya-ku, Tokyo 東京都世田谷区 |
| Odakyu line "Chitosefunabashi" walk 14 minutes 小田急線「千歳船橋」歩14分 |
| 20 Pledge of LDK is atrium ・ In high window, There is a bright and airy, It is a living space to relax and unwind. kitchen ・ Laundry Area ・ bathroom ・ Balcony was organized on the second floor, Is an efficient housework flow line. 20帖のLDKは吹き抜け・高窓で、明るく開放感があり、ゆったりと寛げる居住空間です。キッチン・洗濯機置場・浴室・バルコニーが2階にまとまった、効率的な家事動線です。 |
| LDK20 tatami mats or more, Bathroom Dryer, Face-to-face kitchen, Toilet 2 places, Bathroom 1 tsubo or more, 2-story, Corresponding to the flat-35S, Energy-saving water heaters, System kitchen, 3 face lighting, Double-glazing, Warm water washing toilet seat, The window in the bathroom, Atrium, TV monitor interphone, All living room flooring, Dish washing dryer, Water filter, All rooms are two-sided lighting, Attic storage, Floor heating LDK20畳以上、浴室乾燥機、対面式キッチン、トイレ2ヶ所、浴室1坪以上、2階建、フラット35Sに対応、省エネ給湯器、システムキッチン、3面採光、複層ガラス、温水洗浄便座、浴室に窓、吹抜け、TVモニタ付インターホン、全居室フローリング、食器洗乾燥機、浄水器、全室2面採光、屋根裏収納、床暖房 |
Features pickup 特徴ピックアップ | | Corresponding to the flat-35S / LDK20 tatami mats or more / Energy-saving water heaters / System kitchen / Bathroom Dryer / Face-to-face kitchen / 3 face lighting / Toilet 2 places / Bathroom 1 tsubo or more / 2-story / Double-glazing / Warm water washing toilet seat / The window in the bathroom / Atrium / TV monitor interphone / All living room flooring / Dish washing dryer / Water filter / City gas / All rooms are two-sided lighting / Attic storage / Floor heating フラット35Sに対応 /LDK20畳以上 /省エネ給湯器 /システムキッチン /浴室乾燥機 /対面式キッチン /3面採光 /トイレ2ヶ所 /浴室1坪以上 /2階建 /複層ガラス /温水洗浄便座 /浴室に窓 /吹抜け /TVモニタ付インターホン /全居室フローリング /食器洗乾燥機 /浄水器 /都市ガス /全室2面採光 /屋根裏収納 /床暖房 | Property name 物件名 | | [Grace Wood Platine] A bright and airy in the three-sided lighting & blow-20 Pledge LDK! 【グレイスウッドプラティーヌ】3面採光&吹抜けで明るく開放感のある20帖LDK! | Price 価格 | | 53,800,000 yen 5380万円 | Floor plan 間取り | | 1LDK + 2S (storeroom) 1LDK+2S(納戸) | Units sold 販売戸数 | | 1 units 1戸 | Total units 総戸数 | | 2 units 2戸 | Land area 土地面積 | | 73.49 sq m (measured) 73.49m2(実測) | Building area 建物面積 | | 85.48 sq m (measured) 85.48m2(実測) | Driveway burden-road 私道負担・道路 | | Nothing, West 3m width 無、西3m幅 | Completion date 完成時期(築年月) | | December 2013 2013年12月 | Address 住所 | | Setagaya-ku, Tokyo Sakuragaoka-4 東京都世田谷区桜丘4 | Traffic 交通 | | Odakyu line "Chitosefunabashi" walk 14 minutes Odakyu line "Chitosefunabashi" bus 5 minutes incus cho AzumaAyumi 2 minutes Odakyu line "Soshiketani Finance" walk 16 minutes 小田急線「千歳船橋」歩14分 小田急線「千歳船橋」バス5分砧町東歩2分 小田急線「祖師ヶ谷大蔵」歩16分
| Related links 関連リンク | | [Related Sites of this company] 【この会社の関連サイト】 | Person in charge 担当者より | | To charge Shataku Kenichi people of our customers will respond in a team Age: 20 Daigyokai experience: For one of the customers in the eight years the Company, Sales staff ・ team leader ・ Contract Division ・ Constitute a team of four people at the lowest loan Division, Each making full use of professional knowledge, In order to do our best to meet the needs of our customers 担当者宅建一人のお客様に対してチームで対応致します年齢:20代業界経験:8年当社では一人のお客様に対し、営業スタッフ・チームリーダー・契約課・ローン課の最低でも4名によるチームを構成し、それぞれプロフェッショナルな知識を駆使し、お客様のご要望にお応えすべく全力を尽くします | Contact お問い合せ先 | | TEL: 0800-603-1505 [Toll free] mobile phone ・ Also available from PHS Caller ID is not notified Please contact the "saw SUUMO (Sumo)" If it does not lead, If the real estate company TEL:0800-603-1505【通話料無料】携帯電話・PHSからもご利用いただけます 発信者番号は通知されません 「SUUMO(スーモ)を見た」と問い合わせください つながらない方、不動産会社の方は
| Building coverage, floor area ratio 建ぺい率・容積率 | | 60% ・ 150% 60%・150% | Time residents 入居時期 | | Consultation 相談 | Land of the right form 土地の権利形態 | | Ownership 所有権 | Structure and method of construction 構造・工法 | | Wooden 2-story 木造2階建 | Use district 用途地域 | | One low-rise 1種低層 | Other limitations その他制限事項 | | Set-back: already, Height district, Quasi-fire zones, Site area maximum Yes セットバック:済、高度地区、準防火地域、敷地面積最高限度有 | Overview and notices その他概要・特記事項 | | Contact: we will correspond team against one of the customers, Facilities: Public Water Supply, This sewage, City gas, Building confirmation number: No. H24A-JK.eX01710-01, Parking: car space 担当者:一人のお客様に対してチームで対応致します、設備:公営水道、本下水、都市ガス、建築確認番号:第H24A-JK.eX01710-01号、駐車場:カースペース | Company profile 会社概要 | | <Mediation> Minister of Land, Infrastructure and Transport (2) No. 007124 (Corporation) All Japan Real Estate Association (Corporation) metropolitan area real estate Fair Trade Council member (Ltd.) living life Kamata branch Yubinbango144-0051 Ota-ku, Tokyo Nishikamata 8-11-11 <仲介>国土交通大臣(2)第007124号(公社)全日本不動産協会会員 (公社)首都圏不動産公正取引協議会加盟(株)リビングライフ蒲田支店〒144-0051 東京都大田区西蒲田8-11-11 |
Exhibition hall / Showroom展示場/ショウルーム  showroom
ショールーム
Rendering (appearance)完成予想図(外観)  Exterior view (B Building on the right)
外観完成予想図(B号棟右側)
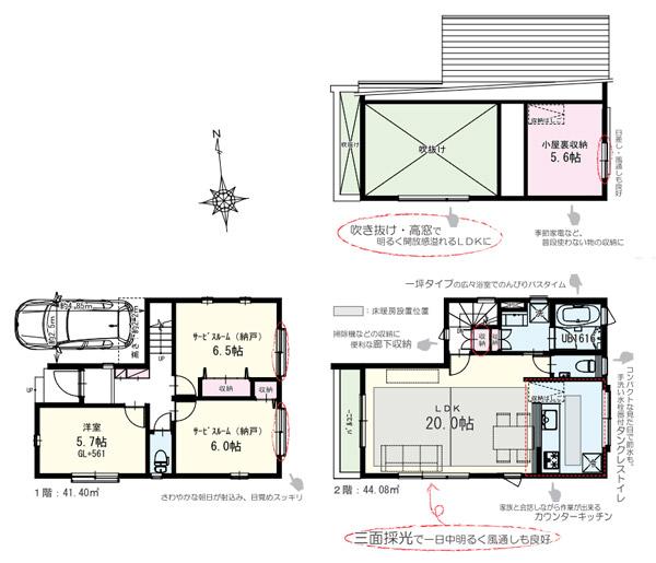
Floor plan間取り図  53,800,000 yen, 1LDK + 2S (storeroom), Land area 73.49 sq m , Building area 85.48 sq m with a floor heating, 20 Pledge a bright and open feeling of the three-sided lighting & blow-LDK (B Building)
5380万円、1LDK+2S(納戸)、土地面積73.49m2、建物面積85.48m2 床暖房付き、3面採光&吹抜けの明るく開放感ある20帖LDK(B号棟)
Local photos, including front road前面道路含む現地写真  Local (2013 July shooting)
現地(平成25年7月撮影)
Construction ・ Construction method ・ specification構造・工法・仕様  1. 2. 3.
1.震度6強の揺れを最大50%吸収 2.メンテナンスフリー 3.制震効果シミュレーション
Other Equipmentその他設備  1. ・ Fushiyu B energy-saving faucet
1.Low-E複層ガラス遮熱タイプ2.省エネ給湯器のエコジョーズ3.次世代省エネルギー基準断熱材4.省エネ照明・節湯B省エネ水栓
Primary school小学校  730m to Setagaya Ward Sasahara Elementary School
世田谷区立笹原小学校まで730m
Construction ・ Construction method ・ specification構造・工法・仕様  1. , You can tell by dispersing the load to the ground. This, Durability and earthquake resistance will improve for the differential settlement. 2. , It has excellent moisture-proof measures and termite intrusion prevention from the ground surface. 3. , You can miss the impact of such as earthquakes and typhoons effectively to the ground.
1.基礎底面の面積が広く、荷重を分散して地盤へ伝える事ができます。これにより、不同沈下に対する耐久性や耐震性が向上します。2.地盤を鉄筋コンクリートで覆うので、地盤面からの防湿対策やシロアリの侵入防止に優れています。3.基礎底面全体で建物を支えるので、地震や台風などの衝撃を効果的に地面へ逃すことができます。
Other Equipmentその他設備  Corresponding to the general seismic performance of hospitals and schools, Seismic grade 2 equivalent of strength by the (general wooden house (1.25 times the strength of the seismic grade 1)), Collapse to 1.25 times the force of the earthquake (seismic intensity 6 Tsuyokara seismic intensity 7) that occurs very rarely ・ We have a collapse not strength.
病院や学校の一般的な耐震性能に該当する、耐震等級2相当の強さ(一般木造住宅(耐震等級1)の1.25倍の強さ)により、極めて稀に発生する地震(震度6強から震度7)の1.25倍の力に対して倒壊・崩壊しない強度をもちます。
Junior high school中学校  1300m to Setagaya Ward Sakuragaoka Junior High School
世田谷区立桜丘中学校まで1300m
Construction ・ Construction method ・ specification構造・工法・仕様  1. . About four times the iron, There are about five times the strength of concrete. 2. , Surface holding the required strength even 1000 ℃ or more is hardly burning carbonized (refractory time more than 45 minutes). 3. / 200, Of concrete 1 / 4 and, Excellent thermal insulation properties.
1.含水率15%以下の乾燥木材を採用。鉄の約4倍、コンクリートの約5倍の強度があります。2.火災の際、表面が炭化して燃えにくくなり1000℃以上でも必要強度を保持(耐火時間45分以上)。3.熱の伝わりやすさは鉄の1/200、コンクリートの1/4と、優れた断熱性を発揮。
Other Equipmentその他設備  Frontage 45cm type of dish washing and drying machines and water purifier built-in hand shower faucet, etc., It is fully equipped kitchen facilities.
間口45cmタイプの食器洗浄乾燥機や浄水器内蔵ハンドシャワー水栓など、充実したキッチン設備です。
Kindergarten ・ Nursery幼稚園・保育園  900m to Setagaya Ward Sakuragaoka kindergarten
世田谷区立桜丘幼稚園まで900m
Construction ・ Construction method ・ specification構造・工法・仕様  1.
1.暑い日差しをカット2.紫外線カット3.冷暖房効率アップ4.室内の明るさはそのまま
Other Equipmentその他設備  Bathroom ventilation dryer Ya, Dirt is hard to regard the sole and clean thermo floor that does not Hiyatsu, It is equipped with glad equipment in a comfortable bath time.
浴室換気乾燥機や、汚れがつきにくく足裏がヒヤッとしない綺麗サーモフロアなど、快適なバスタイムに嬉しい設備が揃っています。
Park公園  Until Kinutakoen 1080m
砧公園まで1080m
Construction ・ Construction method ・ specification構造・工法・仕様  By reusing the high-temperature exhaust heat is discharged After warming, Conventionally, to reduce the exhaust heat was also about 230 ℃ to about 80 ℃, It has enabled efficient hot water supply. This, It will gas rate savings of about 10,000 yen per year.
温めた後に排出される高温の排気熱を再利用することにより、従来は約230℃もあった排気熱を約80℃まで減少し、効率的な給湯を可能にしました。これにより、年間約10000円のガス料金節約になります。
Other Equipmentその他設備  Basin and the counter is integrated seamless molded, Easy to drain outlet also flange wipe without the large.
洗面器とカウンターは継ぎ目のない一体成型、大口の排水口もフランジがなく拭き掃除が簡単です。
Supermarketスーパー  550m until the Summit store Kinutaten
サミットストア砧店まで550m
Construction ・ Construction method ・ specification構造・工法・仕様  1.
1.荷物を持っていてもラクラク操作
Other Equipmentその他設備  Also strongly flushed with good water flow of momentum while water-saving specifications. Since the toilet seat can slide desorption, Cleaning of the gap between the toilet bowl, you can comfortably.
節水仕様ながらも勢いのよい水流で強力に洗い流します。便座がスライド脱着できるので、便器との隙間のお掃除が楽にできます。
Hospital病院  900m to public schools Mutual Aid Association Kanto Central Hospital
公立学校共済組合関東中央病院まで900m
Location
|