New Homes » Kanto » Tokyo » Setagaya
 
| | Setagaya-ku, Tokyo 東京都世田谷区 |
| Odakyu line "Soshiketani Finance" walk 9 minutes 小田急線「祖師ヶ谷大蔵」歩9分 |
| Highest house per location of the hill is the view from the roof balcony. The weather is nice you can enjoy the view overlooking the Mount Fuji. 6.0 Pledge DEN is also attractive with a cupboard to UP the storage capacity. 高台の立地につきルーフバルコニーからの眺望が最高な家。天気の良い日は富士山を望む眺望を楽しむことができます。6.0帖DENは収納力をUPさせカップボード付も魅力です。 |
| << Convenient residential equipment list >> ◇ floor heating / Gas hot water floor heating ◇ sash / All room pair glass ・ Screen door ◇ entrance door / Security thumb turn ・ Picking measures Wave key ◇ system Kitchen / Dishwasher ・ Water purifier with a shower faucet ・ Artificial marble counter silent sink ・ Smart pocket ・ Double stocker ◇ unit bus / Multi-style tub ・ Horizontal wide mirror ・ Well-drained Mira clean floor ◇ vanity / W900 basin ball-integrated counter ・ Three-sided mirror ・ Drawer storage ◇ toilet / 1 ・ Second floor Washlet ◇ with common areas lighting equipment ◇ 24-hour ventilation system ◇ Intercom / LDK floor color TV monitor with intercom ◇ multimedia piping ◇ high efficiency type No. 24 gas water heater <<便利な住宅設備一覧>>◇床暖房/ガス温水式床暖房◇サッシ/全居室ペアガラス・網戸◇玄関ドア/セキュリティーサムターン・ピッキング対策ウェーブキー◇システムキッチン/食洗機・浄水器付シャワー水栓・人造大理石カウンター 静音シンク・スマートポケット・ダブルストッカー◇ユニットバス/マルチスタイル浴槽・横長ワイドミラー・水はけの良いミラクリーン床◇洗面化粧台/W900洗面ボール一体型カウンター・三面鏡・引出収納◇トイレ/1・2階ウォシュレット◇共用部照明器具付◇24時間換気システム◇インターホン/LDK階カラーTVモニター付インターホン◇マルチメディア配管◇高効率型24号ガス給湯器 |
Features pickup 特徴ピックアップ | | Measures to conserve energy / Corresponding to the flat-35S / Pre-ground survey / Immediate Available / 2 along the line more accessible / LDK20 tatami mats or more / Super close / It is close to the city / System kitchen / Bathroom Dryer / Yang per good / All room storage / Flat to the station / A quiet residential area / Around traffic fewer / Japanese-style room / Mist sauna / Washbasin with shower / Face-to-face kitchen / Barrier-free / Toilet 2 places / Bathroom 1 tsubo or more / South balcony / Double-glazing / Warm water washing toilet seat / loft / Underfloor Storage / The window in the bathroom / Atrium / TV monitor interphone / Urban neighborhood / Ventilation good / All living room flooring / Dish washing dryer / Or more ceiling height 2.5m / Water filter / Three-story or more / Living stairs / City gas / All rooms are two-sided lighting / Located on a hill / roof balcony / Flat terrain / Floor heating 省エネルギー対策 /フラット35Sに対応 /地盤調査済 /即入居可 /2沿線以上利用可 /LDK20畳以上 /スーパーが近い /市街地が近い /システムキッチン /浴室乾燥機 /陽当り良好 /全居室収納 /駅まで平坦 /閑静な住宅地 /周辺交通量少なめ /和室 /ミストサウナ /シャワー付洗面台 /対面式キッチン /バリアフリー /トイレ2ヶ所 /浴室1坪以上 /南面バルコニー /複層ガラス /温水洗浄便座 /ロフト /床下収納 /浴室に窓 /吹抜け /TVモニタ付インターホン /都市近郊 /通風良好 /全居室フローリング /食器洗乾燥機 /天井高2.5m以上 /浄水器 /3階建以上 /リビング階段 /都市ガス /全室2面採光 /高台に立地 /ルーフバルコニー /平坦地 /床暖房 | Price 価格 | | 82,800,000 yen 8280万円 | Floor plan 間取り | | 4LDK + S (storeroom) 4LDK+S(納戸) | Units sold 販売戸数 | | 1 units 1戸 | Total units 総戸数 | | 5 units 5戸 | Land area 土地面積 | | 104.57 sq m (measured) 104.57m2(実測) | Building area 建物面積 | | 104.24 sq m (measured) 104.24m2(実測) | Driveway burden-road 私道負担・道路 | | Nothing, North 4.5m width 無、北4.5m幅 | Completion date 完成時期(築年月) | | November 2013 2013年11月 | Address 住所 | | Setagaya-ku, Tokyo Kinuta 8 東京都世田谷区砧8 | Traffic 交通 | | Odakyu line "Soshiketani Finance" walk 9 minutes Odakyu line "Seijogakuen before" walk 8 minutes Keio Line "Osan Chitose" walk 33 minutes 小田急線「祖師ヶ谷大蔵」歩9分 小田急線「成城学園前」歩8分 京王線「千歳烏山」歩33分
| Related links 関連リンク | | [Related Sites of this company] 【この会社の関連サイト】 | Person in charge 担当者より | | Rep Nishino Daisuke Age: 30 Daigyokai experience: It is the motto that I am willing to one-year customer. The get to say "thank you" is the best with a smile. Sincerity ・ sincerity ・ We work hard every day not forget the humble. 担当者西野 大介年齢:30代業界経験:1年お客様に喜んでいただくことがモットーです。笑顔で「ありがとう」と言ってもらえるのが一番。誠実・誠意・謙虚を忘れず日々頑張っていきます。 | Contact お問い合せ先 | | TEL: 0800-603-2426 [Toll free] mobile phone ・ Also available from PHS Caller ID is not notified Please contact the "saw SUUMO (Sumo)" If it does not lead, If the real estate company TEL:0800-603-2426【通話料無料】携帯電話・PHSからもご利用いただけます 発信者番号は通知されません 「SUUMO(スーモ)を見た」と問い合わせください つながらない方、不動産会社の方は
| Building coverage, floor area ratio 建ぺい率・容積率 | | Fifty percent ・ Hundred percent 50%・100% | Time residents 入居時期 | | Immediate available 即入居可 | Land of the right form 土地の権利形態 | | Ownership 所有権 | Structure and method of construction 構造・工法 | | Wooden three-story 木造3階建 | Use district 用途地域 | | One low-rise 1種低層 | Other limitations その他制限事項 | | Regulations have by the Landscape Act, Height district, Quasi-fire zones, Height ceiling Yes, Site area minimum Yes, Shade limit Yes, Irregular land 景観法による規制有、高度地区、準防火地域、高さ最高限度有、敷地面積最低限度有、日影制限有、不整形地 | Overview and notices その他概要・特記事項 | | Contact: Nishino Daisuke, Facilities: Public Water Supply, This sewage, City gas, Building confirmation number: No. H25SHC102010, Parking: car space 担当者:西野 大介、設備:公営水道、本下水、都市ガス、建築確認番号:H25SHC102010号、駐車場:カースペース | Company profile 会社概要 | | <Mediation> Governor of Tokyo (5) No. 070367 (Corporation) All Japan Real Estate Association (Corporation) metropolitan area real estate Fair Trade Council member (Ltd.) Aquos business part Yubinbango166-0001 Suginami-ku, Tokyo Asagayakita 4-10-8 <仲介>東京都知事(5)第070367号(公社)全日本不動産協会会員 (公社)首都圏不動産公正取引協議会加盟(株)アクオス営業一部〒166-0001 東京都杉並区阿佐谷北4-10-8 |
Local appearance photo現地外観写真  Local (12 May 2013) Shooting
現地(2013年12月)撮影
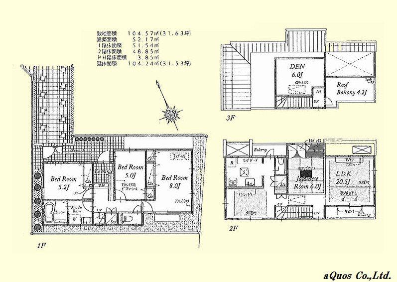
Floor plan間取り図  82,800,000 yen, 4LDK + S (storeroom), Land area 104.57 sq m , Building area 104.24 sq m
8280万円、4LDK+S(納戸)、土地面積104.57m2、建物面積104.24m2
Local appearance photo現地外観写真  Local (12 May 2013) Shooting
現地(2013年12月)撮影
Livingリビング  Indoor (12 May 2013) Shooting
室内(2013年12月)撮影
Bathroom浴室  Indoor (12 May 2013) Shooting
室内(2013年12月)撮影
Kitchenキッチン  Indoor (12 May 2013) Shooting
室内(2013年12月)撮影
Non-living roomリビング以外の居室  Indoor (12 May 2013) Shooting
室内(2013年12月)撮影
Entrance玄関  Local (12 May 2013) Shooting
現地(2013年12月)撮影
Wash basin, toilet洗面台・洗面所  Indoor (12 May 2013) Shooting
室内(2013年12月)撮影
Toiletトイレ  Indoor (12 May 2013) Shooting
室内(2013年12月)撮影
Balconyバルコニー  Local (12 May 2013) Shooting
現地(2013年12月)撮影
Supermarketスーパー  440m to Odakyu OX Okura Soshigaya shop
小田急OX祖師谷大蔵店まで440m
Livingリビング  Indoor (12 May 2013) Shooting
室内(2013年12月)撮影
Kitchenキッチン  Indoor (12 May 2013) Shooting
室内(2013年12月)撮影
Non-living roomリビング以外の居室  Indoor (12 May 2013) Shooting
室内(2013年12月)撮影
Junior high school中学校  1088m to Setagaya Tatsukinuta junior high school
世田谷区立砧中学校まで1088m
Livingリビング  Indoor (12 May 2013) Shooting
室内(2013年12月)撮影
Primary school小学校  870m to Setagaya Ward Meisei Elementary School
世田谷区立明成小学校まで870m
Livingリビング  Indoor (12 May 2013) Shooting
室内(2013年12月)撮影
Kindergarten ・ Nursery幼稚園・保育園  567m to finance nursery
大蔵保育園まで567m
Park公園  Soshigaya 630m to Third Street Park
祖師谷三丁目公園まで630m
Location
|