New Homes » Kanto » Tokyo » Setagaya
 
| | Setagaya-ku, Tokyo 東京都世田谷区 |
| Odakyu line "Soshiketani Finance" walk 5 minutes 小田急線「祖師ヶ谷大蔵」歩5分 |
| Station 5 minutes! Roof balcony! EV outlet, Entrance card key, etc. advanced fully equipped! ! 駅5分!ルーフバルコニー付き!EVコンセント、玄関カードキー等先進設備完備!! |
| A quiet residential area, Super close, Around traffic fewer, All living room flooring, 2-story, Walk-in closet, Year Available, System kitchen, All room storage, Toilet 2 places, Double-glazing, TV monitor interphone, roof balcony, Flat terrain, Floor heating 閑静な住宅地、スーパーが近い、周辺交通量少なめ、全居室フローリング、2階建、ウォークインクロゼット、年内入居可、システムキッチン、全居室収納、トイレ2ヶ所、複層ガラス、TVモニタ付インターホン、ルーフバルコニー、平坦地、床暖房 |
Features pickup 特徴ピックアップ | | Year Available / Super close / System kitchen / All room storage / A quiet residential area / Around traffic fewer / Toilet 2 places / 2-story / Double-glazing / TV monitor interphone / All living room flooring / Walk-in closet / roof balcony / Flat terrain / Floor heating 年内入居可 /スーパーが近い /システムキッチン /全居室収納 /閑静な住宅地 /周辺交通量少なめ /トイレ2ヶ所 /2階建 /複層ガラス /TVモニタ付インターホン /全居室フローリング /ウォークインクロゼット /ルーフバルコニー /平坦地 /床暖房 | Price 価格 | | 60,800,000 yen 6080万円 | Floor plan 間取り | | 2LDK + S (storeroom) 2LDK+S(納戸) | Units sold 販売戸数 | | 1 units 1戸 | Total units 総戸数 | | 3 units 3戸 | Land area 土地面積 | | 94.6 sq m (registration) 94.6m2(登記) | Building area 建物面積 | | 87.21 sq m (measured) 87.21m2(実測) | Driveway burden-road 私道負担・道路 | | Nothing, East 4m width 無、東4m幅 | Completion date 完成時期(築年月) | | October 2013 2013年10月 | Address 住所 | | Setagaya-ku, Tokyo Soshigaya 1 東京都世田谷区祖師谷1 | Traffic 交通 | | Odakyu line "Soshiketani Finance" walk 5 minutes Odakyu line "Seijogakuen before" walk 19 minutes Odakyu line "Chitosefunabashi" walk 18 minutes 小田急線「祖師ヶ谷大蔵」歩5分 小田急線「成城学園前」歩19分 小田急線「千歳船橋」歩18分
| Person in charge 担当者より | | Person in charge of real-estate and building FP Nagao Gyoyo Age: 20 Daigyokai Experience: 8 years First, Please tell us the background of looking! Property should be there somewhere close to your conditions! Also, You should begin to see also a need of looking for did not appear in person in question! Why do not you start house hunting from talking with us? 担当者宅建FP長尾 行洋年齢:20代業界経験:8年まずは、お探しの背景をお聞かせ下さい!ご条件に近い物件がどこかにあるはずです!また、ご本人でも見えていなかったお探しの要望も見えてくるはずです!私たちと話す事から家探しを始めてみませんか? | Contact お問い合せ先 | | TEL: 0800-603-1955 [Toll free] mobile phone ・ Also available from PHS Caller ID is not notified Please contact the "saw SUUMO (Sumo)" If it does not lead, If the real estate company TEL:0800-603-1955【通話料無料】携帯電話・PHSからもご利用いただけます 発信者番号は通知されません 「SUUMO(スーモ)を見た」と問い合わせください つながらない方、不動産会社の方は
| Building coverage, floor area ratio 建ぺい率・容積率 | | 60% ・ 150% 60%・150% | Time residents 入居時期 | | Consultation 相談 | Land of the right form 土地の権利形態 | | Ownership 所有権 | Structure and method of construction 構造・工法 | | Wooden 2-story 木造2階建 | Use district 用途地域 | | One low-rise 1種低層 | Other limitations その他制限事項 | | Height district, Quasi-fire zones 高度地区、準防火地域 | Overview and notices その他概要・特記事項 | | Contact: Nagao Gyoyo, Facilities: Public Water Supply, This sewage, City gas, Building confirmation number: first KS113-3110-00322, Parking: car space 担当者:長尾 行洋、設備:公営水道、本下水、都市ガス、建築確認番号:第KS113-3110-00322、駐車場:カースペース | Company profile 会社概要 | | <Mediation> Governor of Tokyo (6) No. 060665 (Corporation) Tokyo Metropolitan Government Building Lots and Buildings Transaction Business Association (Corporation) metropolitan area real estate Fair Trade Council member (Ltd.) Uptown Yubinbango158-0097 Setagaya-ku, Tokyo Yoga 2-34-13 <仲介>東京都知事(6)第060665号(公社)東京都宅地建物取引業協会会員 (公社)首都圏不動産公正取引協議会加盟(株)アップタウン〒158-0097 東京都世田谷区用賀2-34-13 |
Local appearance photo現地外観写真  1 ・ 3 Building was completed!
1・3号棟完成しました!
Balconyバルコニー  The view from the rooftop balcony
屋上バルコニーからの眺め
Kitchenキッチン  L-shaped easy-to-use open kitchen. The point is a little storage shelf behind!
L字型の使いやすいオープンキッチン。後ろにあるちょっとした収納棚がポイントです!
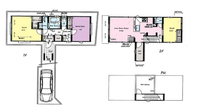
Floor plan間取り図  60,800,000 yen, 2LDK + S (storeroom), Land area 94.6 sq m , It does as building area 87.21 sq m current state BASIS.
6080万円、2LDK+S(納戸)、土地面積94.6m2、建物面積87.21m2 現況有姿と致します。
Livingリビング  Second floor living room with high ceilings open!
2階リビングは天井が高く開放的!
Bathroom浴室  The unit bus there is a firm window.
ユニットバスにはしっかり窓がございます。
Non-living roomリビング以外の居室  So that indoor dry can also, Has also been installed removal simple clothes!
室内干しもできるよう、取り外しが簡単な物干しも設置されています!
Wash basin, toilet洗面台・洗面所  It has also been installed of a little shelf in the washroom!
洗面所にもちょっとした小棚が設置されています!
Receipt収納  Entrance top of the DEN. Storage space that I do not need anything Tsumekome by ladder will come in handy surely!
玄関上部のDEN。何でも詰め込めてハシゴもいらない収納空間はきっと重宝します!
Toiletトイレ  You can ventilation because there is a small window in the toilet!
トイレにも小窓がございますので換気ができます!
Junior high school中学校  1549m to Setagaya Ward bridge junior high school
世田谷区立船橋中学校まで1549m
Otherその他  It is on the first floor corridor has been established coat hanging casually.
1階廊下にはコート掛けがさりげなく設置されています。
Livingリビング  Also study desk are installed next to the living, For children, And Use is the variety for wife!
リビング横にはスタディーデスクも設置され、お子様用、奥様用と使途は多様です!
Primary school小学校  786m to Setagaya Ward Soshigaya Elementary School
世田谷区立祖師谷小学校まで786m
Location
|