|
|
Setagaya-ku, Tokyo
東京都世田谷区
|
|
Keio Line "Sakurajosui" walk 5 minutes
京王線「桜上水」歩5分
|
|
East proviso road
東側 但し書き道路
|
|
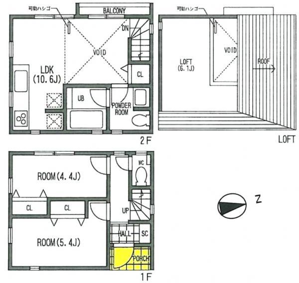
The room, There is a loft with about 6.1 Pledge of leeway. It is conveniently located a 5-minute walk to Sakurajosui Station to Station. I'd love to, Please try to make their first preview.
室内には、約6.1帖のゆとりのあるロフトがございます。駅までも桜上水駅に徒歩5分の好立地です。是非、ご内見なさってみてください。
|
Features pickup 特徴ピックアップ | | Year Available / Immediate Available / Super close / System kitchen / Bathroom Dryer / All room storage / A quiet residential area / Washbasin with shower / Barrier-free / Bathroom 1 tsubo or more / 2-story / Warm water washing toilet seat / Underfloor Storage / The window in the bathroom / TV monitor interphone / All living room flooring / Water filter / Living stairs / City gas 年内入居可 /即入居可 /スーパーが近い /システムキッチン /浴室乾燥機 /全居室収納 /閑静な住宅地 /シャワー付洗面台 /バリアフリー /浴室1坪以上 /2階建 /温水洗浄便座 /床下収納 /浴室に窓 /TVモニタ付インターホン /全居室フローリング /浄水器 /リビング階段 /都市ガス |
Price 価格 | | 36 million yen 3600万円 |
Floor plan 間取り | | 2LDK 2LDK |
Units sold 販売戸数 | | 1 units 1戸 |
Total units 総戸数 | | 1 units 1戸 |
Land area 土地面積 | | 43.76 sq m (registration) 43.76m2(登記) |
Building area 建物面積 | | 60.97 sq m (registration) 60.97m2(登記) |
Driveway burden-road 私道負担・道路 | | Nothing 無 |
Completion date 完成時期(築年月) | | January 2013 2013年1月 |
Address 住所 | | Setagaya-ku, Tokyo Sakurajosui 4 東京都世田谷区桜上水4 |
Traffic 交通 | | Keio Line "Sakurajosui" walk 5 minutes 京王線「桜上水」歩5分
|
Related links 関連リンク | | [Related Sites of this company] 【この会社の関連サイト】 |
Contact お問い合せ先 | | TEL: 0800-603-0560 [Toll free] mobile phone ・ Also available from PHS Caller ID is not notified Please contact the "saw SUUMO (Sumo)" If it does not lead, If the real estate company TEL:0800-603-0560【通話料無料】携帯電話・PHSからもご利用いただけます 発信者番号は通知されません 「SUUMO(スーモ)を見た」と問い合わせください つながらない方、不動産会社の方は
|
Building coverage, floor area ratio 建ぺい率・容積率 | | 60% ・ 200% 60%・200% |
Time residents 入居時期 | | Immediate available 即入居可 |
Land of the right form 土地の権利形態 | | Ownership 所有権 |
Structure and method of construction 構造・工法 | | Wooden 2-story 木造2階建 |
Use district 用途地域 | | One middle and high 1種中高 |
Overview and notices その他概要・特記事項 | | Facilities: Public Water Supply, This sewage, City gas, Building confirmation number: H24SHC110096, Parking: No 設備:公営水道、本下水、都市ガス、建築確認番号:H24SHC110096、駐車場:無 |
Company profile 会社概要 | | <Mediation> Minister of Land, Infrastructure and Transport (3) No. 006,185 (one company) National Housing Industry Association (Corporation) metropolitan area real estate Fair Trade Council member Asahi housing (stock) new downtown shop 160-0023 Tokyo Nishi-Shinjuku, Shinjuku-ku, 1-19-6 Shinjuku Yamate building 7th floor <仲介>国土交通大臣(3)第006185号(一社)全国住宅産業協会会員 (公社)首都圏不動産公正取引協議会加盟朝日住宅(株)新都心店〒160-0023 東京都新宿区西新宿1-19-6 山手新宿ビル7階 |