|
|
Setagaya-ku, Tokyo
東京都世田谷区
|
|
Oimachi Line Tokyu "Midorigaoka" walk 5 minutes
東急大井町線「緑が丘」歩5分
|
|
Will be newly built single-family of Okusawa. Please feel free to tell us such as the preview because the building is completed already the property.
奥沢の新築戸建になります。 建物完成済の物件ですので内見などお気軽にお申し付け下さい。
|
|
Floor heating, LDK15 tatami mats or more, Bathroom Dryer, bus ・ Restroom, shower, Reheating, Yang per good, All room storage, Toilet 2 places, Warm water washing toilet seat, Washbasin with shower, High-function toilet
床暖房、LDK15畳以上、浴室乾燥機、バス・トイレ別、シャワー、追い焚き、陽当り良好、全居室収納、トイレ2ヶ所、温水洗浄便座、シャワー付洗面台、高機能トイレ
|
Features pickup 特徴ピックアップ | | Year Available / Bathroom Dryer / Yang per good / All room storage / LDK15 tatami mats or more / Shaping land / Washbasin with shower / Toilet 2 places / Warm water washing toilet seat / High-function toilet / Three-story or more / Flat terrain / Floor heating 年内入居可 /浴室乾燥機 /陽当り良好 /全居室収納 /LDK15畳以上 /整形地 /シャワー付洗面台 /トイレ2ヶ所 /温水洗浄便座 /高機能トイレ /3階建以上 /平坦地 /床暖房 |
Price 価格 | | 58,800,000 yen 5880万円 |
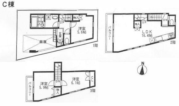
Floor plan 間取り | | 3LDK 3LDK |
Units sold 販売戸数 | | 1 units 1戸 |
Total units 総戸数 | | 3 units 3戸 |
Land area 土地面積 | | 55.5 sq m (16.78 tsubo) (measured) 55.5m2(16.78坪)(実測) |
Building area 建物面積 | | 92.22 sq m (27.89 tsubo) (Registration), Among the first floor garage 8.73 sq m 92.22m2(27.89坪)(登記)、うち1階車庫8.73m2 |
Driveway burden-road 私道負担・道路 | | Nothing, West 5.5m width 無、西5.5m幅 |
Completion date 完成時期(築年月) | | August 2013 2013年8月 |
Address 住所 | | Setagaya-ku, Tokyo Okusawa 2 東京都世田谷区奥沢2 |
Traffic 交通 | | Oimachi Line Tokyu "Midorigaoka" walk 5 minutes Tokyu Meguro Line "Okusawa" walk 7 minutes Tokyu Toyoko Line "Jiyugaoka" walk 11 minutes 東急大井町線「緑が丘」歩5分 東急目黒線「奥沢」歩7分 東急東横線「自由が丘」歩11分
|
Related links 関連リンク | | [Related Sites of this company] 【この会社の関連サイト】 |
Person in charge 担当者より | | The person in charge Ono 担当者小野 |
Contact お問い合せ先 | | TEL: 0800-603-8969 [Toll free] mobile phone ・ Also available from PHS Caller ID is not notified Please contact the "saw SUUMO (Sumo)" If it does not lead, If the real estate company TEL:0800-603-8969【通話料無料】携帯電話・PHSからもご利用いただけます 発信者番号は通知されません 「SUUMO(スーモ)を見た」と問い合わせください つながらない方、不動産会社の方は
|
Building coverage, floor area ratio 建ぺい率・容積率 | | 60% ・ 200% 60%・200% |
Time residents 入居時期 | | Immediate available 即入居可 |
Land of the right form 土地の権利形態 | | Ownership 所有権 |
Structure and method of construction 構造・工法 | | Wooden three-story 木造3階建 |
Use district 用途地域 | | One dwelling 1種住居 |
Other limitations その他制限事項 | | Height district, Quasi-fire zones, Shade limit Yes 高度地区、準防火地域、日影制限有 |
Overview and notices その他概要・特記事項 | | Contact: Ono, Facilities: Public Water Supply, This sewage, City gas, Parking: car space 担当者:小野、設備:公営水道、本下水、都市ガス、駐車場:カースペース |
Company profile 会社概要 | | <Marketing alliance (mediated)> Governor of Tokyo (2) No. 089271 (Ltd.) planning Estate Yubinbango153-0063 Meguro-ku, Tokyo Meguro 1-6-17 <販売提携(媒介)>東京都知事(2)第089271号(株)プランニングエステート〒153-0063 東京都目黒区目黒1-6-17 |