|
|
Setagaya-ku, Tokyo
東京都世田谷区
|
|
Odakyu line "Soshiketani Finance" walk 17 minutes
小田急線「祖師ヶ谷大蔵」歩17分
|
|
3-story 4LDK. You can see at any time because of the completed.
3階建て4LDK。完成済みの為いつでもご覧いただけます。
|
|
Immediate Available, 2 along the line more accessible, Toilet 2 places, 2 or more sides balcony, The window in the bathroom, Three-story or more, Floor heating
即入居可、2沿線以上利用可、トイレ2ヶ所、2面以上バルコニー、浴室に窓、3階建以上、床暖房
|
Features pickup 特徴ピックアップ | | Immediate Available / 2 along the line more accessible / Toilet 2 places / 2 or more sides balcony / The window in the bathroom / Three-story or more / Floor heating 即入居可 /2沿線以上利用可 /トイレ2ヶ所 /2面以上バルコニー /浴室に窓 /3階建以上 /床暖房 |
Price 価格 | | 55,800,000 yen 5580万円 |
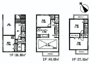
Floor plan 間取り | | 4LDK 4LDK |
Units sold 販売戸数 | | 1 units 1戸 |
Land area 土地面積 | | 70.42 sq m 70.42m2 |
Building area 建物面積 | | 106.3 sq m 106.3m2 |
Driveway burden-road 私道負担・道路 | | Nothing 無 |
Completion date 完成時期(築年月) | | February 2013 2013年2月 |
Address 住所 | | Setagaya-ku, Tokyo Kinuta 1 東京都世田谷区砧1 |
Traffic 交通 | | Odakyu line "Soshiketani Finance" walk 17 minutes Denentoshi Tokyu "Yoga" walk 27 minutes 小田急線「祖師ヶ谷大蔵」歩17分 東急田園都市線「用賀」歩27分
|
Related links 関連リンク | | [Related Sites of this company] 【この会社の関連サイト】 |
Person in charge 担当者より | | Personnel Shibata Jun Age: 30 Daigyokai experience: because they are going to live 15 years life, Also we will respond to your any such thing on request. Please contact us more and more. 担当者柴田 純年齢:30代業界経験:15年一生暮らしていくものなので、お客様のご要望にどのような事にも対応させて頂きます。 どんどんお問い合わせくださいませ。 |
Contact お問い合せ先 | | TEL: 0800-602-6152 [Toll free] mobile phone ・ Also available from PHS Caller ID is not notified Please contact the "saw SUUMO (Sumo)" If it does not lead, If the real estate company TEL:0800-602-6152【通話料無料】携帯電話・PHSからもご利用いただけます 発信者番号は通知されません 「SUUMO(スーモ)を見た」と問い合わせください つながらない方、不動産会社の方は
|
Building coverage, floor area ratio 建ぺい率・容積率 | | 60% ・ 200% 60%・200% |
Time residents 入居時期 | | Immediate available 即入居可 |
Land of the right form 土地の権利形態 | | Ownership 所有権 |
Structure and method of construction 構造・工法 | | Wooden three-story 木造3階建 |
Use district 用途地域 | | One middle and high 1種中高 |
Overview and notices その他概要・特記事項 | | Contact: Shibata Jun, Parking: Garage 担当者:柴田 純、駐車場:車庫 |
Company profile 会社概要 | | <Mediation> Governor of Tokyo (1) No. 093488 (Ltd.) K's home Yubinbango154-0011 Setagaya-ku, Tokyo excellent horse 1-15-3 <仲介>東京都知事(1)第093488号(株)ケーズホーム〒154-0011 東京都世田谷区上馬1-15-3 |